
|
來自北京的張先生最近有件大喜事,農村老家的新房剛剛建好,現在全家已經喬遷入住。對于這棟別墅,張先生表示家人非常滿意,全程和施工隊的合作也非常愉快,今天特地來住宅公園投稿,給各位建房朋友推薦推薦這個專業施工隊。 張先生宅基地位于北京密云某農村,老房三面緊鄰鄰居,門前有一條窄窄的小路,后面則是連綿起伏的大山。由于當地限高政策,所以新房高度不能超過3米,也不能超過鄰居家房子屋頂。整個別墅設計要以自然為主,打造出居家的舒適感。
這是張先生家的農村別墅,一座簡約風格的農家小院,主體、外裝、門窗全包給易蓋房建筑公司,總造價52.4萬元。
為了不影響別墅的外觀,將落水管設計到背面,足以看出施工隊的細節。院墻僅用紅磚砌筑,裸露的紅磚特有一種粗獷之美。
大面積的落地窗,加上別墅外墻的灰色調,簡約大方。別墅整體給人一種品質感和舒適感,在鄉村住宅中十分亮眼。
別墅設計 建筑整體風格十分自然,農家小院的氣質躍然而出。簡約風格的別墅主體,坡度較小的坡屋頂,玻璃圍欄和落地窗,還有素雅的外墻配色,滿足業主的全部需求。
院門的位置方便出行,也符合當地習俗。院門上方以玻璃為頂,遮擋風雨的同時也避免了陽光直射造成的溫度升高。
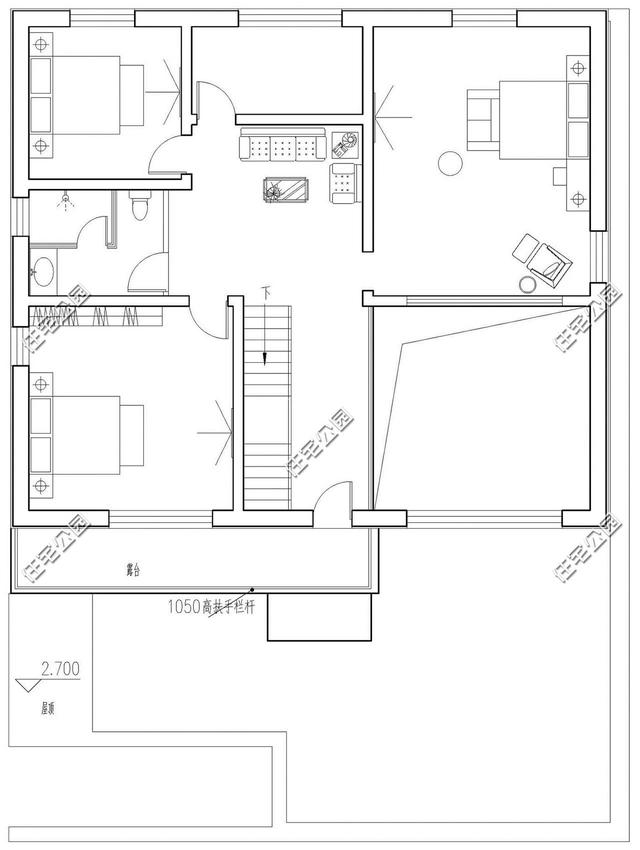
一層功能分區明確,動靜分區,潔污分離。共有兩間臥室,南側臥室配有獨立衛生間,北側臥室與公衛相鄰,方便使用。
二層共有三間臥室,公衛位于兩間臥室中間,使用上極為便利。由于南側景觀面較好,設計有室外露臺,為業主及其家人提供更多生活樂趣。
裝修設計 張先生對生活品質要求極高,所以也委托易蓋房做了室內裝修設計。配合別墅外觀,室內為簡約北歐風,品質感與舒適感兼具。
裝修實拍 各色原木家具搭配,大面積的質樸色調,復古紅磚砌筑的墻面,編織出充滿溫度的生活場景。
挑空客廳沒有華麗的水晶吊燈,取而代之的是各類筒燈和射燈,無需主燈,也能營造出溫馨浪漫的居家氛圍。
餐廳與客廳聯通設計,整體空間十分開闊,沿襲整體風格,餐廳充滿復古韻味。
二層起居室簡單布置,可愛素雅的布藝沙發,天然的木質地板,濃濃的北歐風呼之欲出。
這樣的裝修風格,是不是和一般的農村自建房有點不一樣呢?
施工過程 項目名稱:北京密云張家別墅 項目地點:北京市密云區 建筑面積:338㎡ 建筑尺寸:20m×14m 項目造價:52.4萬元 建筑結構:磚混結構 施工機構:易蓋房施工隊 建得如此好看,也難怪張先生一家這么滿意了。那么這樣的小別墅是如何建成的呢?趕緊跟著小編一起來看看。
原有舊房拆除后,平整場地,進行放線,確定后進行基礎開挖。
張先生給易蓋房的工人師傅們合影,留作紀念。
基礎施工結束后進入主體施工,并按照圖紙預留構造柱位置。
樓板采用現澆樓板,易蓋房項目使用混凝土均為商品混凝土,質量穩定更有保障。
相信經常看住宅公園建房案例的老朋友對于農村建房的工序已經非常了解了,下圖張先生家的別墅已經到了封頂階段。
雙層雙向布置屋面板鋼筋,底部鋪墊小石子,防止在施工過程中踩踏鋼筋。
封頂后,易蓋房施工隊現場工人為張先生送上了真誠的祝福。
等待養護好后再拆模,同時砌筑院墻。
外墻抹灰再進行二次裝飾,根據效果圖紙選擇采用真石漆,先刷一層封閉底漆,底漆干透后再噴涂真石漆。
看到這個案例,大家有沒有感到專業設計和施工的重要性呢?
很多朋友隨便找套效果圖讓村里師傅看著就蓋了,房子建好卻各種不滿意:沒蓋出圖紙的效果,空間布局、尺寸不合適,住起來不舒適。如果是大戶人家,那么花錢返工,但是很多情況下是沒有改動的空間的。如果只是普通老百姓,那么也只能將就著住幾十年了。 所以大家自建房切勿因小失大! 圖紙之家-專注農村別墅/自建房設計18年,集合國內200余位經驗豐富的設計師,被評為口碑最好的農村建筑設計公司! |

農村一層中式三合院別墅戶型圖,這才是適合中國人建的好房子
占地:218.77平方米
100-140平多戶型二層經典新農村小別墅設計建筑圖紙
占地:多種戶型
四間兩層實用簡約的住房設計圖,毛坯24萬,農村建正合適
占地:159.48平方米
2026年最新三層房屋設計圖紙,12米×11米,實用接地氣
占地:130平方米
170平方米歐式三層雙拼別墅建筑設計圖紙及效果圖片
占地:172平方米
帶院子的四間二層別墅房屋設計圖,帶獨立車庫
占地:350平方米
二層樓房圖片及施工圖紙,占地160平米左右,帶車庫
占地:160平方米
現代一層(帶悶頂)別墅住宅設計圖,外觀現代時尚
占地:160平方米
帶大露臺二層現代風別墅設計圖,去繁從簡,好看不過時
占地:122.25平方米
二層平頂別墅設計圖,漂亮經濟實用二層農村小別墅最新房屋設計
占地:多種戶型
農村三層雙拼別墅設計圖,帶外觀效果圖,推薦
占地:190平方米
三層歐式自建房別墅設計方案,11x11米洋氣實用,飽受大家好評
占地:127平方米
125平方米新農村三層自建別墅施工設計圖,13x10米
占地:125平方米
新中式三層別墅,旋轉樓梯+挑空客廳,高級感拉滿
占地:125平方米
農村30萬別墅款式三層設計圖紙,帶地下儲藏室,挑空客廳
占地:110平方米
二層精美偏法式風格別墅設計圖,不但顏值高,品質還高
占地:154.17平方米
農村二層小洋樓設計圖,帶外觀效果圖,外觀新穎,漂亮
占地:130平方米
13×16米農村自建樓房三層別墅戶型設計圖,大氣
占地:168平方米
農村中式兩層雙拼別墅房屋設計圖,含效果圖片
占地:200平方米
面寬15米大氣的農村二層復式戶型別墅設計圖紙及外觀圖片
占地:173.28平方米
推薦:10套新農村自建房設計圖,2026年最新設計
閱讀次數:4825737次
100套鄉村別墅圖片大全,2026年最新設計
閱讀次數:2492203次
6款農村蓋一層平房的設計圖,10萬元就能建起來
閱讀次數:1852637次
這11個一層農村自建房別墅火爆了朋友圈!我最喜歡戶型十!你呢
閱讀次數:750268次
農村6萬元建一層小別墅圖,你敢相信嗎
閱讀次數:567686次
農村5萬塊就能自建房,6套普通房子設計圖分享,你沒看錯!
閱讀次數:419410次
8套農村漂亮三間平房圖片,非常適合在農村修建!
閱讀次數:411197次
農村自建房化糞池怎么做?附方案及施工過程
閱讀次數:391783次
農村一層三間平房設計圖,告別土氣養老房,讓人忍不住點贊
閱讀次數:350581次
新農村二層樓房圖片造價12萬,挑一套回家建房吧!
閱讀次數:349126次
