
|
河南44萬歐式別墅臥室床頭都朝東,帶有庭院露臺,農村自建劃算!
河南44萬歐式別墅臥室床頭都朝東,帶有庭院露臺,農村自建劃算! 項目名稱:河南駐馬店賀家歐式別墅 項目地點:河南省駐馬店市 建筑面積:297㎡ 基地面積:426㎡ 建筑尺寸:14m×11.8m 占地面積:160㎡ 圖紙編號:685 戶型概況:5室3廳3衛1廚1洗衣1衣帽1棋牌 建筑結構:磚混結構 主創建筑師:范亞朋 土建參考造價:44萬元(不包含室內裝修費用) 項目概況
河南44萬歐式別墅臥室床頭都朝東,帶有庭院露臺,農村自建劃算! △總平面示意圖 項目位于河南,建筑占地160平米。基地四周環路,北側道路后為一條小河,東側道路后有鄰居家住宅。四周環境較為簡單,對建筑影響有限。 業主對圖紙編號276的項目情有獨鐘,因此,建筑設計為歐式風格。 圖紙設計
河南44萬歐式別墅臥室床頭都朝東,帶有庭院露臺,農村自建劃算! △一層平面圖 根據當地風俗要求,臥室床頭都要朝向東側,因此家具擺放均根據床頭朝向進行一定調整。 入戶玄關旁是大面積客廳,較大的面積使得空間非常大氣。主臥位于東南角,采光和面積均適合居住。 南側空間和北側空間通過過廳分隔,西北角客房帶有衣帽間,提供更多功能的同時讓房間入口有所過渡。廚房和餐廳相鄰,樓梯間位于中間,一層布局十分合理,方便使用。
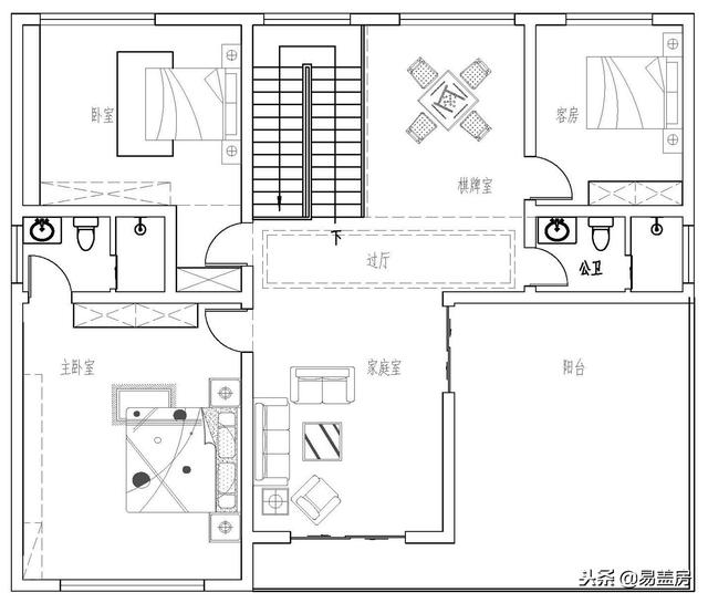
河南44萬歐式別墅臥室床頭都朝東,帶有庭院露臺,農村自建劃算! △二層平面圖 二層主要為起居空間,室內采光較好方位設計主臥,并配有獨立衛生間。樓梯間旁邊棋牌室符合鄉村生活需求,接待親朋更實用。東南角陽臺與家庭室相鄰,為業主及其家人提供室外活動空間。 造型設計
河南44萬歐式別墅臥室床頭都朝東,帶有庭院露臺,農村自建劃算! △鳥瞰圖 建筑整體為歐式風格,立面底部選用文化石配合上方真石漆讓建筑更為穩重,相近的顏色使得視覺上也十分舒適。院門與東側鄰居家院門相對,簡約大方的鐵藝院門與整體建筑十分搭配。
河南44萬歐式別墅臥室床頭都朝東,帶有庭院露臺,農村自建劃算! △鳥瞰圖 屋頂選用歐式常用四坡屋頂,滴水部分為白色,使得屋頂范圍更加明確。同時,滴水能更好保護外墻,也方便建筑日常維護。
河南44萬歐式別墅臥室床頭都朝東,帶有庭院露臺,農村自建劃算! △南側效果圖 門樓選用傳統人字頂雨棚,入戶空間以拱形柔化線條,讓入戶空間更為深邃。拱形門洞與西側拱形窗相互呼應,使得建筑各部分空間有所交流,提高整體性。
河南44萬歐式別墅臥室床頭都朝東,帶有庭院露臺,農村自建劃算! △東南側效果圖
河南44萬歐式別墅臥室床頭都朝東,帶有庭院露臺,農村自建劃算! △東立面圖
河南44萬歐式別墅臥室床頭都朝東,帶有庭院露臺,農村自建劃算! △西立面圖
河南44萬歐式別墅臥室床頭都朝東,帶有庭院露臺,農村自建劃算! △南立面圖
![]()
圖紙之家-專注農村別墅/自建房設計18年,集合國內200余位經驗豐富的設計師,被評為口碑最好的農村建筑設計公司! |

140平米二層半帶露臺別墅圖片及圖紙,戶型極佳
占地:140平方米
帶開放式車庫的二層別墅!配土灶、室外樓梯,新穎還顯品味
占地:127.2平方米
農村五間房子設計圖,大戶型別墅設計圖推薦
占地:240平方米
230平方米豪華歐式二層別墅CAD設計圖紙帶外觀效果圖,21.6×15米
占地:236平方米
三層新農村140平方米房屋設計圖紙,全套施工圖及效果圖
占地:140平方米
二層小別墅設計方案圖,平頂設計帶cad施工圖和外觀效果圖
占地:147平方米
經濟實用二層樓房設計圖紙,功能布局多,12×11米
占地:130平方米
二層農村自建小別墅設計圖,歐式風格,占地160平方米
占地:160平方米
一層鄉村自建別墅設計方案推薦,含外觀圖片
占地:148平方米
農村15萬元一層半小樓圖,最新的戶型設計
占地:182.31平方米
兄弟雙拼三層小戶型別墅設計圖紙,160平方米(單戶80平)
占地:163平方米
預算10萬左右新農村自建房屋設計圖紙,帶效果圖
占地:82平方米
2026新款新式農村50萬三層別墅圖片,帶地下室,美觀大氣
占地:130平方米左右
簡單實用二層自建房子設計圖,主體造價僅17萬
占地:106.387平方米
農村平屋頂三層現代風別墅戶型圖,簡約實用經濟顏值高
占地:111.9平方米
農村10萬元一層小別墅設計圖紙,戶型實用又合理
占地:130平方米
165平方米農村帶陽光房的二層小別墅設計圖紙帶外觀圖18.16米*9.
占地:166平方米
農村兩開間農村別墅設計圖,典雅大氣,完全不輸大戶型
占地:116.26平方米
自建三層小洋樓設計圖紙,含效果圖,帶車庫
占地:121平方米
農村中式二層4開間別墅圖紙設計方案圖,帶車庫戶型
占地:198平方米
推薦:10套新農村自建房設計圖,2026年最新設計
閱讀次數:4825737次
100套鄉村別墅圖片大全,2026年最新設計
閱讀次數:2492203次
6款農村蓋一層平房的設計圖,10萬元就能建起來
閱讀次數:1852637次
這11個一層農村自建房別墅火爆了朋友圈!我最喜歡戶型十!你呢
閱讀次數:750268次
農村6萬元建一層小別墅圖,你敢相信嗎
閱讀次數:567686次
農村5萬塊就能自建房,6套普通房子設計圖分享,你沒看錯!
閱讀次數:419410次
8套農村漂亮三間平房圖片,非常適合在農村修建!
閱讀次數:411197次
農村自建房化糞池怎么做?附方案及施工過程
閱讀次數:391783次
農村一層三間平房設計圖,告別土氣養老房,讓人忍不住點贊
閱讀次數:350581次
新農村二層樓房圖片造價12萬,挑一套回家建房吧!
閱讀次數:349126次
