
|
大家都知道在農村建房比城里買房相對的要便宜得多,住起來環境也好,面積寬敞,但是就是宅基地問題難處理好。 近年來國家對鄉村土地的政策收緊,再也不像從前那樣可以隨便劃一塊地建房,不僅如此,土地審批流程也愈發的繁瑣,一些適宜建房的地段你不一定能合法獲批。 今天小編給大家帶來的是一套處在低洼地段的別墅案例。
建筑風格為三層簡歐,主體結構為框架坡頂結構,整個建筑的基本信息為:開間?15米,進深15米。 由于業主宅基地背臨省道,修鋪省道時道路做了填高處理,致使本就低洼的宅基地與省道形成“斷崖”之勢。 房子想修建在此,這個斷崖是必須要處理的。 方案總共有兩個:
經過再三商量,業主還是選擇了加層處理,畢竟這樣最經濟實惠,也是比較合理的選擇。
建筑正面效果。?
建筑右側面效果。?建筑到省道的間距中加鋪了一個平臺,可以作為臨時停車坪使用。
建筑左側面效果。?三層設有一個觀光露臺,在上面晾曬衣物或者農作物都挺方便的。
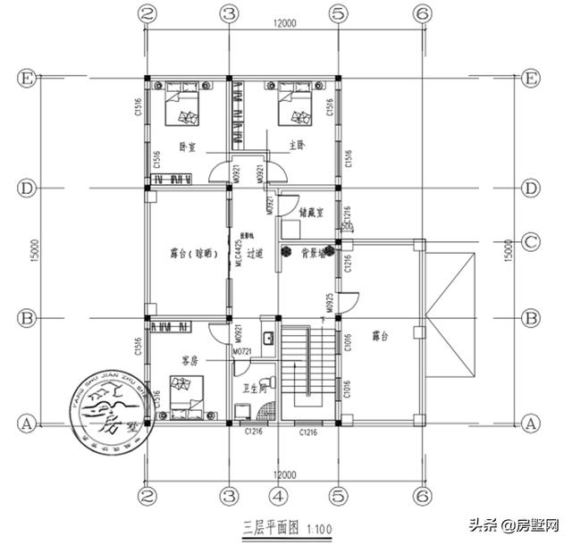
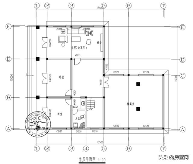
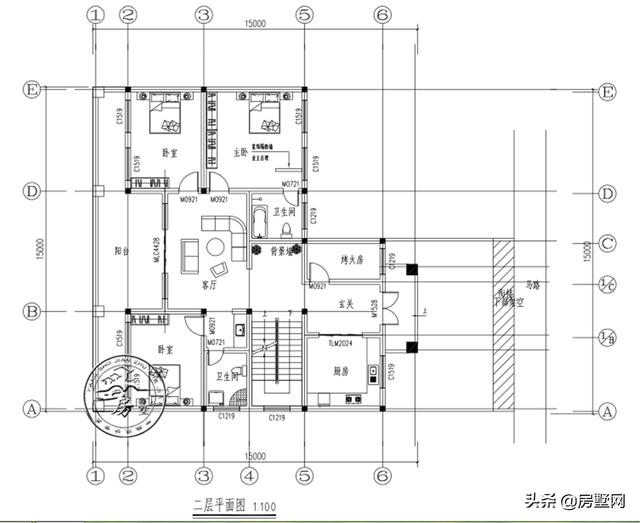
下面一起來看下平面設計圖:?
一層平面設計:?首層無法設后門,總共設有三個臥室,一個客廳,外加一個儲藏室。
二層平面設計:?二層總共有三個臥室,一個廚房還有一個烤火房。
三層平面設計:三層共設有三個臥室,基本為生活起居所用。 圖紙之家-專注農村別墅/自建房設計18年,集合國內200余位經驗豐富的設計師,被評為口碑最好的農村建筑設計公司! |

農村一層中式別墅設計圖,經典大氣,布局舒適,面寬20米
占地:192.92平方米
中式復古四層別墅房屋設計圖紙,含外觀效果圖
占地:90平方米
帶地下室的一層別墅設計圖,農村自建房比較合適
占地:206平方米
105平方米新農村三層別墅設計圖,全套CAD建筑圖+效果圖
占地:105平方米
15萬左右新中式二層別墅設計圖平面圖,占地110平米左右
占地:110平方米
經濟、不張揚!簡單二層別墅設計圖,農村建房直接抄作業
占地:198.58平方米
漂亮的農村三層小樓房設計圖,簡單大氣,帶車庫
占地:150平方米
巴洛克風格農村二層別墅設計圖(偏法式),對稱式設計,太講究
占地:210.25平方米
兄弟四間三層雙拼別墅設計圖,造價40萬左右
占地:210平方米
300平方二層別墅四合院設計圖紙方案(效果圖+施工圖)
占地:332平方米
130平新農村三層房屋設計圖紙,預算30萬以內,蓋房推薦
占地:132平方米
時尚一層別墅圖,一層這樣蓋房最漂亮
占地:160平方米
小型中式一層三合院別墅設計圖,小宅基地照樣建合院
占地:119.73平方米
大氣、簡約三層雙拼別墅設計圖,適合和父母同住,既相互關照又
占地:260平方米
農村仿古四合院設計圖自建房,外觀中式古樸典雅
占地:378平方米
最新潮的90平方米三層房屋設計圖 ,古樸典雅又不失時尚
占地:90平方米
兄弟倆二層雙拼別墅設計圖紙,一層共用,設計新穎
占地:180平方米
農村三層兄弟雙拼別墅設計圖及效果圖片,14X12米自建戶型
占地:154平方米
農村三間三層半別墅設計圖,舒適寬敞時尚經濟,居住生活方便舒
占地:168.29平方米
舒適大方三層房屋設計圖紙及圖片,占地150平米,布局合理,臥室
占地:150平方米
推薦:10套新農村自建房設計圖,2026年最新設計
閱讀次數:4825737次
100套鄉村別墅圖片大全,2026年最新設計
閱讀次數:2492203次
6款農村蓋一層平房的設計圖,10萬元就能建起來
閱讀次數:1852637次
這11個一層農村自建房別墅火爆了朋友圈!我最喜歡戶型十!你呢
閱讀次數:750268次
農村6萬元建一層小別墅圖,你敢相信嗎
閱讀次數:567686次
農村5萬塊就能自建房,6套普通房子設計圖分享,你沒看錯!
閱讀次數:419410次
8套農村漂亮三間平房圖片,非常適合在農村修建!
閱讀次數:411197次
農村自建房化糞池怎么做?附方案及施工過程
閱讀次數:391783次
農村一層三間平房設計圖,告別土氣養老房,讓人忍不住點贊
閱讀次數:350581次
新農村二層樓房圖片造價12萬,挑一套回家建房吧!
閱讀次數:349126次
