
|
現在農村的房子平頂房還是很少的,大多數人都蓋的是坡屋頂。那么為什么蓋平頂房的人這么少呢?很多人覺得平頂房不好看,而且在南方雨多,屋頂排水不是很方便,所以他們選擇建坡屋頂別墅。其實我認為平屋頂還是有很多優點的,而且如果設計的好看的話是一點也不比坡屋頂差的。今天就給大家推薦三款農村新式平頂房設計圖,三層別墅適合人口多的居住,一起看看吧。
方案一:農村現代別墅三層設計圖,占地100平米
圖紙介紹:本戶型占地100平米,小戶型設計,外觀時尚,簡約大氣,現代風別墅住著非常舒適。室內布局非常實用,采用平屋頂設計,占地不大造價經濟,深受廣大年輕朋友喜愛。 ![]() 占地面積:11.02m*9.67m,100平方米左右; 建筑層高:三層; 建筑高度:8.9米(含屋頂); 設計功能: 一層戶型:玄關、客廳、花池、餐廳、廚房、臥室、衛生間; 二層戶型:起居室、書房、臥室x2、衛生間、陽臺; 三層戶型:娛樂廳、茶座、露臺; ![]() ![]() ![]() 方案二:農村獨棟三層別墅設計圖,復式旋轉樓梯設計,平屋頂設計
圖紙介紹:本戶型復式客廳旋轉樓梯設計,外觀采用歐式風格,整體簡約,很符合現代人的審美。一層有兩間臥室,向南的可以作為老人房,內設衛生間,方便老人生活起居;二三層各有三間臥室;還有開放式露臺,適用于農村晾曬農作物。 ![]() 占地面積:10.02m*12.76m,131.08平方米左右; 建筑層高:三層; 建筑高度:10.42米(含屋頂); 設計功能: 一層戶型:客廳、廚房、餐廳、臥室(衛生間)x2、衛生間; 二層戶型:客廳上空、小客廳、臥室(衛生間)x2、臥室、衛生間; 三層戶型:棋牌室、書房、臥室(衛生間)x2、臥室、露臺; ![]() ![]() ![]() 方案三:農村三層別墅小洋樓設計圖,占地170平方米,平屋頂設計
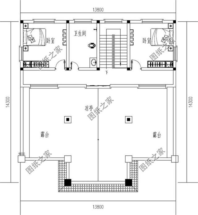
圖紙介紹:本戶型平屋頂設計,簡歐風格,房屋四面都設有開窗,增強室內采光和通風。屋頂設計非常美觀,層次分明,整體有一個大露臺,一邊可以當做晾曬區,另一邊作為空中花園,非常適合農村家庭建造。 ![]() ![]() ![]() ![]() 占地面積:13.8m*14.3m,170平方米左右; 建筑層高:三層; 建筑高度:11.7米(含屋頂); 設計功能: 一層戶型:門廳、走廊、客廳、廚房、餐廳、儲藏間、臥室x2、衛生間; 二層戶型:客廳、臥室x4、衣帽間、衛生間x2、陽臺、露臺; 三層戶型:臥室x2、衛生間、涼亭、露臺; 不知道這三款別墅有沒有大家中意的?下方留言,后續會繼續分享更多戶型。
圖紙之家-專注農村別墅/自建房設計18年,集合國內200余位經驗豐富的設計師,被評為口碑最好的農村建筑設計公司! |

雙拼豪華高端三層別墅設計圖,外觀效果圖大氣
占地:300平方米
鄉村一層帶閣樓歐式小別墅,“L”型七字設計戶型
占地:194.218平方米
7字型一層半農村別墅設計圖,美觀舒適,買了別墅的都會羨慕你
占地:229.14平方米
面寬20米大氣的農村二層別墅設計圖,戶型帶車庫和土灶房設計
占地:250.85平方米
小面寬的農村簡單四層2建平屋頂別墅設計圖,農村自建房首選
占地:109.29平方米
帶小院子的鄉村一層別墅設計圖紙,120平方米
占地:多戶型
泰式風格三層小別墅設計圖,帶車庫和大露臺
占地:120平方米
2026二層農村新款別墅設計圖,帶車庫,帶鍋爐房
占地:180平方米
320平方米高端農村帶車庫四合院別墅設計圖,徽派韻味十足
占地:320.89平方米
帶架空層一層農村別墅設計圖,回鄉建房優選,家有豪宅幸福來敲
占地:124.76平方米
新中式農村三層四合院別墅設計圖,四合院風格的別墅圖
占地:177平方米
130平左右三層樓房設計圖,新農村住宅自建推薦
占地:128平方米
農村最漂亮平頂三層別墅設計圖,10.5乘11.5米
占地:119.35平方米
180平高端歐式三層別墅圖紙設計,大戶型復式客廳
占地:182.016
農村小別墅一層設計圖紙,全套施工圖兩款戶型可選
占地:多種戶型可選
大戶型帶車庫的兩層農村自建房設計圖,施工簡單,戶型方正
占地:236平方米
高端三層別墅設計圖紙,客廳中空,帶地下室,設置多個套間
占地:220平方米
現代二層樓房圖片造價25萬,含全套設計圖,風格獨特
占地:多戶型可選
簡單二層農村別墅設計圖,占地適中,簡約造型,實用又經濟!
占地:128.4平方米
150平米簡單大方的三層農村自建房設計圖,坡層頂,色彩鮮明,布
占地:150平方米
推薦:10套新農村自建房設計圖,2026年最新設計
閱讀次數:4825737次
100套鄉村別墅圖片大全,2026年最新設計
閱讀次數:2492203次
6款農村蓋一層平房的設計圖,10萬元就能建起來
閱讀次數:1852637次
這11個一層農村自建房別墅火爆了朋友圈!我最喜歡戶型十!你呢
閱讀次數:750268次
農村6萬元建一層小別墅圖,你敢相信嗎
閱讀次數:567686次
農村5萬塊就能自建房,6套普通房子設計圖分享,你沒看錯!
閱讀次數:419410次
8套農村漂亮三間平房圖片,非常適合在農村修建!
閱讀次數:411197次
農村自建房化糞池怎么做?附方案及施工過程
閱讀次數:391783次
農村一層三間平房設計圖,告別土氣養老房,讓人忍不住點贊
閱讀次數:350581次
新農村二層樓房圖片造價12萬,挑一套回家建房吧!
閱讀次數:349126次
