
|
現在農村好多地方蓋房子都受到宅基地限制,除了這一點,別的想蓋什么戶型就蓋什么戶型。歐式、中式、現代隨便選擇,喜歡什么樣的都可以,這可比在城里買房好多了。今天小編就給大家帶來三款農村三層半帶露臺別墅圖片設計,如果在你那個地區宅基地也會受限制的話,不妨選擇這一款三層半的戶型吧,絕對的可以驚艷村里人,喜歡收藏。
款式一:農村三層半別墅設計圖,客廳挑空,高端大氣款
圖紙介紹:這款三層半別墅客廳挑空設計,整體采用對稱設計,外觀造型經典沉穩最大氣的地方就是門頭的設計了,再搭配上經典沉穩的外觀造型與厚重簡約的立柱設計,整棟建筑威嚴莊重自帶氣場。 占地面積:12.84m*13.44m,179.52平方米左右; 建筑層高:四層; 建筑高度:15.14米(含屋頂); 設計功能: 一層戶型:門廳、休閑區、客廳、廚房、餐廳、臥室、衛生間; 二層戶型:客廳上空、書房、臥室(帶衛生間)、臥室、衛生間、陽臺; 三層戶型:客廳、臥室(帶衛生間)、臥室(帶衣帽間、衛生間)、臥室、衛生間、陽臺x3; 四層戶型:運動室、臥室、衛生間、露臺; ![]() ![]() ![]() ![]() ![]() 款式二:農村歐式三層半獨棟別墅設計圖,豪華時尚,占地不到200平
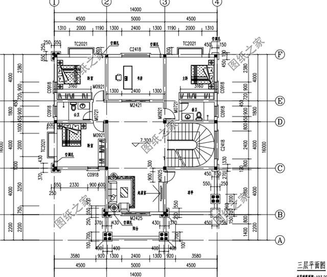
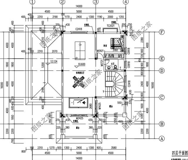
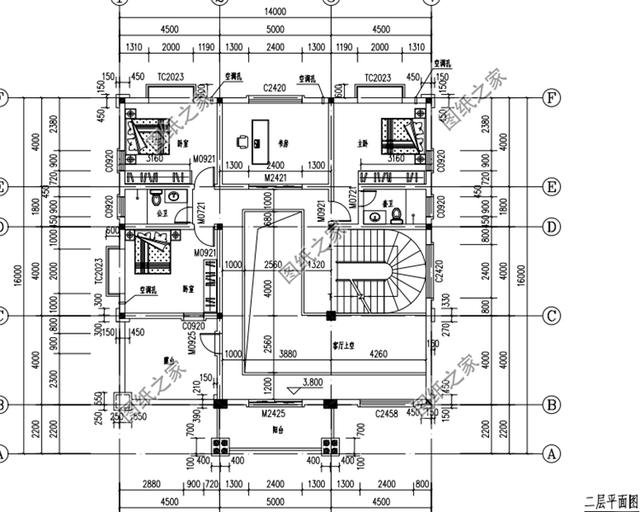
圖紙介紹:這款歐式三層半別墅設計豪華時尚,一樓客廳中空設計,每層樓都擁有充足的活動區。外觀時尚亮眼,淺黃色外墻搭配藍色屋頂,讓整棟房屋有種宮殿的即視感。 占地面積:14.00m*16.00m,194平方米左右; 建筑層高:四層; 建筑高度:16.62米(含屋頂); 設計功能: 一層戶型展示:門廳、神壇、客廳、餐廳、廚房、臥室、衛生間、主臥(帶衛生間); 二層戶型展示:客廳上空、主臥(帶衛生間)、書房、臥室×2、衛生間、陽臺、露臺; 三層戶型展示:起居室、主臥(帶衛生間)、書房、臥室×2、衛生間、陽臺、涼亭; 四層戶型展示:臥室、娛樂室、衛生間、露臺X2; ![]() ![]() ![]() ![]() ![]() 款式三:農村占地140平方米三層半別墅設計圖,帶車庫設計
圖紙介紹這款別墅客廳上空,每間臥室帶私衛,別墅外觀設計感十足。坡屋頂設計具有輕巧和空間延伸作用,與露臺配用起來非常有設計感。超大落地窗和多窗設計極大的增加了采光度和通風。 占地面積:12.0m*12.0m,140平方米; 建筑層高:四層; 建筑高度:16.2米(含屋頂); 設計功能: 一層戶型: 客廳,廚房,餐廳,公衛,車庫,臥室(帶主衛); 二層戶型:客廳上空,客廳,公衛,臥室(帶衛生間)X3; 三層戶型:臥室(帶衛生間)X3,陽臺,健身房,書房,起居室,公衛; 四層戶型:露臺,陽臺,書房,公衛,起居室,臥室(帶衛生間)X3; ![]() ![]() ![]() ![]() ![]() 這三款別墅絕對是內外兼修,一眼就愛上,趕快收藏圖紙吧。
圖紙之家-專注農村別墅/自建房設計18年,集合國內200余位經驗豐富的設計師,被評為口碑最好的農村建筑設計公司! |

大面寬一層別墅設計圖紙,新中式風格兩款戶型
占地:多戶型可選
面寬8米多小開間三層農村別墅設計圖,占地不足百平
占地:95.21
農村二層住宅樓房設計圖紙,全套方案(施工圖+效果圖)
占地:113平方米
160平方米二層平屋頂房屋設計圖紙及效果圖17x11米
占地:164平方米
2026二層農村新款別墅新式二層樓房設計圖,非常時尚
占地:多種戶型
經典實用的新農村三層房屋設計圖紙,推薦自建使用
占地:165平方米
三層復式別墅設計圖紙(含效果圖),復式住宅設計圖精選
占地:147.7平方米
110平農村二層房屋設計圖,新農村自建房戶型推薦
占地:110平方米
新農村三拼別墅三戶連體別墅設計圖,設計新穎美觀
占地:380平方米
二層小別墅設計方案圖,平頂設計帶cad施工圖和外觀效果圖
占地:147平方米
預算20萬的農村三層房屋設計圖方案,帶外觀效果圖
占地:115平方米
鄉村二層半別墅圖紙設計,歐式風格、錯落有致,150平左右
占地:149.76
2026年最新三層房屋設計圖紙,12米×11米,實用接地氣
占地:130平方米
時尚二層現代風別墅設計圖紙,平屋頂方案13×10米
占地:98平方米
新農村二層雙拼小別墅設計圖,開間22米的現代房屋圖紙設計
占地:230平方米
中國最美建筑四合院設計圖紙及效果圖,顏值爆棚
占地:152平方米左右
回老家蓋房就選這款新中式一層設計,16乘8米大小正合適
占地:130.1平方米
275平方米新農村雙拼樓中樓戶型別墅設計圖紙及效果圖21X14米
占地:275平方米
150平方米農村二層房屋建筑設計圖,15.2x9.4米
占地:148平方米
簡單農村二層平屋頂房屋設計圖,外觀簡潔、大方
占地:200平方米
推薦:10套新農村自建房設計圖,2026年最新設計
閱讀次數:4825737次
100套鄉村別墅圖片大全,2026年最新設計
閱讀次數:2492203次
6款農村蓋一層平房的設計圖,10萬元就能建起來
閱讀次數:1852637次
這11個一層農村自建房別墅火爆了朋友圈!我最喜歡戶型十!你呢
閱讀次數:750268次
農村6萬元建一層小別墅圖,你敢相信嗎
閱讀次數:567686次
農村5萬塊就能自建房,6套普通房子設計圖分享,你沒看錯!
閱讀次數:419410次
8套農村漂亮三間平房圖片,非常適合在農村修建!
閱讀次數:411197次
農村自建房化糞池怎么做?附方案及施工過程
閱讀次數:391783次
農村一層三間平房設計圖,告別土氣養老房,讓人忍不住點贊
閱讀次數:350581次
新農村二層樓房圖片造價12萬,挑一套回家建房吧!
閱讀次數:349126次
