
|
要是想要一棟全家都滿意的別墅,那么在設計上肯定要下非常大的功夫。盡管在村里有很多人建房子,但是自己都不喜歡,也不想和人家的一樣,就想要一款獨一無二的,這樣才滿意。今天小編就給大家推薦三款農村三間兩層樓房設計圖,80后、90后都看得上的別墅圖紙,這下建房再也不用發愁了,趕快往下看看吧。
方案一:農村占地80平米小戶型二層樓房設計圖,造價15萬
圖紙介紹:這款別墅戶型占地80平米左右,小戶型設計,造價15萬左右,外觀簡約大氣,內部布局非常合理,臥室三間足夠滿足一般家庭。 占地面積:11.2m*7.0m,80平方米左右; 建筑層高:二層; 建筑高度:8.6米(含屋頂); 設計功能: 一層戶型:客廳、餐廳、廚房、衛生間、臥室; 二層戶型:臥室(帶露臺)x2、衛生間; ![]() ![]() ![]() ![]() 方案二:農村15萬左右二層圖紙設計圖,占地120平米左右
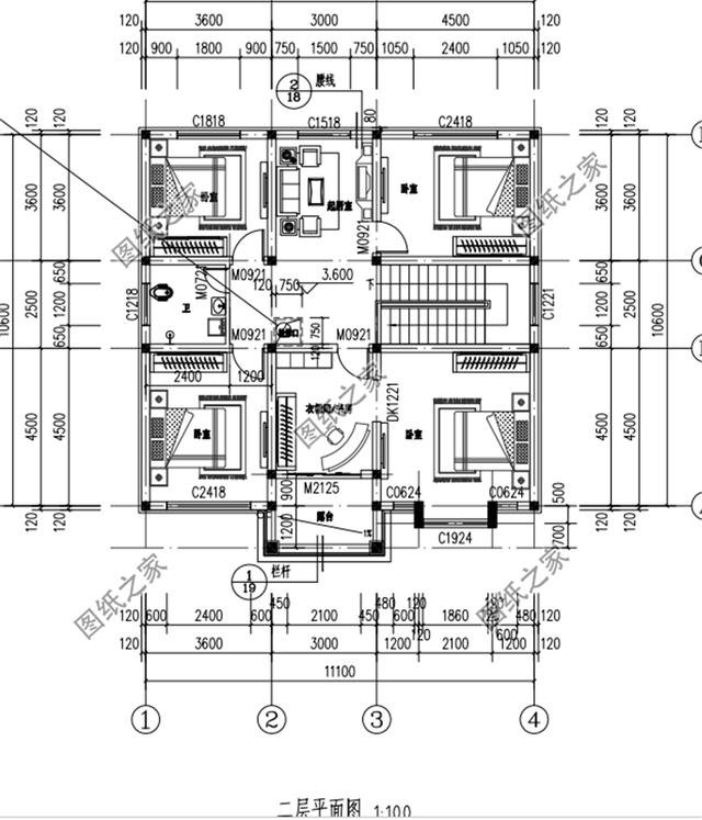
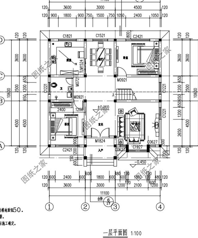
圖紙介紹:本戶型主體造價15萬左右,戶型簡單、實用,外觀美觀、耐看;內部結構合理,二樓主臥還帶書房和衣帽間。 占地面積:11.1m*10.6m,120平方米左右; 建筑層高:二層(含悶頂層); 建筑高度:10.13米(含屋頂); 設計功能: 一層房屋戶型:玄關、客廳、餐廳、廚房、臥室x2、、衛生間; 二層房屋戶型:起居室、主臥(帶書房/衣帽間)、次臥x3、衛生間; 悶頂層 ![]() ![]() ![]() ![]() 款式三:農村簡歐風二層自建房設計圖,造價26萬左右
圖紙介紹:這款別墅戶型方正,外觀典雅、大氣,一層衛生間緊挨房間,老人起宿方便。二樓四臥兩衛,書房用來辦公學習,休閑室作為休閑娛樂 占地面積:11.45m*11.6m,132.4平方米左右; 建筑層高:二層; 建筑高度:9.695米(含屋頂); 設計功能: 一層戶型:客廳、娛樂室、餐廳、廚房、臥室(帶衛生間)、衛生間; 二層戶型:客廳、休閑室、臥室(帶衛生間)、臥室x3、衛生間、陽臺; ![]() ![]() ![]() 看完這三款之后有沒有什么感覺,是不是也非常的符合您的眼光呢?喜歡趕緊收藏起來吧。
圖紙之家-專注農村別墅/自建房設計18年,集合國內200余位經驗豐富的設計師,被評為口碑最好的農村建筑設計公司! |

戶型方正的三層平頂小別墅設計圖,占地面積100平
占地:100.19平方米
農村4間3層樓房設計圖,帶車庫,挑空客廳,坡屋頂設計
占地:160平方米
四層巴洛克別墅設計圖,旋轉樓梯搭配超大挑空客廳,很有氣勢
占地:146平方米
農村三層復式自建樓房設計圖,外觀圖大氣
占地:130平方米
簡單二層農村別墅設計圖,占地適中,簡約造型,實用又經濟!
占地:128.4平方米
氣派的帶旋轉樓梯三層別墅房屋設計圖,戶型很好
占地:150平方米
超現代風格平頂別墅設計圖,外觀時尚,80、90很喜歡
占地:112.18平方米
簡單的復式住宅設計圖,客廳挑高,帶外觀效果圖片
占地:148平方米
農村三層雙拼別墅設計圖,兄弟建房開間20米,單戶80平方
占地:160平方米
新中式農村50萬三層別墅款式圖,占地面積160平米左右
占地:150平方米
農村三層別墅設計圖紙,造價50萬左右,中式風格,沉穩內斂
占地:160平方米
農村三間三層豪宅設計圖,自建別墅推薦戶型,帶地下室
占地:170平方米
全套歐式二層別墅設計cad圖紙,含效果圖,帶車庫
占地:211平方米
最新12x9米一層平房別墅設計圖,好看不貴居住舒適!
占地:108平方米
二層半大客廳復式別墅房屋設計圖,客廳寬闊明亮
占地:125平方米
100平左右鄉下三層樓房設計圖,戶型方正,小面積宅基地的福音
占地:100平方米
新農村實用三層帶露臺房屋設計圖紙,占地110平方米
占地:109平方米
農村最好看兩層小樓圖及全套CAD施工圖紙,新中式風格,簡潔大氣
占地:150平方米
帶電梯高端四層別墅房屋設計圖,外觀圖大氣、上檔次
占地:220平方米
高端三層別墅設計圖紙,客廳中空,帶地下室,設置多個套間
占地:220平方米
推薦:10套新農村自建房設計圖,2026年最新設計
閱讀次數:4825737次
100套鄉村別墅圖片大全,2026年最新設計
閱讀次數:2492203次
6款農村蓋一層平房的設計圖,10萬元就能建起來
閱讀次數:1852637次
這11個一層農村自建房別墅火爆了朋友圈!我最喜歡戶型十!你呢
閱讀次數:750268次
農村6萬元建一層小別墅圖,你敢相信嗎
閱讀次數:567686次
農村5萬塊就能自建房,6套普通房子設計圖分享,你沒看錯!
閱讀次數:419410次
8套農村漂亮三間平房圖片,非常適合在農村修建!
閱讀次數:411197次
農村自建房化糞池怎么做?附方案及施工過程
閱讀次數:391783次
農村一層三間平房設計圖,告別土氣養老房,讓人忍不住點贊
閱讀次數:350581次
新農村二層樓房圖片造價12萬,挑一套回家建房吧!
閱讀次數:349126次
