
|
雖說現在回農村建房早已不是什么新鮮事兒,但咱老百姓回農村建房,首先考慮實用,夠住、舒適是基本需求;其次是造價,有多少錢就建多大房;再次是美觀,好看才能掙臉面。所以今天給大家推薦這款占地130多平的三層帶車庫小洋房,實用好看造價也不高。
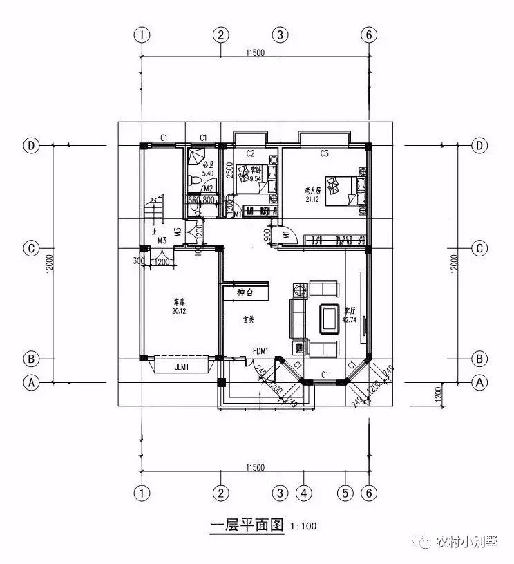
農村別墅基本信息 ? 占地尺寸:11.5米*12米 ? 占地面積:138平方米 ? 建筑面積:36平方米 ? 建筑結構:框架結構 ?主體造價:25-30萬
本套圖紙有施工圖35張,效果圖1張,包打印(效果圖為彩圖,施工圖為A3大圖),快遞包郵
現代別墅風格,占地面積145平方米,一層二層一個大的落地窗,使室內光線效果很好,各層獨立大客廳,室內面積更加寬敞,房屋底層貼的耐臟瓷磚,上層淺色瓷磚搭配白色線條,給人眼前一亮的感覺。
一層設有車庫、玄關、客廳、老人房、客臥、衛生間,入戶視野開闊,給人以一種不拘小節的通透感;除了必要的功能區外,還獨設有一間老人房方便長輩生活,同時入口玄關設神臺,符合農村生活傳統美德。
當然,如果家中平常客人來往不多,也可以當客臥改為廚房,方便日常起居。
二層:主臥(帶衛生間)、書房、陽臺、客廳、餐廳、廚房、衛生間,將餐廚搬到二樓與大客廳相融,獨立為套房形式,而且主臥室配備獨立衛生間,私密性好,非常符合現代農村年輕一代的居家需求。
三層:主臥(帶衛生間)、次臥、衛生間和休閑露臺,閑暇時間來這里遠眺風景嬉笑玩鬧也是一件不錯的事情。
圖紙之家-專注農村別墅/自建房設計18年,集合國內200余位經驗豐富的設計師,被評為口碑最好的農村建筑設計公司! |
|||||||||||||||||||||||||||||||||||||||||

別致美觀的簡歐二層別墅房屋設計圖,含外觀效果圖
占地:145平方米
新農村帶陽臺三層樓房圖紙,占地180平米左右,豪華大氣
占地:180平方米
豪華高端三層帶地下室別墅設計圖,可帶電梯
占地:210平方米
農村蓋平房設計大全圖,鄉下建房一層戶型圖及效果圖
占地:160平方米
農村一層四開間自建別墅,美麗住宅如詩如畫里15米乘10米
占地:142平方米
帶地下室的農村自建三層半歐式別墅設計圖,看著真豪氣!
占地:142.45平方米
一層合院中式小別院設計圖,白墻灰瓦,愜意十足!
占地:219平方米
農村三層樓房設計圖紙及效果圖,經典自建圖紙
占地:201平方米
140平中式徽派一層別墅設計圖,一層照樣建這樣漂亮
占地:140平方米
三層現代簡約農村雙拼小別墅圖,好看精致,開間17米
占地:187平方米
170平方米新農村現代樓中樓三層別墅設計施工圖紙及效果圖
占地:170平方米
120平方房子設計圖及外觀圖片,12x10經典設計
占地:120平方米
歐式三層農村別墅設計圖,占地130平方米自建房,低調又奢華鄉村
占地:129.8平方米
帶地下室的三層歐式別墅戶型設計圖,帶地下室農村自建房
占地:139.256平方米
大氣豪華四層別墅設計圖紙,占地180平米左右
占地:180平方米
2026新款農村四層別墅設計圖紙戶型圖,帶挑空客廳
占地:150平方米
三層現代平頂別墅設計圖,簡約時尚百看不厭,外觀令人驚艷!
占地:125.142平方米
農村25萬別墅款式二層自建房設計圖,外觀簡約大氣
占地:多種戶型
歐式三層別墅設計圖,低調奢華,實用布局,好設計不容錯過
占地:134.1平方米
180平高端歐式三層別墅圖紙設計,大戶型復式客廳
占地:182.016
推薦:10套新農村自建房設計圖,2026年最新設計
閱讀次數:4825737次
100套鄉村別墅圖片大全,2026年最新設計
閱讀次數:2492203次
6款農村蓋一層平房的設計圖,10萬元就能建起來
閱讀次數:1852637次
這11個一層農村自建房別墅火爆了朋友圈!我最喜歡戶型十!你呢
閱讀次數:750268次
農村6萬元建一層小別墅圖,你敢相信嗎
閱讀次數:567686次
農村5萬塊就能自建房,6套普通房子設計圖分享,你沒看錯!
閱讀次數:419410次
8套農村漂亮三間平房圖片,非常適合在農村修建!
閱讀次數:411197次
農村自建房化糞池怎么做?附方案及施工過程
閱讀次數:391783次
農村一層三間平房設計圖,告別土氣養老房,讓人忍不住點贊
閱讀次數:350581次
新農村二層樓房圖片造價12萬,挑一套回家建房吧!
閱讀次數:349126次
