
|
本案是九進為客戶設計的一款農宅,由半地下室,地上三層組成,是簡歐混搭古典柱的風格,外墻材料主要使用毛石、劈開磚、真石漆為主。整體外觀色調和諧,秀雅,造型通過建筑體塊組合來豐富視覺,不失大氣?。
建筑具體信息如下 房屋占地:157.43平方米 地上面積:342.30平方米 半地下室:127.80平方米 房屋層數:三層 結構形式:框架結構 房屋尺度:面寬15米×進深13.9米
整個建筑立體大氣,坐落鄉間,說它“氣宇軒昂”也一點都不為過。
建筑立面設計效果如下所示:
正立面設計效果,層次錯落,落落大方的構造,讓人看著就十分舒心。
右立面設計效果,構造分明,線條利索,設計感十足。
左立面設計效果,和右立面相差不大,局部做了調整改動。
再來看下建筑各部位的設計細節:
入戶位置的拱形門檐和墻面上凸出的柱體,把整個立面層次感提升,打造豐富多彩的立面。
二層內縮細節,更一步提升層次感。
下面一起來看下平面設計效果圖:
一層平面設計:一層主要為公共功能空間帶一個父母臥室,北側客人臥室根據后面實際情況可改為廚房功能。
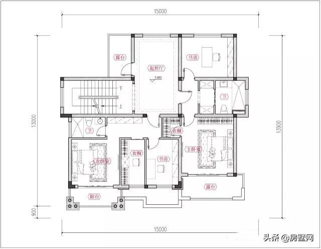
二層平面設計:二層主要為私人的兩個套房和起居室。
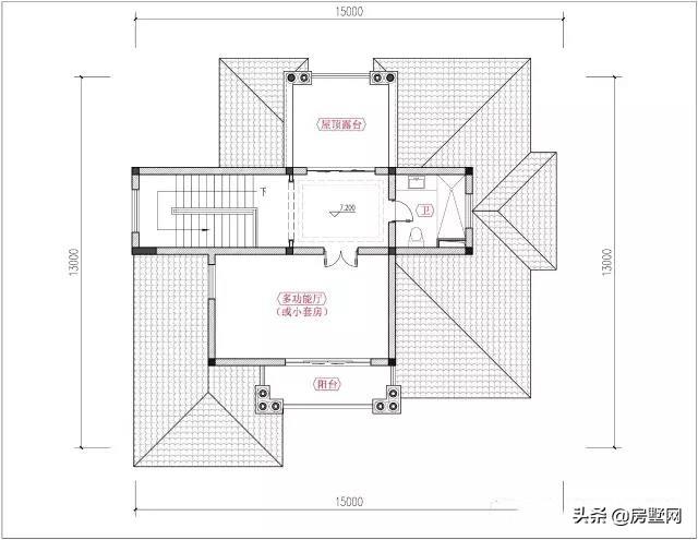
三層平面設計:三層多功能廳可裝修改為兩個客房或者一個套房,給予一定的裝修自由。
地下車庫設計效果。地下車庫為雙車庫,可從穿過車庫上至一層入室。 圖紙之家-專注農村別墅/自建房設計18年,集合國內200余位經驗豐富的設計師,被評為口碑最好的農村建筑設計公司! |

二層復式雙拼別墅設計圖(客廳中空),含外觀效果圖
占地:195平方米
帶地下室的三層歐式別墅戶型設計圖,帶地下室農村自建房
占地:139.256平方米
農村三層兄弟雙拼別墅設計圖及效果圖片,14X12米自建戶型
占地:154平方米
面寬10米左右的三層農村別墅設計案例,低調又奢華
占地:120平方米
農村新款二層中式別墅設計圖效果圖,帶堂屋設計
占地:144平方米
農村蓋房設計大全一層房子的設計圖紙,色調清新靚麗
占地:220平方米
兄弟合建中式一層四合院設計圖,古樸雅致代代相傳,永不過時
占地:468.03平方米
20萬農村自建三層別墅設計圖,外觀美觀,戶型實用
占地:105平方米
帶車庫現代三層房屋別墅設計圖,占地110平米左右,功能齊全
占地:110平米
最美中式合院別墅圖,這才是中國農村該建的房子,如此精美絕倫
占地:380平方米
農村兩間兩層樓房設計圖,造價15萬左右,獨立的廚房設計,干凈
占地:95平方米
農村一層平房別墅設計圖紙,130平米左右,主體十幾萬
占地:130平方米左右
240平農村二層自建別墅設計圖紙,帶你體驗家的溫馨
占地:240平方米
豪華二層別墅設計圖紙及效果圖,帶車庫,歐式別墅方案
占地:170平方米
簡單實用的四層農村自建房屋設計圖,占地100平米左右
占地:100平方米
一層中式風格自建小院,白墻黛瓦舒適宜居,享受舒適愜意的鄉村
占地:263.94平方米
新農村四層獨棟復式別墅設計圖,設計豪華時尚
占地:140平方米
農村二層小別墅自建房屋設計圖,客廳中空,占地150平米
占地:150平方米
2026新款農村15萬元二層小樓圖,占地90平米左右
占地:多種戶型
三層平屋頂別墅房屋設計圖及外觀效果圖
占地:150平方米
推薦:10套新農村自建房設計圖,2026年最新設計
閱讀次數:4825737次
100套鄉村別墅圖片大全,2026年最新設計
閱讀次數:2492203次
6款農村蓋一層平房的設計圖,10萬元就能建起來
閱讀次數:1852637次
這11個一層農村自建房別墅火爆了朋友圈!我最喜歡戶型十!你呢
閱讀次數:750268次
農村6萬元建一層小別墅圖,你敢相信嗎
閱讀次數:567686次
農村5萬塊就能自建房,6套普通房子設計圖分享,你沒看錯!
閱讀次數:419410次
8套農村漂亮三間平房圖片,非常適合在農村修建!
閱讀次數:411197次
農村自建房化糞池怎么做?附方案及施工過程
閱讀次數:391783次
農村一層三間平房設計圖,告別土氣養老房,讓人忍不住點贊
閱讀次數:350581次
新農村二層樓房圖片造價12萬,挑一套回家建房吧!
閱讀次數:349126次
