
|
農村自建房多數人還是喜歡經典兩層的別墅,畢竟要保證住幾十年不落后。現在一眼望去基本上村里都是歐式的小洋房,何先生想蓋個有點區別的,下面介紹的是何先生的別墅,個性不張揚,低調有內涵。
房子的整體造型簡潔素雅,優雅復古結構層次豐富,搭配的顏色主要是奶白和湛藍色,看上去比較舒緩養眼。
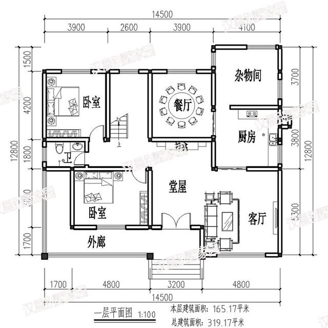
開間14.5米,進深12.8米,占地面積165.17平方米,總建筑面積319.17平方米。
平面圖:入戶有堂屋,一層除了有廚房、餐廳、雜物間、衛生間之外還有兩間臥室,廚房后面雜物間非常實用,在農村如果有土灶房的還可以存放雜物。
臥室有四間,客廳挑空,休息廳面積雖然不大卻能夠俯瞰一層的客廳,也開闊了視野。
圖紙之家-專注農村別墅/自建房設計18年,集合國內200余位經驗豐富的設計師,被評為口碑最好的農村建筑設計公司! |

11x13米兩層半現代風別墅設計圖,??看過的都后悔建早了!
占地:126.02平方米
占地70平米一層小戶型別墅設計圖,功能齊全造價低,耐看實用
占地:70.19平方米
不帶廚房餐廳的二層別墅設計圖,農村建房很多人都這樣做
占地:124平方米左右
140平二層帶閣樓別墅設計方案圖,外觀圖片色彩明快
占地:140平方米
12x10三層別墅設計圖,農村自建房推薦戶型
占地:120平方米
100平內簡單精致的小戶型自建房二層設計圖,旋轉樓梯
占地:97.08平方米
帶地下室的農村自建三層半歐式別墅設計圖,看著真豪氣!
占地:142.45平方米
三層新農村住宅設計圖及效果圖,三層樓房設計圖展示
占地:140平方米
豪華農村帶露臺三層樓房別墅設計圖紙,占地200平方米左右
占地:200平方米
高端豪華三層別墅住宅設計方案圖,歐式外觀風格
占地:170平方米
兄弟共建一層雙拼平房設計圖,省錢省心又可相互照應
占地:177.27平方米
面寬13米二層鄉村自建別墅戶型圖,帶堂屋和露臺
占地:135.47平方米
130平方米湖南二層復式自建房屋設計圖紙12x11米
占地:128平方米
農村一層大別墅施工圖,18米乘12米,讓生活充滿儀式感
占地:216平方米
帶開放式車庫的二層別墅!配土灶、室外樓梯,新穎還顯品味
占地:127.2平方米
兩層20萬農村自建房設計圖,經典農村建房款式,越看越有韻味
占地:160平方米
五間兩層農村自建房設計圖,大門居中真氣派,空間寬敞生活質量
占地:219.94平方米
仿古中式三合院設計圖紙,帶堂屋,適合農村自建
占地:173平方米
帶地下室獨棟三層高端別墅房圖紙設計圖,復式客廳旋轉樓梯
占地:146.145平方米
120平帶車庫二層農村別墅施工圖,簡約時尚的外觀
占地:119.13平方米
推薦:10套新農村自建房設計圖,2026年最新設計
閱讀次數:4825737次
100套鄉村別墅圖片大全,2026年最新設計
閱讀次數:2492203次
6款農村蓋一層平房的設計圖,10萬元就能建起來
閱讀次數:1852637次
這11個一層農村自建房別墅火爆了朋友圈!我最喜歡戶型十!你呢
閱讀次數:750268次
農村6萬元建一層小別墅圖,你敢相信嗎
閱讀次數:567686次
農村5萬塊就能自建房,6套普通房子設計圖分享,你沒看錯!
閱讀次數:419410次
8套農村漂亮三間平房圖片,非常適合在農村修建!
閱讀次數:411197次
農村自建房化糞池怎么做?附方案及施工過程
閱讀次數:391783次
農村一層三間平房設計圖,告別土氣養老房,讓人忍不住點贊
閱讀次數:350581次
新農村二層樓房圖片造價12萬,挑一套回家建房吧!
閱讀次數:349126次
