
|
現在回到老家 會發現很多老宅都在拆除和重建 整個鄉村開始恍然一新 變得更加美麗了
那些曾經背井離鄉到城市里奮斗的青少年 現在終于功成名就,衣錦還鄉 圓小時候的夢 給爸媽蓋上一棟豪華大別墅 每家每戶的人員數目都不一樣 新建的別墅一定要夠住 所以小編給大家介紹4款不同風格的別墅
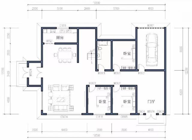
既能滿足現有人員的居住 還能滿足未來有可能增加的人員居住 很適合家庭成員多的人群搭建 NO.1地中海風格 最多可居住8人
建筑面積:292㎡ 精裝交付參考價:117萬 4室3廳1廚5衛2陽臺 室內戶型 ▼
△一層平面圖
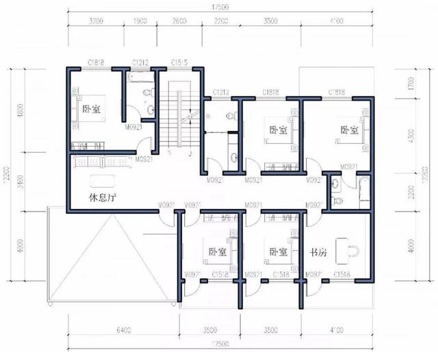
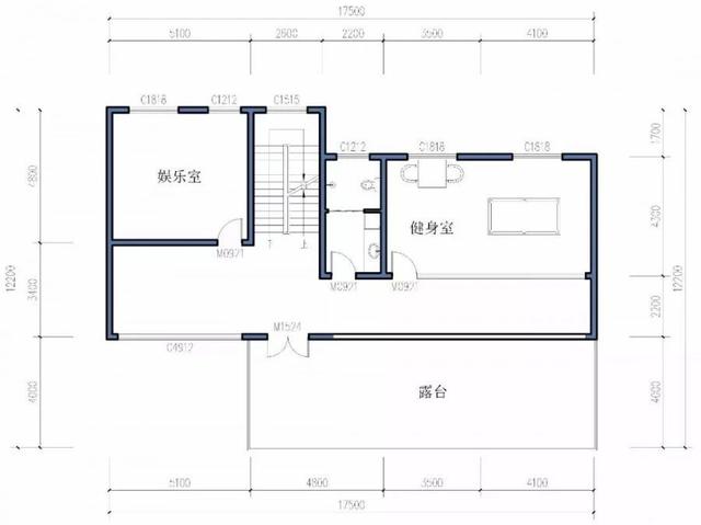
△二層平面圖 NO.2歐式風格 最多可居住14人
建筑面積:390㎡ 精裝交付參考價:156萬 7室3廳1廚5衛1陽臺 室內戶型 ▼
△一層平面圖
△二層平面圖
△三層平面圖
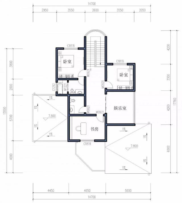
NO.3美式風格 最多可居住10人
建筑面積:280㎡ 精裝交付參考價:98萬 5室3廳1廚3衛1陽臺 室內戶型 ▼
△一層平面圖
△二層平面圖
NO.4現代風格 最多可居住28人
建筑面積:703㎡ 精裝交付參考價:281萬 14室3廳1廚8衛6陽臺 室內戶型 ▼
△一層平面圖
△二層平面圖
△三層平面圖
△四層平面圖 圖紙之家-專注農村別墅/自建房設計18年,集合國內200余位經驗豐富的設計師,被評為口碑最好的農村建筑設計公司! |

150平米簡單大方的三層農村自建房設計圖,坡層頂,色彩鮮明,布
占地:150平方米
170平方米雙拼別墅戶型建筑設計圖紙及外觀效果圖,復式單戶85平
占地:170平方米
帶屋頂平臺的一層農村小別墅圖,有閣樓有露臺
占地:152平方米
12x9米自建一層小別墅設計圖,占地不大造價低,簡單舒適人人夸
占地:108.36平方米
面寬20多米二層新中式雙拼別墅設計圖,外觀漂亮時尚
占地:246.66平方米左
農村七字型一層別墅圖,獨立廚房設計,鄉村建房優選戶型
占地:159.76平方米
300平方二層別墅四合院設計圖紙方案(效果圖+施工圖)
占地:332平方米
120平米三層小別墅設計方案和效果圖,端莊大氣很經典
占地:120平方米
獨棟小別墅設計圖,造價30萬左右的獨棟小別墅設計推薦
占地:150平方米
鄉村自建獨棟三層別墅樓房設計圖,預算30萬內
占地:120平方米
帶地下室一層別墅設計方案,功能布局齊全實用
占地:256.5平方米
小戶型經濟型三層雙拼小別墅施工設計圖紙,單戶100平內
占地:150平方米
歐式四層(三層半)獨棟別墅設計圖復式,設計豪華時尚
占地:194平方米
農村一層四間平房設計圖方案,含外觀圖片,預算10萬
占地:190平方米
13.5米乘11米兩層半別墅設計圖,中式與現代相融合
占地:148.5平方米
130平方米復式三層別墅房屋設計圖,含外觀效果圖
占地:130平方米
新中式二層雙拼別墅農村自建房子設計圖紙,面寬19米
占地:240平方米左右,單
兩開間自建別墅設計圖,占地小造型簡約,不愁宅基地面寬小了
占地:118.4平方米
農村蓋房設計大全一層房子的設計圖紙,色調清新靚麗
占地:220平方米
新中式農村自建二層別墅設計圖,占地160平米左右,客廳中空
占地:160平方米
推薦:10套新農村自建房設計圖,2026年最新設計
閱讀次數:4825737次
100套鄉村別墅圖片大全,2026年最新設計
閱讀次數:2492203次
6款農村蓋一層平房的設計圖,10萬元就能建起來
閱讀次數:1852637次
這11個一層農村自建房別墅火爆了朋友圈!我最喜歡戶型十!你呢
閱讀次數:750268次
農村6萬元建一層小別墅圖,你敢相信嗎
閱讀次數:567686次
農村5萬塊就能自建房,6套普通房子設計圖分享,你沒看錯!
閱讀次數:419410次
8套農村漂亮三間平房圖片,非常適合在農村修建!
閱讀次數:411197次
農村自建房化糞池怎么做?附方案及施工過程
閱讀次數:391783次
農村一層三間平房設計圖,告別土氣養老房,讓人忍不住點贊
閱讀次數:350581次
新農村二層樓房圖片造價12萬,挑一套回家建房吧!
閱讀次數:349126次
