
|
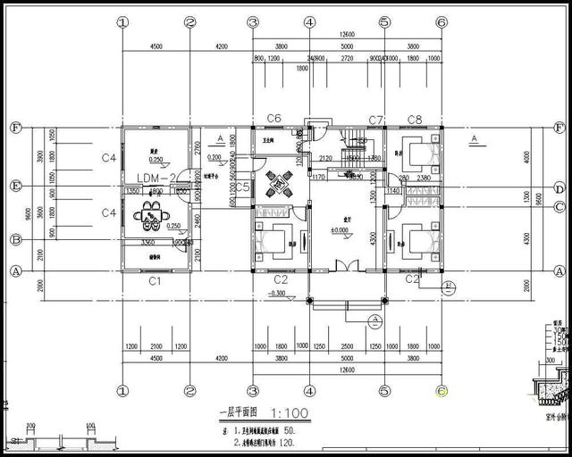
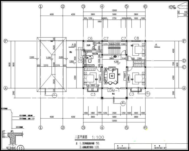
給大家推薦一款二層帶堂屋的建筑別墅圖紙,這款別墅,廚房和餐廳是和房子的主體分開的,有的人很喜歡,這樣潔凈分開,很合理,但是有的人廚房和主體分開不方便。
別墅為二層磚混結構,開間12.6米,進深9.6米,占地面積126.3平方米,建筑面積252.6平方米,主體造價18-22萬,不含裝修和地基。
戶型功能,一層設計有三間臥室、堂屋兼客廳、衛生間,廚房和餐廳在主體左側,中間連著一個過道。二層設計有3臥室、客廳、開放式書房、衛生間和屋頂露臺。
圖紙之家-專注農村別墅/自建房設計18年,集合國內200余位經驗豐富的設計師,被評為口碑最好的農村建筑設計公司! |

簡歐漂亮農村二層別墅設計方案圖紙,12米乘9米
占地:多戶型可選
一層農村自建房設計圖,造型美觀大氣,占地150平
占地:153.415平方米
帶閣樓的二層半別墅設計圖和效果圖,外飾簡單但不失奢華
占地:210平方米
125平自建房設計圖二層戶型,建房選這款準沒錯
占地:124.04平方米
2026年新款一層住宅別墅設計圖紙,中式風格漂亮極了
占地:207平方米
一層鄉村別墅設計戶型圖,占地100平左右,外觀很時尚
占地:100平方米左右
二層小型簡單四合院設計圖,戶型方正,左右對稱,傳統文化的傳
占地:470平方米
奢華歐式二層樓房設計圖,入戶設有玄關,一層大窗設計
占地:190平方米
三層新農村住宅房屋設計圖,溫馨美觀的戶型
占地:180平方米
農村三層雙拼別墅設計圖,帶外觀效果圖,推薦
占地:190平方米
農村四層復式樓房設計圖,外觀效果圖+全套圖紙
占地:108平方米
兩層半20萬農村自建房,占地120平米左右
占地:120平方米
面寬18米二層新中式別墅圖紙設計,復式戶型,帶堂屋
占地:269.83平方米
歐式兩層別墅樓房設計圖紙施工方案,高端豪華外觀圖片
占地:138平方米
對稱設計二層歐式別墅設計圖,優雅時尚有品位
占地:151.85平方米
經典簡約三層農村自建房設計圖,功能實用簡單大氣,比城里鴿子
占地:144平方米
110平農村二層房屋設計圖,新農村自建房戶型推薦
占地:110平方米
四開間一層自建房設計圖,四臥二廳+棋牌室+書房
占地:181.29平方米
時尚大氣的三層現代風別墅設計圖,露臺+挑空客廳
占地:321平方米
帶大露臺二層現代風別墅設計圖,去繁從簡,好看不過時
占地:122.25平方米
推薦:10套新農村自建房設計圖,2026年最新設計
閱讀次數:4825737次
100套鄉村別墅圖片大全,2026年最新設計
閱讀次數:2492203次
6款農村蓋一層平房的設計圖,10萬元就能建起來
閱讀次數:1852637次
這11個一層農村自建房別墅火爆了朋友圈!我最喜歡戶型十!你呢
閱讀次數:750268次
農村6萬元建一層小別墅圖,你敢相信嗎
閱讀次數:567686次
農村5萬塊就能自建房,6套普通房子設計圖分享,你沒看錯!
閱讀次數:419410次
8套農村漂亮三間平房圖片,非常適合在農村修建!
閱讀次數:411197次
農村自建房化糞池怎么做?附方案及施工過程
閱讀次數:391783次
農村一層三間平房設計圖,告別土氣養老房,讓人忍不住點贊
閱讀次數:350581次
新農村二層樓房圖片造價12萬,挑一套回家建房吧!
閱讀次數:349126次
