
項目名稱 湖南邵陽阮家歐式別墅 圖紙編號 1128 建筑面積 572.6㎡ 占地面積 163.6㎡ 建筑尺寸 12.2m×12.6m 建筑結構 磚混結構 參考造價 91萬元(不含室內裝修費用) 項目概況
△總平面示意圖 基地情況: 東:空曠空地 南:入戶小路 西:村內道路 北:村內道路 項目簡介: 該項目的業主非常信任易蓋房,與我們進行二次合作,在項目前期從易蓋房圖庫中挑選了1127號圖紙委托設計師進行功能性優化,造型顏色的改變的同時,需要將尺寸調整以符合第二棟的基地情況。因此設計師根據業主的需求及喜好,將項目形式確定為南北朝向的四層歐式別墅。 平面布局 戶型概況: 4層 / 10室 1堂室 3廳 8衛 1廚 1茶室 3衣帽 1KTV 1洗衣 2陽臺 2露臺
△一層平面圖 一層中部堂室、樓梯間以南北貫通之勢劃分東西區域,北側設置的老人房與半開放式廚房、餐廳相呼應,餐廚空間使用博古架作為軟隔斷與東客廳相鄰,南側設置茶室,為休閑待客提供舒適便捷的居住體驗。
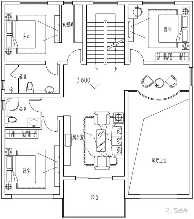
△二層平面圖 整層空間以居住休閑為主,設置三間臥室,并增設起居室功能,東側預留挑空區域與起居室相銜接,向南延伸出陽臺空間,充分提升室內采光效果。
△三層平面圖
△四層平面圖 三、四層均以居住娛樂為主,三層的KTV室較第一棟而言,從南側改置于北側,并增設起居室功能;四層東南側依舊預留大體量露臺空間。 造型設計
△南側效果圖 建筑整體為歐式風格,立面采用暖色,以顏色深淺反映出空間層次感。經典三段式顏色設計與歐式別墅的優雅極為貼合,也使得建筑視覺上更加舒服。
△西南側效果圖 茶室通高位置在立面上表現為拱形窗,兩層分界處利用精致花紋確定界限。通透玻璃讓相對厚重的墻體更加靈動和輕薄,也增加了室內外的交流。
△東北側效果圖
△東南側效果圖 建筑主體線條干練精簡,墻面沒有過多裝飾,以建材欄桿設計和窗戶的排列組合形成側面的完整造型。窗戶根據室內不同分區采用不同幾何形狀,讓建筑連貫性和豐富度都得到保證。
△鳥瞰圖
△鳥瞰圖 露臺豐富整體層次,使得建筑有虛有實。室外空間的增加也為業主提供了更多活動空間,增加使用樂趣和體驗。
△東立面圖
△西立面圖
△南立面圖
△北立面圖 圖紙之家-專注農村別墅/自建房設計18年,集合國內200余位經驗豐富的設計師,被評為口碑最好的農村建筑設計公司! |

11X10米三層別墅農村自建房設計圖,復式挑空客廳
占地:119.08平方米
10萬內2層小洋樓設計圖,平屋頂,戶型設計合理
占地:90平方米
鄉村高檔四層豪華別墅自建房設計圖,一層不帶餐廳廚房戶型
占地:147平方米
適合小面寬宅基地的兩開間別墅設計圖,8.5米乘13.5米
占地:107.66平方米
160平方米農村三層小別墅設計圖紙,13.8x12.7米
占地:163平方米
新農村自建20萬二層小樓外觀圖及戶型圖,簡單大方,漂亮接地氣
占地:130平方米
面寬8米多的三層農村別墅設計圖,小開間宅基地推薦
占地:112.82平方米
農村五間房子設計圖,大戶型別墅設計圖推薦
占地:240平方米
農村小戶型二層房屋別墅設計圖,帶外觀效果圖
占地:95平方米
200平方米穩重大氣三層雙拼別墅建筑設計圖紙,含效果圖19.04米
占地:200平方米
面寬13米二層鄉村自建別墅戶型圖,帶堂屋和露臺
占地:135.47平方米
帶院子的四間二層別墅房屋設計圖,帶獨立車庫
占地:350平方米
漂亮的二層中式現代別墅圖,配色非常的溫馨淡雅
占地:160平方米
95平經濟適用三層農村小別墅設計圖,二開間推薦爆款戶型
占地:95.31平方米
舒適大方三層房屋設計圖紙及圖片,占地150平米,布局合理,臥室
占地:150平方米
面寬18米二層農村大別墅設計圖,可帶電梯,舒適又實用
占地:138.29平方米
125平方米新中式農村自建三層別墅建筑設計圖紙及效果圖
占地:124平方米
地中海風格二層別墅設計圖方案,含外觀效果圖
占地:130平方米
一層中式七字型房屋設計圖,帶院子經典設計,耐看不過時
占地:163.18平方米
新農村140平米樓房圖四層獨棟別墅設計圖,簡歐外觀風格設計
占地:141平方米
推薦:10套新農村自建房設計圖,2026年最新設計
閱讀次數:4825737次
100套鄉村別墅圖片大全,2026年最新設計
閱讀次數:2492203次
6款農村蓋一層平房的設計圖,10萬元就能建起來
閱讀次數:1852637次
這11個一層農村自建房別墅火爆了朋友圈!我最喜歡戶型十!你呢
閱讀次數:750268次
農村6萬元建一層小別墅圖,你敢相信嗎
閱讀次數:567686次
農村5萬塊就能自建房,6套普通房子設計圖分享,你沒看錯!
閱讀次數:419410次
8套農村漂亮三間平房圖片,非常適合在農村修建!
閱讀次數:411197次
農村自建房化糞池怎么做?附方案及施工過程
閱讀次數:391783次
農村一層三間平房設計圖,告別土氣養老房,讓人忍不住點贊
閱讀次數:350581次
新農村二層樓房圖片造價12萬,挑一套回家建房吧!
閱讀次數:349126次
