
|
現在農村很多人對于別墅的外觀定義,都是比較傳統的審美,以前經典和長久的用色搭配深入人心,所以現在很多設計師只有在原有的基礎上稍稍做出一些變動即可,總體的配色其實并沒什么創意之處,今天小安就推薦一款83平的新鮮小別墅,用色大膽,效果一絕,設計師的腦洞真大!
這是一款占地83平的三層歐式小別墅,別墅的開間是8.7米,進深是9.7米,采用的是磚混的結構形式,主體的造價在25萬左右。別墅的外墻用色是比較大膽鮮明的,一層是用深棕色真石漆噴飾,二三層是米白色的真石漆噴飾。兩者顏色雖對比明顯,但是能更好的突顯出別墅的層次和結構,屋頂用墨藍色琉璃瓦裝飾,又是亮眼的一處設計,沒想到這么大膽的幾種沒聯系的色調結合一起竟能起到如此美妙的效果。
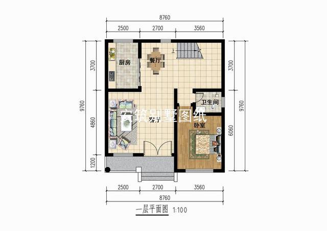
一層入戶是客廳,客廳的寬敞設計,一入門就有自然的舒適感。右側是一間帶有衛生間的臥室,方便日常的起居。廚房設在西北角,能減少對南面的污染。
二層設有三間臥室,呈L型相連分布,能很好的方便溝通和互動。其中的西南角的臥室設計較為寬敞,還帶有陽臺,室內的居住效果特別棒。
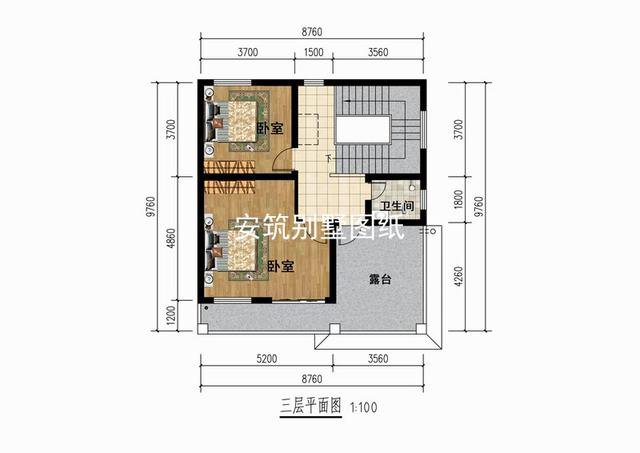
三層北面設有兩間臥室,東面的公共衛生間的設計還是與一二層的位置相同,能方便施工,減少施工時間。南面還是有一個大露臺,能滿足日常的晾曬需求。 圖紙之家-專注農村別墅/自建房設計18年,集合國內200余位經驗豐富的設計師,被評為口碑最好的農村建筑設計公司! |

110平方米農村三層復式房屋施工圖,通透時尚,低調又奢華
占地:107.98平方米
農村兄弟雙拼別墅三層,美觀氣派,室內布局合理實用
占地:300平方米
面寬20多米二層新中式雙拼別墅設計圖,外觀漂亮時尚
占地:246.66平方米左
新農村私人別墅建筑設計施工圖,全套別墅設計圖紙
占地:多種戶型
150平方米大平層別墅設計圖,時尚大氣舒適實用
占地:149.43平方米
155平方米自建二層CAD房屋設計圖紙及效果圖,13X12米
占地:156平方米
新式三層別墅設計圖,客廳中空,占地125平米左右
占地:125平米
面寬17米農村實用自建房一層別墅設計圖,簡約大氣經濟時尚
占地:192.94平方米
11X10米三層別墅農村自建房設計圖,復式挑空客廳
占地:119.08平方米
農村一層中式三合院戶型設計圖,造型古香古色
占地:215平方米左右
80多平米二層小型自建房設計圖,經濟舒適別具一格
占地:84.48平方米
最新農村20萬元二層半別墅設計圖,占地僅110多平
占地:110平方米
新農村三層樓房住宅設計方案,戶型圖、效果圖、全套施工圖
占地:180平方米
架空層設計的農村自建房別墅設計圖,既做車庫又做儲物間,太實
占地:230.62平方米
中式四合院風格別墅設計圖,平屋頂,書房、茶室、健身房一應俱
占地:370平方米
面寬14.5米三層獨棟別墅設計圖,經典設計,大氣之作
占地:123.85平方米
80-90平米二層經典小別墅房屋設計圖,左右對稱外觀
占地:88.46平方米
大面寬一層別墅設計圖紙,新中式風格兩款戶型
占地:多戶型可選
140平中式徽派一層別墅設計圖,一層照樣建這樣漂亮
占地:140平方米
農村16萬一層平房小院設計圖,左右對稱布局好,南北方都能建
占地:195.9平方米
推薦:10套新農村自建房設計圖,2026年最新設計
閱讀次數:4825737次
100套鄉村別墅圖片大全,2026年最新設計
閱讀次數:2492203次
6款農村蓋一層平房的設計圖,10萬元就能建起來
閱讀次數:1852637次
這11個一層農村自建房別墅火爆了朋友圈!我最喜歡戶型十!你呢
閱讀次數:750268次
農村6萬元建一層小別墅圖,你敢相信嗎
閱讀次數:567686次
農村5萬塊就能自建房,6套普通房子設計圖分享,你沒看錯!
閱讀次數:419410次
8套農村漂亮三間平房圖片,非常適合在農村修建!
閱讀次數:411197次
農村自建房化糞池怎么做?附方案及施工過程
閱讀次數:391783次
農村一層三間平房設計圖,告別土氣養老房,讓人忍不住點贊
閱讀次數:350581次
新農村二層樓房圖片造價12萬,挑一套回家建房吧!
閱讀次數:349126次
