
|
現在農村孩子都出去讀書或打工,也就留在城市發展。農村的老房子也許只有父母居住,給他們建房子的話貴在實用,安全,溫暖,而不是奢華。宅基地不大的,蓋個單層的小戶型就夠家里人住了。今天住宅公園就給大家分享6套單層自建房戶型,想蓋房的朋友可以參考。 第一套 這套戶型占地13x12米,占地面積146平方米,建筑面積141平方米,共設3室2廳1廚1衛1雨棚 。這套戶型帶悶頂儲藏間,儲藏不成問題。
平面布局圖 落地窗的3間臥室設計,大餐廳待客方便,家里宅地大的還可以蓋上廂房做客房,實用又漂亮。
第二套 這套戶型占地9.59x8.24米,占地面積96平方米,建筑面積79平方米,共設2室1廳1廚1衛,適合給爸媽的養老房。
平面布局圖 布局簡單實用,南北各1間臥室,廚房內有簡單的小餐桌,老兩口吃飯剛剛好。
第三套 這套戶型占地12.6x14.9米,占地面積195平方米,建筑面積160平方米,共設4室2廳1廚1衛2門斗1走廊,防寒門斗和火炕的設計更適合北方農村建造。
平面布局圖
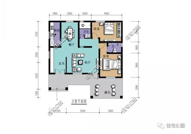
第四套 這套戶型占地12.5x11.8米,建筑面積113.1平方米,共設2室2廳2衛1廚1露臺,適合三口之間或者用作養老房,成本低,房間寬敞舒適。
平面布局圖 主臥帶獨立衛生間,客廳面積較大,有玄關隔離,生活空間功能豐富。
第五套 這套戶型占地13.1x12.5米,占地面積158平方米,建筑面積147平方米,共設4室2廳1廚2衛1檐廊,適合三代人居住。
平面布局圖 4間臥室的設計,主臥帶獨立衛生間,另外3間臥室共用1間衛生間。
第六套 這套戶型占地11.3x9.2米,建筑面積87.5平方米,共設3室2廳1衛1廚,適合3~5口人居住。房子外墻用實用經濟的灰白的鋪磚,搭配屋頂的朱紅琉璃瓦,顯得簡單美觀。
平面布局圖 有后門設計,3間臥室的設計;廚房、餐廳面積夠大,適合經常需要待客的農村家庭。
這6套單層自建房,哪套布局更適合你家?每平米造價也都不太高,農村自建700到900一平米起主體就夠,總價10~18萬就能蓋起毛坯房。 圖紙之家-專注農村別墅/自建房設計18年,集合國內200余位經驗豐富的設計師,被評為口碑最好的農村建筑設計公司! |

農村兩間兩層樓房設計圖,造價15萬左右,獨立的廚房設計,干凈
占地:95平方米
兩層半雙拼別墅設計方案,超大露臺+歐式風格,好設計別錯過!
占地:175.8平方米
預算10萬左右新農村自建房屋設計圖紙,帶效果圖
占地:82平方米
160平方米左右二層自建別墅設計圖,對稱設計,23萬建好
占地:157平方米左右
二層雙拼別墅外觀效果圖及施工圖,帶露臺,14乘12米
占地:168平方米
鄉村一層房屋設計圖,養老還是一層好,多臥室的設計
占地:195平方米
農村三層中式仿古別墅設計圖紙,中國風自建房戶型
占地:158.64平方米
新款農村四層復式別墅設計圖紙及效果圖,外立面清新別致
占地:207平方米
小戶型二層四合院別墅設計圖,含外觀效果圖,小宅基地選擇
占地:134平方米
一層帶閣樓農村別墅設計圖,多得一層可變空間,太值了!
占地:165.89平方米
面寬17米農村實用自建房一層別墅設計圖,簡約大氣經濟時尚
占地:192.94平方米
農村二層舒適好房,這款四開間別墅設計圖真的很不錯
占地:220.46平方米
二層農村小別墅自建房設計圖,布局實用,占地150平
占地:149.05平方米
歐式二層農村別墅設計圖,140平方米戶型方正的好方案
占地:142.51平方米
12×11米兩層農村建房圖紙,農村建房最佳戶型,簡單的風格
占地:140平方米
100平左右鄉下三層樓房設計圖,戶型方正,小面積宅基地的福音
占地:100平方米
8.5×12米四層歐式房屋設計圖紙,占地100平,落地窗中嵌入了雕花
占地:100平方米
陽臺封閉的簡約實用二層別墅設計圖,15x12.8米
占地:165平方米
新農村中式三層四合院別墅設計戶型圖,農村自建四合院效果圖
占地:多種戶型
帶車庫的別墅設計圖紙,外觀效果圖二層半設計,全套建筑施工圖
占地:174平方米左右
推薦:10套新農村自建房設計圖,2026年最新設計
閱讀次數:4825737次
100套鄉村別墅圖片大全,2026年最新設計
閱讀次數:2492203次
6款農村蓋一層平房的設計圖,10萬元就能建起來
閱讀次數:1852637次
這11個一層農村自建房別墅火爆了朋友圈!我最喜歡戶型十!你呢
閱讀次數:750268次
農村6萬元建一層小別墅圖,你敢相信嗎
閱讀次數:567686次
農村5萬塊就能自建房,6套普通房子設計圖分享,你沒看錯!
閱讀次數:419410次
8套農村漂亮三間平房圖片,非常適合在農村修建!
閱讀次數:411197次
農村自建房化糞池怎么做?附方案及施工過程
閱讀次數:391783次
農村一層三間平房設計圖,告別土氣養老房,讓人忍不住點贊
閱讀次數:350581次
新農村二層樓房圖片造價12萬,挑一套回家建房吧!
閱讀次數:349126次
