
|
現在在農村越來越多的倆兄弟都會選擇建雙拼別墅,因為雙拼別墅不僅外觀對稱,兩個兄弟住在一起還能互相關照,而且獨立的兩棟別墅不會出現矛盾,真是省錢又大氣。兄弟兩個一起建房子不僅節省時間,而且兄弟住得近還可以增進感情,如果家里有什么事情還可以互相照應。這樣也不用考慮父母住誰家的問題呢。今天小編就給大家推薦4套雙拼別墅,占地300多平米,造價預算60萬左右,真的超值! 第一款:農村雙拼別墅三層設計圖,美觀氣派,占地300平米左右
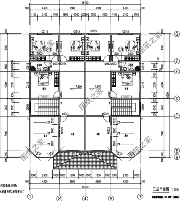
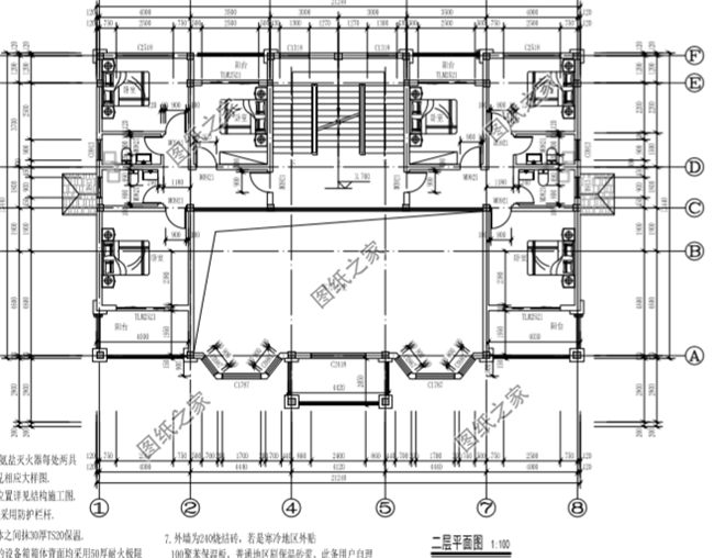
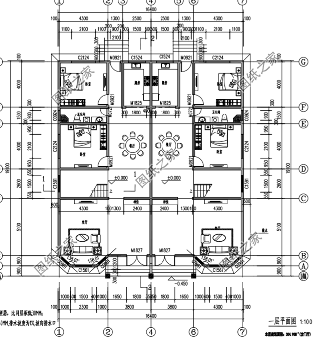
圖紙介紹:這款并存雙拼別墅,美觀氣派,室內布局合理實用,對稱設計,非常可以彰顯房屋的氣派;外觀看上去也非常美觀。
占地面積:16.4m*19.1m,300平方米左右,單戶150平左右; 建筑層高:三層; 建筑高度:13.1米(含屋頂); 設計功能: 一層:神位,客廳、餐廳、廚房、臥室×2、衛生間; 二層:客廳上空、起居室、臥室×3、衛生間; 三層:臥室×3、衛生間、書房; 第二款:獨棟三層雙拼別墅設計圖,占地面積300平米左右,主體造價60元
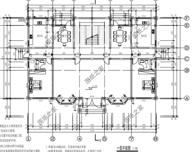
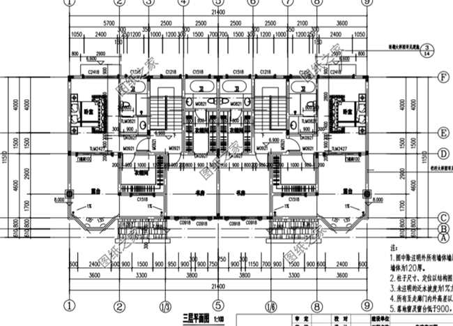
圖紙介紹:這款別墅總占地面積300平米左右,和其他別墅不同的是它的客廳也是分開設計的,客廳非常的寬敞,有很多空間可以用到別的地方。
占地面積:21.2m*13.4m,300平方米左右,單戶面積150平左右; 建筑層高:三層; 建筑高度:13.2米(含屋頂); 設計功能: 一 層:大客廳、廚房、餐廳、衛生間、主臥(帶衛生間); 二 層:客廳上空、主臥(帶陽臺)、臥室x2、衛生間×2; 三 層:客廳、主臥(帶陽臺)、臥室x2、衛生間×2、活動室、露臺; 第三款:農村雙拼豪華三層別墅設計圖,占地300平米左右
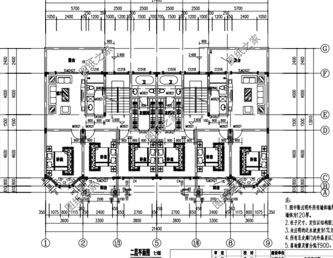
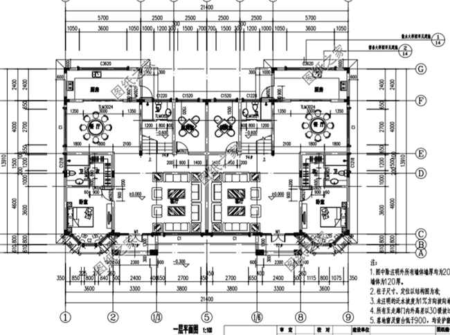
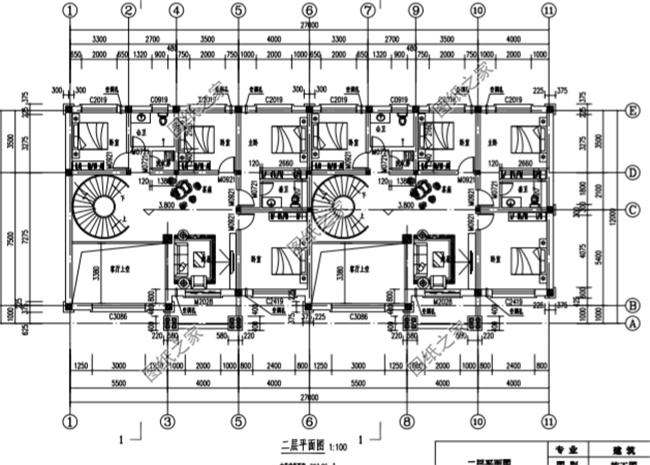
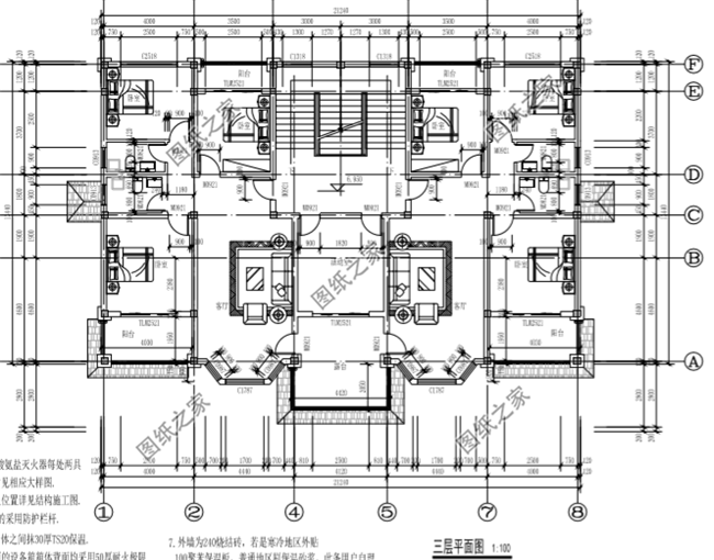
圖紙介紹:這款雙拼別墅戶型圖外觀大氣,占地面積也很大,戶型布局合理,這樣的一棟房子建在農村可謂是非常的有面子的。
占地面積:21.4m*13.9m,300平方米左右,單棟150平左右; 建筑層高:三層; 建筑高度:12.57米(含屋頂); 設計功能: 一 層:客廳、餐廳、廚房、主臥(帶衛生間和衣帽間)、棋牌室、衛生間; 二 層:客廳、主臥(帶衛生間和衣帽間)、臥室x2、衛生間、露臺; 三 層:臥室、書房、衣帽間(或儲藏間)、衛生間、大露臺; 第四款:農村雙拼別墅三層設計圖,帶地下儲藏室,造價預算60萬左右
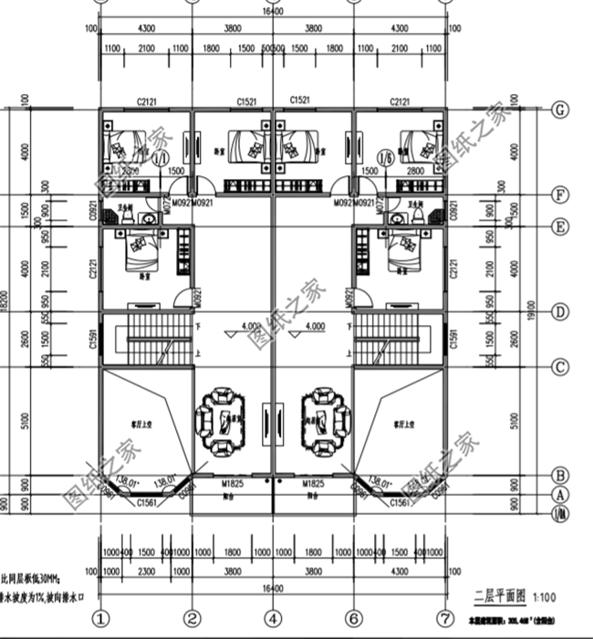
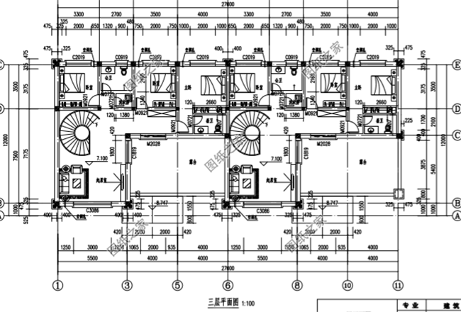
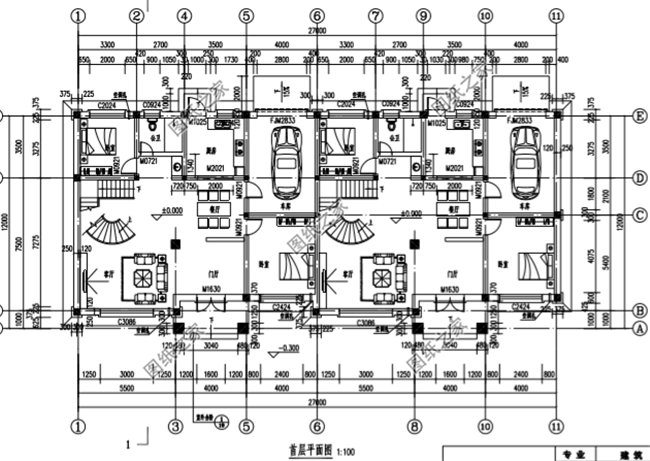
圖紙介紹:這款別墅圖紙不僅帶地下儲藏室,還有車庫和旋轉電梯的設計;別墅外觀整體以米黃色為主色,低調又時尚,有多個陽臺和露臺,視線寬廣;中間以墻為分界,兩邊各有一戶;室內布局也非常合理,有落地窗、露臺、茶座、洗衣房和臥室套房等,十分的奢華大氣。
占地面積:27m*12m,300平方米左右,單戶150平左右; 建筑層高:三層; 建筑高度:13.17米(含屋頂); 設計功能: 地下室:儲藏室; 一層:門廳、客廳、餐廳、廚房、臥室x2、衛生間、車庫; 二層:客廳上空、起居室、茶座、主臥(帶衛生間)、臥室x3、洗衣房、衛生間、陽臺; 三層:起居室、主臥(帶衛生間)、臥室x2、洗衣房、衛生間、露臺; 這樣的房子建在農村在別人看來親兄弟兩個關系特別好,父母臉上也有面子,抓緊收藏圖紙和你的兄弟蓋一棟這樣的雙拼別墅吧。
圖紙之家-專注農村別墅/自建房設計18年,集合國內200余位經驗豐富的設計師,被評為口碑最好的農村建筑設計公司! |

2026年新款一層住宅別墅設計圖紙,中式風格漂亮極了
占地:207平方米
90平小戶型四層房屋設計圖,農村自建別墅推薦
占地:90平方米
農村4間3層樓房設計圖,帶車庫,挑空客廳,坡屋頂設計
占地:160平方米
氣派的帶旋轉樓梯三層別墅房屋設計圖,戶型很好
占地:150平方米
農村二層別墅設計圖,帶外觀效果圖,兄弟自建推薦
占地:多種戶型
新中式三層豪華大氣三層別墅自建房屋設計圖,帶地下室,土豪專
占地:194平方米
帶大露臺二層現代風別墅設計圖,去繁從簡,好看不過時
占地:122.25平方米
農村三間三層半別墅設計圖,舒適寬敞時尚經濟,居住生活方便舒
占地:168.29平方米
2026最好看的農村三層樓房圖片及施工圖紙,客廳寬敞
占地:120平方米
115平漂亮的三層別墅設計方案,外觀圖片大氣、精致
占地:115平方米
農村養老房還是一層好,帶閣樓的一層房子設計圖
占地:135平方米
80平方米新農村二層房屋設計圖紙,造價15萬左右
占地:80平方米
四間兩層農村別墅戶型圖,外觀時尚色調搭配和諧,占地超200平米
占地:212.95平方米
漂亮實用三層新農村小別墅設計圖紙,占地150平米,帶露臺,從哪
占地:150平方米
鄉村典型自建房中式二層四合院別墅設計圖,左右對稱設計
占地:430平方米
獨棟小別墅設計圖,造價30萬左右的獨棟小別墅設計推薦
占地:150平方米
160平小開間大進深農村三層別墅設計圖紙
占地:158.73平方米
12X14米四層農村自建別墅設計圖,功能設計豐富齊全
占地:157平方米
新農村自建三層復式結構房屋別墅設計圖紙及效果圖
占地:138平方米
3款三層農村自建別墅設計圖,氣派十足,準備建房的快快查看
占地:多戶型可選
推薦:10套新農村自建房設計圖,2026年最新設計
閱讀次數:4825737次
100套鄉村別墅圖片大全,2026年最新設計
閱讀次數:2492203次
6款農村蓋一層平房的設計圖,10萬元就能建起來
閱讀次數:1852637次
這11個一層農村自建房別墅火爆了朋友圈!我最喜歡戶型十!你呢
閱讀次數:750268次
農村6萬元建一層小別墅圖,你敢相信嗎
閱讀次數:567686次
農村5萬塊就能自建房,6套普通房子設計圖分享,你沒看錯!
閱讀次數:419410次
8套農村漂亮三間平房圖片,非常適合在農村修建!
閱讀次數:411197次
農村自建房化糞池怎么做?附方案及施工過程
閱讀次數:391783次
農村一層三間平房設計圖,告別土氣養老房,讓人忍不住點贊
閱讀次數:350581次
新農村二層樓房圖片造價12萬,挑一套回家建房吧!
閱讀次數:349126次
