
|
父母養我們這么大,難道我們不應該為他們做點什么嗎?看著別人家的父母都住上的新房子,我們是不是也該為我們的父母建一所新的房子,讓他們安度晚年,他們為我們操勞了大半輩子,也是時候讓他們享受一下生活了吧。今天小編就給大家推薦三款簡單大方的120平米農村一層樓設計圖,非常適合老年人養老居住,趕緊收藏圖紙,為我們的父母蓋一所新房子吧。 第一款:農村自建房一層設計圖,占地120平米,主體造價10萬左右圖紙介紹:這是一款適合給爸媽養老的自建平房,占地120平米,10萬你快去就能蓋起來,成本低,最關鍵的是寬敞舒適,正是父母們最需要的。 占地面積:13.4m*9.3m,120平方米左右; 建筑層高:一層; 建筑高度:6.76米(含屋頂); 設計功能:客廳、茶室、臥室×4、衛生間
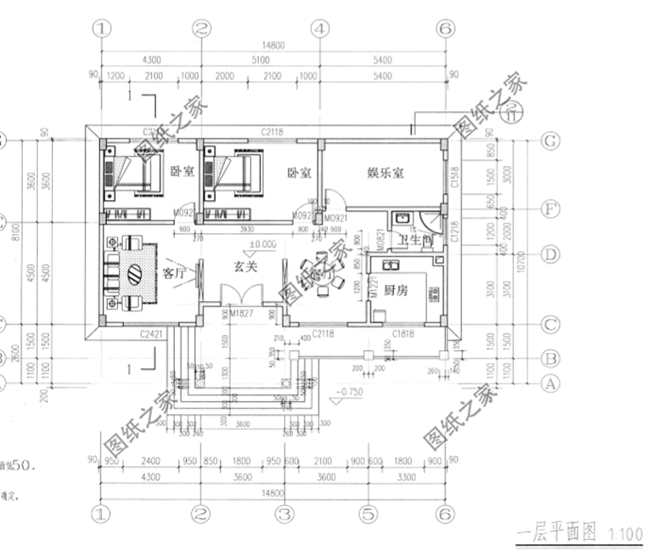
第二款:一層農村小別墅設計圖,含效果圖,主體造價10萬左右圖紙介紹:這款戶型圖整體占地120平米左右,造價10萬元,外觀是紅色墻磚和深藍色屋頂結合,非常的美觀漂亮,戶型很合理,滿足大部分客戶使用。 占地面積:14.8m*8.1m,120平方米左右; 建筑層高:一層; 建筑高度:6.9米(含屋頂); 設計功能: 一層:玄關、客廳、餐廳、廚房、臥室x2、娛樂室、衛生間;
第三款:農村一層房屋設計效果圖,主體造價15萬內圖紙介紹:這款戶型圖占地方正,保留了農村的質樸,但是又特別美觀,外觀艷麗,富有現代氣息,戶型設計合理,空間利用率高。 占地面積:12.00m*10.00m,120平方米左右; 建筑層高:一層; 建筑高度:5.50米(含屋頂); 設計功能:客廳、餐廳、廚房、書房、衛生間、臥室x2
想好給你父母建哪一款房子了嗎?下方留言告訴小編。
圖紙之家-專注農村別墅/自建房設計18年,集合國內200余位經驗豐富的設計師,被評為口碑最好的農村建筑設計公司! |

農村160平四間兩層樓房設計圖,全套施工圖+外觀效果圖片
占地:160平方米
新農村二層住宅設計圖紙,簡單別墅設計圖(含效果圖)
占地:77.6平方米
一層農村自建房別墅設計方案,左右對稱布局好
占地:154平方米
占地百平三層歐式別墅設計圖,回到家鄉建一棟,大氣美觀有內涵
占地:99.94平方米
90平方米農村二層房屋設計施工圖紙及效果圖,11x8.5米
占地:90平方米
2026新款二層別墅房屋設計圖,帶外觀圖片
占地:138平方米
歐式風格高檔三層別墅設計圖紙,帶高清外觀效果圖
占地:105平方米
帶地下室設計三層自建房別墅設計圖,復式挑空客廳
占地:192平方米
全套三層農村房屋設計圖紙,客廳中空,大大的窗戶,采光極好,
占地:160平米
農村房子設計圖三層獨棟別墅方案,占地130平方米
占地:130平方米
農村帶車庫兩層歐式農村別墅設計圖紙,占地220平方米左右
占地:221平方米
200平方農村三層別墅房屋設計圖及效果圖,大戶型精選
占地:200平方米
預算20萬的農村三層房屋設計圖方案,帶外觀效果圖
占地:115平方米
新中式農村三層四合院別墅設計圖,四合院風格的別墅圖
占地:177平方米
農村120平方房子設計圖,三層房屋設計圖精選
占地:120平方米
160平方米二層自建別墅設計施工建筑圖紙及效果圖,15x11米
占地:163平方米
150平方米農村二層房屋建筑設計圖,15.2x9.4米
占地:148平方米
經典美式風100平米二層小別墅設計方案,鄉村建房首選
占地:100.17平方米
簡單大氣的農村二層樓設計圖,二層歐式農村別墅設計圖
占地:180平方米
豪華大氣三層農村自建房設計圖,經典大氣,百看不厭,新中式風
占地:141.75平方米
推薦:10套新農村自建房設計圖,2026年最新設計
閱讀次數:4825737次
100套鄉村別墅圖片大全,2026年最新設計
閱讀次數:2492203次
6款農村蓋一層平房的設計圖,10萬元就能建起來
閱讀次數:1852637次
這11個一層農村自建房別墅火爆了朋友圈!我最喜歡戶型十!你呢
閱讀次數:750268次
農村6萬元建一層小別墅圖,你敢相信嗎
閱讀次數:567686次
農村5萬塊就能自建房,6套普通房子設計圖分享,你沒看錯!
閱讀次數:419410次
8套農村漂亮三間平房圖片,非常適合在農村修建!
閱讀次數:411197次
農村自建房化糞池怎么做?附方案及施工過程
閱讀次數:391783次
農村一層三間平房設計圖,告別土氣養老房,讓人忍不住點贊
閱讀次數:350581次
新農村二層樓房圖片造價12萬,挑一套回家建房吧!
閱讀次數:349126次
