
|
如今,別墅已經在村里邊越來越多了,一層依然是農村朋友們最愛的戶型。大部分人建房主要是給父母住,自己逢年過節才回去幾天,況且父母年紀大了,腿腳不便,所以蓋多了真的沒必要,浪費資金也浪費空間。一層就是最好的選擇了,夠住而且價格也不高。接下來就跟小編一起來看看這次推薦的戶型吧,趕緊為父母建起來。 農村別墅圖紙一:北方農村平房建筑設計圖及效果圖,平房戶型圖推薦
圖紙介紹:本戶型為農村平房建筑設計圖,帶外觀效果圖,占地140平方左右,農村建房,不僅要美觀,還要實惠,這套圖紙為磚混結構,造價低,戶型合理,客廳、2個臥室向陽,采光很好。 占地面積:12.70m*10.80m,140平方米左右; 建筑層高:一層; 建筑高度:4.80米(含屋頂); 設計功能: 一層戶型設計:過道、客廳、餐廳、廚房、衛生間、臥室x3(其中一個臥室可以當廚房)、儲藏間
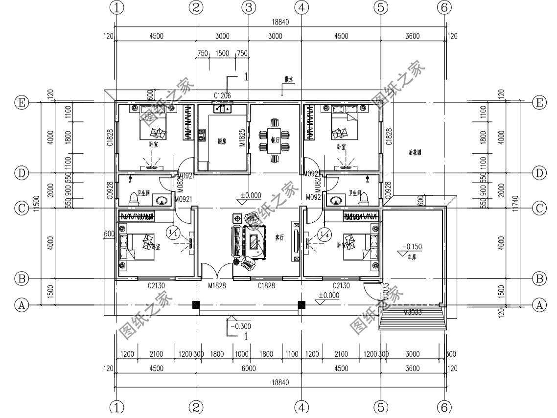
農村別墅圖紙二:后面帶小院的農村房屋設計圖,適合鄉村自建
圖紙介紹:本戶型為農村類似三合院的建筑設計圖,帶外觀效果圖,帶后院,房子左邊,右邊帶花園,后院,左右兩邊的花園中還可植樹栽花、飼鳥養魚、疊石迭景,居住者盡享大自然的美好。 占地面積:18.14m*16.34m,300平方米左右; 建筑層高:一層; 建筑高度:5.40米(含屋頂); 設計功能: 一層戶型設計:客廳、餐廳、廚房、臥室(帶衛生間)、書房、衛生間、臥室x2、后院、左花園、右花園
農村別墅圖紙三:120平一層簡單農村別墅設計圖,造價8萬左右
圖紙介紹:本戶型為120平一層簡單農村別墅設計圖,造價8萬到12萬,經濟、實用,建造比較容易,外觀雖然簡單,但比較漂亮,戶型2廳1廚1衛2室,滿足一般家庭居住。 占地面積:11.4m*10.8m,120平方米左右; 建筑層高:一層; 建筑高度:5.5米(含屋頂); 設計功能: 一層設計:客廳、餐廳、廚房、衛生間、臥室x2;
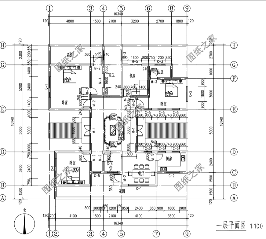
農村別墅圖紙四:大面積農村一層房子設計圖,戶型實用、合理
圖紙介紹:本戶型為大面積農村一層房子設計圖,藍色的屋頂,淺黃色外墻,整體外形美觀,協調,符合農村審美,戶型以實用為主,布局合理。 占地面積:17.4m*11.1m,190平方米左右; 建筑層高:一層; 建筑高度:6.87米(含屋頂); 設計功能: 一層設計:客廳、餐廳、廚房、衛生間、主臥(帶衛生間)、臥室x3、車庫;(車庫不需要,可以建成臥室)
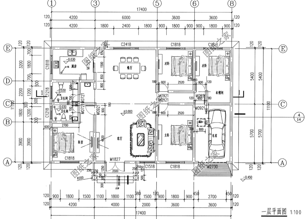
農村別墅圖紙五:農村自建一層別墅設計圖,美觀大方,帶車庫
圖紙介紹:農村自建一層別墅設計圖,美觀大方,建出來比樓房還要漂亮。建這個別墅樣式的一層小平房,配上庭院,妥妥的花園洋房,既美觀又實用,而且很溫馨,正好適合。 占地面積:18.8m*11.7m,187平方米左右; 建筑層高:一層; 建筑高度:7.2米(含屋頂); 設計功能:客廳、餐廳、廚房、、臥室×4、衛生間×2、車庫;
以上就是一層平房設計圖農村自建房戶型圖,喜歡哪款,歡迎下方留言。
圖紙之家-專注農村別墅/自建房設計18年,集合國內200余位經驗豐富的設計師,被評為口碑最好的農村建筑設計公司! |

新農村自建三層復式結構房屋別墅設計圖紙及效果圖
占地:138平方米
2026二層農村新款別墅新式二層樓房設計圖,非常時尚
占地:多種戶型
鄉村別墅現代風平屋頂四層自建房設計圖,簡約時尚
占地:144.7平方米
120平方米農村四層別墅設計圖,含全套施工圖
占地:120平方米
農村帶車庫兩層歐式農村別墅設計圖紙,占地220平方米左右
占地:221平方米
90平-100平小戶型一層三間平房農村別墅設計圖方案戶型
占地:多戶型可選
帶屋頂平臺的一層農村小別墅圖,有閣樓有露臺
占地:152平方米
農村兩層新中式仿古四合院別墅戶型圖,小型占地不到200平
占地:193平方米
歐式風格三層別墅建筑設計圖,復式樓中樓結構
占地:138平方米
160平方米農村二層四合院別墅設計圖及外觀圖片
占地:158平方米
面寬8米多的三層農村別墅設計圖,小開間宅基地推薦
占地:112.82平方米
100平米兩間三層樓房設計圖,農村蓋房舒服實用最重要
占地:100平方米
帶車庫徽派風格三層別墅房屋設計圖,新農村住宅設計推薦
占地:140平方米
美式風格鄉村兩層小別墅自建房設計圖,外觀圖好看
占地:150平方米
新農村中式一層三合院效果圖及全套設計圖,喜歡合院的有福了
占地:118平方米
面寬18米二層農村大別墅設計圖,可帶電梯,舒適又實用
占地:138.29平方米
帶地下室KTV三層農村自建別墅設計圖,12米乘12.5米
占地:131.7平方米
農村自建房別再做傳統客廳!“客廳+茶室”一體設計,寬敞明亮
占地:143.73平方米
小戶型三層別墅房屋設計圖紙,占地80多平米,麻雀雖小五臟俱全
占地:80平方米
農村仿古四合院設計圖自建房,外觀中式古樸典雅
占地:378平方米
推薦:10套新農村自建房設計圖,2026年最新設計
閱讀次數:4825737次
100套鄉村別墅圖片大全,2026年最新設計
閱讀次數:2492203次
6款農村蓋一層平房的設計圖,10萬元就能建起來
閱讀次數:1852637次
這11個一層農村自建房別墅火爆了朋友圈!我最喜歡戶型十!你呢
閱讀次數:750268次
農村6萬元建一層小別墅圖,你敢相信嗎
閱讀次數:567686次
農村5萬塊就能自建房,6套普通房子設計圖分享,你沒看錯!
閱讀次數:419410次
8套農村漂亮三間平房圖片,非常適合在農村修建!
閱讀次數:411197次
農村自建房化糞池怎么做?附方案及施工過程
閱讀次數:391783次
農村一層三間平房設計圖,告別土氣養老房,讓人忍不住點贊
閱讀次數:350581次
新農村二層樓房圖片造價12萬,挑一套回家建房吧!
閱讀次數:349126次
