
|
農村自建房講究的是經濟實用,不僅外表光鮮亮麗,住起來也要舒適。一般來說,二層樓房最適合農村居住,經濟實用。比平房寬敞空間大,也不會像三層那樣浪費空間,所以很多人建房的時候選擇建二層小樓房,一家人住在一起,再幸福不過的事情了。 今天分享四套農村最實用的二層房設計圖,大方實用,農村人的不二之選。
戶型一:新農村現代二層別墅設計圖,占地110平方米
![]() ![]() ![]() ![]() 圖紙介紹:這款別墅占地面積110平米,戶型方正不大不小,別墅的外觀主要用米黃色和乳白色面磚裝飾,讓人一眼就能感受到別墅的豪華程度,二層陽臺處設計有葫蘆蹲,起到了很好的防護作用,同時也美觀,紅色屋檐搭配十分喜慶。 占地面積:11.3m*10m,110平方米左右; 建筑層高:二層; 建筑高度:9.9米(含屋頂); 設計功能: 一層戶型:客廳、餐廳 、廚房、臥室、儲藏室、衛生間; 二層戶型:家庭室、臥室x4、書房、衛生間、陽臺;
戶型二:農村二層房屋設計圖,占地170平方米
![]() ![]() ![]() ![]() 圖紙介紹:本戶型外觀時尚好看,采光非常充足,是一款非常值得借鑒的戶型。室內功能布局合理,空間利用率高,能滿足農村生活的基本需求。一層的棋牌室,休閑時刻可以約上好友,打打牌聊聊天;二層的大露臺,在農村可以用來晾曬農作物,也可以布置成露臺花園,休閑場所,絕對是享受,非常適應現代生活節奏。 占地面積:15.1m*11.4m,172平方米; 建筑層高:二層; 建筑高度:10.6米(含屋頂); 設計功能: 一層戶型: 臥室,臥室(帶衛生間),棋牌室,儲藏間,土灶房,廚房,餐廳,客廳; 二層戶型: 臥室X3,衛生間,休閑區,客廳上空,陽臺,露臺;
戶型三:農村二層別墅樓房設計圖,占地不到100平米,主體造價僅15萬
![]() ![]() ![]() ![]() 圖紙介紹:本戶型雖然小但是很精致又很溫馨,造價經濟,施工難度不大,紅色的屋頂,非常的漂亮。外觀很精致,簡單的外觀多了些時尚元素。入戶門廳很大,所以雖然戶型比較小,但是卻也很大氣。 占地面積:10.50m*8.90m,98平方米左右; 建筑層高:二層; 建筑高度:9.29米(含屋頂); 設計功能: 一層戶型:客廳、神位、餐廳、廚房 、臥室、衛生間; 二層戶型:娛樂區、書房、臥室x3、衛生間、陽臺;
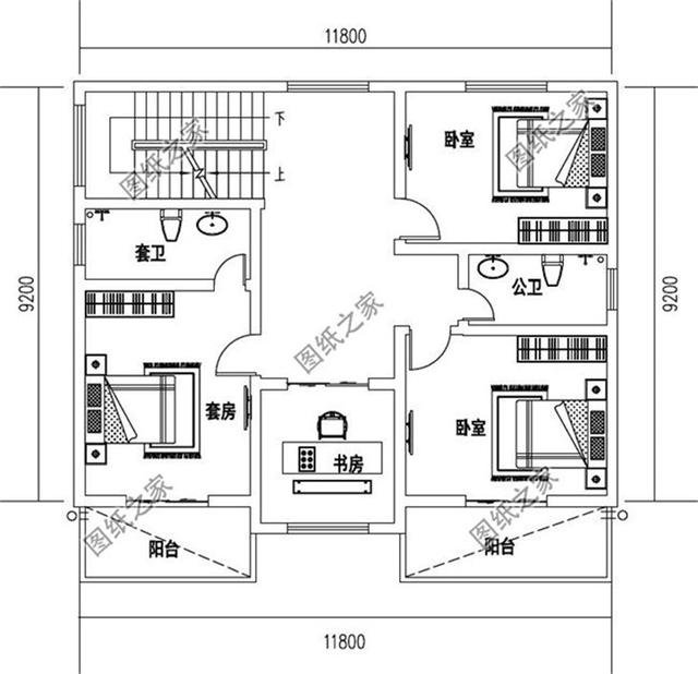
戶型四:新農村二層別墅設計圖,帶閣樓,占地115平方米
![]() ![]() ![]() ![]() 圖紙介紹:本戶型占地115平方米,外觀簡約,顏色搭配的非常的經典,大氣又低調,這款樸素實用型,沒有過多的裝飾,大方,戶型規整,建造方便。室內布局合理舒適,功能齊全,房屋的利用率高,沒有浪費的空間 占地面積:11.8m*9.2m,115平方米左右; 建筑層高:二層; 建筑高度:8.7米(含屋頂); 設計功能: 一層戶型:客廳、廚房、餐廳、臥室(帶衛生間)、衛生間; 二層戶型:書房、臥室(帶衛生間)、臥室x2、衛生間、陽臺; 四套兩層戶型推薦,第幾套你最喜歡?下方留言
圖紙之家-專注農村別墅/自建房設計18年,集合國內200余位經驗豐富的設計師,被評為口碑最好的農村建筑設計公司! |

復式樓房二層農村別墅圖,村里建一棟絕對人人都羨慕
占地:130.2平方米
三十萬農村別墅設計圖帶外觀圖片,30萬造價別墅展示
占地:125平方米
110平農村二層房屋設計圖,新農村自建房戶型推薦
占地:110平方米
簡歐復式四層別墅房屋設計圖,外觀圖高端、大氣
占地:143平方米
一層帶商鋪的四層樓房別墅設計圖紙和效果圖,房屋戶型圖
占地:133平方米
大氣農村一層自建別墅方案,絕對讓人羨慕的“平房”
占地:158.39平方米
實用三層新農村住宅設計圖,鄉村別墅設計圖(含外觀效果圖)
占地:102.34平方米
鄉下復式三層房子設計圖,帶堂屋,客廳中空,輕奢風格
占地:190平方米
農村二層半雙拼別墅設計圖,客廳中空,帶大露臺
占地:270平方米
16x14米三層雙拼別墅設計圖,外觀精致大氣內里實用,兄弟建房上
占地:217.28平方米
二層簡歐風格自建房別墅戶型設計圖,造價26萬
占地:132.4平方米
兩戶190平方米新農村雙拼別墅全套設計方案及效果圖
占地:191平方米
面寬14米農村別墅二層別墅戶型設計,經濟實用
占地:107.1平方米
帶架空層一層農村別墅設計圖,回鄉建房優選,家有豪宅幸福來敲
占地:124.76平方米
經典三層雙拼房屋設計圖,帶效果圖,戶型好,單戶面積120
占地:240平方米
現代風格二層別墅設計圖,外觀時尚、大氣
占地:153平方米
12×12米農村二層經濟型自建房設計圖,設計了6間臥室
占地:140平方米
農村二層中式戶型設計圖,造型古香古色,建好絕對是地標
占地:245.39平方米
2026年新款別墅外觀圖及全套施工圖紙,占地面積13×10米
占地:130平方米
180平方米農村二層別墅四合院建筑設計圖紙
占地:181平方米
推薦:10套新農村自建房設計圖,2026年最新設計
閱讀次數:4825737次
100套鄉村別墅圖片大全,2026年最新設計
閱讀次數:2492203次
6款農村蓋一層平房的設計圖,10萬元就能建起來
閱讀次數:1852637次
這11個一層農村自建房別墅火爆了朋友圈!我最喜歡戶型十!你呢
閱讀次數:750268次
農村6萬元建一層小別墅圖,你敢相信嗎
閱讀次數:567686次
農村5萬塊就能自建房,6套普通房子設計圖分享,你沒看錯!
閱讀次數:419410次
8套農村漂亮三間平房圖片,非常適合在農村修建!
閱讀次數:411197次
農村自建房化糞池怎么做?附方案及施工過程
閱讀次數:391783次
農村一層三間平房設計圖,告別土氣養老房,讓人忍不住點贊
閱讀次數:350581次
新農村二層樓房圖片造價12萬,挑一套回家建房吧!
閱讀次數:349126次
