
|
愛生活的人對居住的要求肯定也很高,有的人喜歡城市的方便,有的人卻喜歡鄉下自在的生活,因為是自己建的房子,所以比較自由,完全可以根據自己的喜好來設計,想建什么樣的戶型就可以建什么樣的戶型,住在這樣的房子肯定也是非常舒適的。今天小編就給大家分享幾款占地12米×10米農村自建房三層平面圖,這樣的房子簡直太棒了,分分鐘把鄰居家的房子比下去。
方案一:農村二層小樓房設計圖,占地120平方米,主體造價20萬
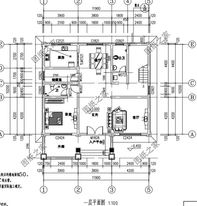
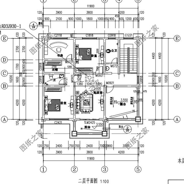
圖紙介紹:本別墅戶型主體造價20萬元,戶型非常合理,二層主人套房是個亮點,滿足品質生活需求,外觀漂亮、美觀。 占地面積:11.9m*10.2m,120平方米左右; 建筑層高:二層; 建筑高度:8.47米(含屋頂); 設計功能: 一層戶型:玄關、客廳、餐廳、廚房、儲藏間、主臥(含衛生間)、衛生間; 二層戶型:客廳、主人套間(含衛生間、衣帽間、書房)、臥室、衛生間、露臺; ![]() ![]() ![]() 方案二:農村二層小別墅設計圖,外觀簡潔,戶型合理帶露臺
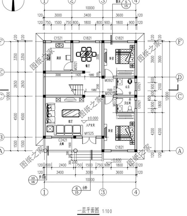
圖紙介紹:本戶型外觀造型簡潔,造價較低,戶型布局工整緊湊,內部結構設計合理,五個臥室滿足一般家庭居住。 占地面積:12.0m*10.0m,120平方米左右; 建筑層高:二層; 建筑高度:9.50米(含屋頂); 設計功能: 一層別墅戶型:堂房、客廳、臥室x2、廚房、餐廳、衛生間 二層別墅戶型:小客廳、臥室x3、儲藏間(更衣室)、衛生間、露臺 ![]() ![]() ![]() 方案三:新農村二層房屋設計施工圖,占地120平方米左右
圖紙介紹:本戶型上下文化石顏色分層配合灰藍琉璃瓦斜面頂,結構層次分明;別墅多開窗,在保障采光與通風的情況下擴大了視野,使別墅整體更加具有實用性。 占地面積:12.4m*9.9m,125平方米左右; 建筑層高:二層; 建筑高度:9.45米(含屋頂); 設計功能: 一層戶型:客廳、廚房、餐廳、臥室(帶衛生間)、臥室、衛生間; 二層戶型:客廳、棋牌室、臥室(帶衛生間)、臥室、書房、陽臺; ![]() ![]() ![]() ![]()
怎么樣,大家喜歡這幾樣圖紙嘛?喜歡留言,下次繼續分享更多其他戶型圖紙。
圖紙之家-專注農村別墅/自建房設計18年,集合國內200余位經驗豐富的設計師,被評為口碑最好的農村建筑設計公司! |

新農村二層自建房設計圖帶外觀圖片,自建戶型大全
占地:160平方米
三層兄弟雙拼別墅設計圖,外觀大氣漂亮,顏色搭配協調,一層為
占地:270平方米
12X14米四層農村自建別墅設計圖,功能設計豐富齊全
占地:157平方米
200平方農村三層別墅房屋設計圖及效果圖,大戶型精選
占地:200平方米
新農村兩層帶露臺自建房設計圖,造價30萬內
占地:170平方米
農村二層帶車庫四合院別墅設計圖,新中式外觀圖片,戶型實用方
占地:247平方米
130平方米新農村自建三層別墅設計施工圖,13x11米
占地:130平方米
新農村一層平屋頂簡單自建房別墅設計圖紙,全套設計
占地:130平方米
135平復式別墅房屋設計圖,外觀時尚、漂亮
占地:135平方米
性價比超高一層農村自建別墅設計圖,戶型耐看不用爬樓
占地:158.6平方米
豪華三層別墅設計圖紙,全套施工方案帶效果圖
占地:130平方米
最新12x9米一層平房別墅設計圖,好看不貴居住舒適!
占地:108平方米
高端大氣三層歐式別墅設計圖,高檔新款外型圖片美觀時尚
占地:168平方米
農村兩層新中式別墅圖紙設計圖,外觀圖片大氣,21萬左右
占地:108平方米
簡單的復式住宅設計圖,客廳挑高,帶外觀效果圖片
占地:148平方米
帶院子的四間二層別墅房屋設計圖,帶獨立車庫
占地:350平方米
140平米平屋頂二層新農村自建房設計圖,極簡主義設計 ,實用優
占地:143平方米
2026年最新款四間二層別墅設計圖,15米乘13米
占地:171.01平方米
回村蓋一層養老房別墅設計圖紙,面寬16米四開間戶型圖
占地:127平方米左右
農村18萬元二層小樓圖,占地120平面,戶型緊湊合理
占地:120平方米
推薦:10套新農村自建房設計圖,2026年最新設計
閱讀次數:4825737次
100套鄉村別墅圖片大全,2026年最新設計
閱讀次數:2492203次
6款農村蓋一層平房的設計圖,10萬元就能建起來
閱讀次數:1852637次
這11個一層農村自建房別墅火爆了朋友圈!我最喜歡戶型十!你呢
閱讀次數:750268次
農村6萬元建一層小別墅圖,你敢相信嗎
閱讀次數:567686次
農村5萬塊就能自建房,6套普通房子設計圖分享,你沒看錯!
閱讀次數:419410次
8套農村漂亮三間平房圖片,非常適合在農村修建!
閱讀次數:411197次
農村自建房化糞池怎么做?附方案及施工過程
閱讀次數:391783次
農村一層三間平房設計圖,告別土氣養老房,讓人忍不住點贊
閱讀次數:350581次
新農村二層樓房圖片造價12萬,挑一套回家建房吧!
閱讀次數:349126次
