
|
對于一個農村家庭來說,建房子是一件大事,大家辛辛苦苦掙錢都不容易,每個人都希望自己家的房子漂亮又實用。但是現在大多數地區宅基地都有限制,審批下來大多數都是在120平米左右,相對來說這種面積戶型還是很多的。所以今天小編就給大家推薦三款占地120平米三層農村自建房設計圖,希望大家能夠喜歡。
方案一:新農村房屋三層設計圖,占地120平方米,主體造價30萬
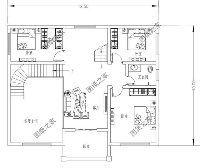
圖紙介紹:這款別墅典型的中式風格,外觀采用灰白石材搭配藍色的屋頂,再加上一些棕色線條加以裝飾;落地式的門窗增加了別墅的采光和通透,頂層利用露臺和陽臺來塑造外觀的層次感。 占地面積:10.16m*11.3m,120平方米左右; 建筑層高:三層; 建筑高度:12.37米(含屋頂); 設計功能: 一層戶型:客廳、廚房、餐廳、臥室(帶衛生間)、衛生間; 二層戶型:客廳上空、起居室、臥室(帶衛生間)、臥室x2、衛生間、陽臺; 三層戶型:臥室x2、臥室(帶衛生間)、衛生間、陽臺、露臺; ![]() ![]() ![]() ![]() 方案二:占地120平米的三層復式別墅設計圖,帶地下室設計
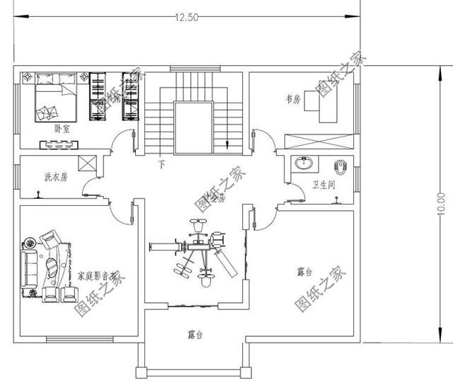
圖紙介紹:本戶型設計有旋轉樓梯,現代風格,外觀簡潔大氣;一層的客廳上方做了挑空設計,加大了整體的視覺效果,保證屋內陽光充足與通風穩定;超大陽光大露臺保障了室內的通風與采光。 占地面積:12.26m*10.96m,120.78平方米左右; 建筑層高:三層; 建筑高度:13.029米(含屋頂); 設計功能: 地下室戶型圖:儲藏室x2、娛樂室、家庭影音、健身房; 一層戶型:玄關、客廳、餐廳、廚房、衛生間、臥室; 二層戶型:客廳挑空、客廳、臥室(帶衣帽間)、臥室x2、衛生間、陽臺; 三層戶型:健身房、書房、家庭影音、洗衣房、臥室(帶衣帽間)、書房、衛生間、露臺x2; ![]() ![]() ![]() ![]() ![]() 方案三:農村占地10米×12米三層歐式別墅設計圖,造價經濟實惠
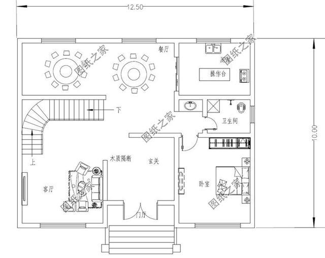
圖紙介紹:這款別墅真的是華麗麗的豪宅既視感,占地120平米左右,客廳中空,門頭是 占地面積:10.0m*12.0m,一層占地123平方米左右; 建筑層高:三層; 建筑高度:13.00米(含屋頂); 設計功能: 一 層:客廳、廚房、餐廳、臥室(帶衛生間)、棋牌室、衛生間; 二 層:客廳上空、起居室、臥室(帶衣帽間,衛生間)、臥室x2、衛生間、陽臺; 三 層:佛堂、健身區、臥室(帶衣帽間,衛生間)、臥室、書房; ![]() ![]() ![]() ![]() 我敢肯定絕大多數人光看外觀就愛上了,更何況室內豐富的功能布局呢?
圖紙之家-專注農村別墅/自建房設計18年,集合國內200余位經驗豐富的設計師,被評為口碑最好的農村建筑設計公司! |

農村二層半新中式小別墅設計圖(帶閣樓層),二層半自建房戶型
占地:144平方米
帶車庫簡約二層小別墅房屋設計圖紙,占地120平米,彎彎的樓梯打
占地:120平方米
新農村三層房屋住宅設計圖紙大全(含效果圖)
占地:122平方米
2026年新款別墅外觀圖及全套施工圖紙,占地面積13×10米
占地:130平方米
村里三層新中式風自建別墅圖,對稱設計,氣派好看
占地:135.3平方米
農村三層樓房設計圖及圖片,客廳挑空,優化室內采光
占地:140平方米
110平方米新農村三層房屋設計圖紙,含效果圖,帶車庫
占地:113平方米
新農村二層帶庭院的小別墅設計圖及效果圖
占地:137平方米
對稱設計二層歐式別墅設計圖,優雅時尚有品位
占地:151.85平方米
大戶型三層別墅設計圖,高貴大氣,占地面積將近300平
占地:273.33平方米
13X13米新農村中式風三層別墅設計方案,內部布局緊湊溫馨
占地:168.43平方米
帶電梯的農村歐式雙拼三層豪宅別墅設計圖,樓梯電梯共用
占地:268.448平方米
大氣自建三層雙拼別墅戶型圖方案,完美的戶型就是它
占地:287平方米
徽派自建房一層設計圖,七字型設計,獨立餐廚便捷實用
占地:171.65平方米
農村兩層新中式別墅圖紙設計圖,外觀圖片大氣,21萬左右
占地:108平方米
300平方二層別墅四合院設計圖紙方案(效果圖+施工圖)
占地:332平方米
300平四層別墅房屋設計圖,含外觀效果圖,大面積、多臥室
占地:261平方米
大氣豪華四層別墅設計圖紙,占地180平米左右
占地:180平方米
170平方米新農村實用的三層雙拼設計圖紙,帶公用堂屋!
占地:173.62平方米
新農村中式三層四合院別墅設計戶型圖,農村自建四合院效果圖
占地:多種戶型
推薦:10套新農村自建房設計圖,2026年最新設計
閱讀次數:4825737次
100套鄉村別墅圖片大全,2026年最新設計
閱讀次數:2492203次
6款農村蓋一層平房的設計圖,10萬元就能建起來
閱讀次數:1852637次
這11個一層農村自建房別墅火爆了朋友圈!我最喜歡戶型十!你呢
閱讀次數:750268次
農村6萬元建一層小別墅圖,你敢相信嗎
閱讀次數:567686次
農村5萬塊就能自建房,6套普通房子設計圖分享,你沒看錯!
閱讀次數:419410次
8套農村漂亮三間平房圖片,非常適合在農村修建!
閱讀次數:411197次
農村自建房化糞池怎么做?附方案及施工過程
閱讀次數:391783次
農村一層三間平房設計圖,告別土氣養老房,讓人忍不住點贊
閱讀次數:350581次
新農村二層樓房圖片造價12萬,挑一套回家建房吧!
閱讀次數:349126次
