
|
現在回農村建房子地越來越多,蓋房子已經成了農村的一個熱潮。但是很多人建房開始一味的追求華麗,慢慢忘了房子是用來居住的,外觀怎么樣沒有那么重要,住著合適舒服才是最重要的。今天小編就給大家推薦三款農村4間2層別墅設計圖,二層樓房應該是最適應大眾需求的了吧,一般家庭應該建二層就夠了,所以一起來看看吧。
方案一:農村二層自建樓房設計圖,占地170平方米,外觀時尚好看
圖紙介紹:本戶型外觀時尚好看,采光非常充足,是一款非常值得借鑒的戶型;室內各方面功能區布局合理,空間利用率高;一層有棋牌室,休閑時刻可以約上好友打打牌;二層的大露臺,在農村可以用來晾曬農作物。 占地面積:15.1m*11.4m,172平方米; 建筑層高:二層; 建筑高度:10.6米(含屋頂); 設計功能: 一層戶型: 臥室,臥室(帶衛生間),棋牌室,儲藏間,土灶房,廚房,餐廳,客廳; 二層戶型: 臥室X3,衛生間,休閑區,客廳上空,陽臺,露臺; ![]() ![]() ![]() ![]() ![]() 方案二:農村四間二層別墅設計圖,帶露臺設計
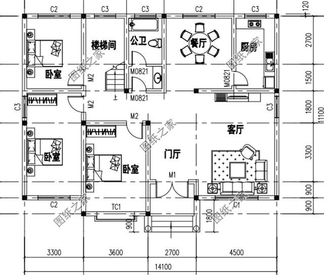
圖紙介紹:這款四間二層別墅設計圖,外觀經典時尚,室內房間多,功能齊全,適合多人居住。 占地面積:14.1m*11.1m,150平方米左右; 建筑層高:二層; 建筑高度:10.33米(含屋頂); 設計功能: 一 層:門廳、客廳、臥室、廚房、餐廳、衛生間、臥室x3 二 層:客廳、主臥(衣帽間、衛生間)、臥室x2、活動房、書房、衛生間、露臺 ![]() ![]() ![]() ![]() ![]() 方案三:簡單現代平屋頂四間二層樓房戶型圖,簡單實用
圖紙介紹:這款平屋頂別墅設計戶型圖,簡單又實用,洋氣得不行;一層客廳與餐廳相連 面積非常的大,整體功能分區較為明確,公共區域較大,貼合農村生活;二層作為起居空間有極好采光面;采用平屋頂設計,為了騰出空間做屋頂的大露臺,可以做屋頂花園,還能觀賞美景,晾曬東西,實用性比較高。 占地面積:15.76m*13.26m,192平方米左右; 建筑層高:二層; 建筑高度:11.125米(含屋頂); 設計功能: 一層戶型:客廳、活動室、廚房、餐廳、臥室(帶衛生間)、臥室x2、衛生間; 二層戶型:起居室、書房、臥室(帶衣帽間、衛生間)、臥室x3、衛生間、陽臺x2; ![]() ![]() ![]() 這幾款房子可以完全滿足一般家庭人口居住生活,不知道大家喜歡哪一款呢?
圖紙之家-專注農村別墅/自建房設計18年,集合國內200余位經驗豐富的設計師,被評為口碑最好的農村建筑設計公司! |

中式徽派二層農村別墅設計圖,白墻黛瓦馬頭墻,永不過時
占地:171平方米
二層復式樓房設計圖,平實接地氣的平面布局
占地:180平方米
35萬左右的農村小別墅設計圖及效果圖,新中式風格
占地:137平方米
時尚典雅歐式三層自建房設計圖,美觀大氣簡單舒適,好看到沒得
占地:153.12平方米
30萬左右的新農村自建三層別墅施工設計圖紙及效果圖
占地:148平方米
歐式新農村自建三層建筑施工設計圖紙及效果圖大全
占地:106平方米
105平方米新農村三層別墅設計圖,全套CAD建筑圖+效果圖
占地:105平方米
現代一層(帶悶頂)別墅住宅設計圖,外觀現代時尚
占地:160平方米
170平方米新農村現代樓中樓三層別墅設計施工圖紙及效果圖
占地:170平方米
120平方米現代新農村二層自建房設計圖,造型時尚好看
占地:120平方米
農村自建房設計圖,三層房屋設計圖及效果圖
占地:120平方米
30萬以下的經典二層新農村別墅設計圖紙及效果圖,簡單大氣
占地:170平方米
130平左右三層樓房設計圖,新農村住宅自建推薦
占地:128平方米
新農村自建三層復式結構房屋別墅設計圖紙及效果圖
占地:138平方米
三層平頂現代風格,農村自建房設計圖,可帶電梯,百看不厭
占地:259.55平方米
被包工頭夸爆的二層別墅戶型!建好未來幾年必火
占地:189.98平方米
網紅中式一層三合院別墅設計圖,白墻黛瓦古典大氣,讓人心曠神
占地:248.82平方米
新中式二層農村別墅設計圖紙及外觀圖,面寬15米左右
占地:148.86平方米
高端三層別墅設計圖紙,客廳中空,帶地下室,設置多個套間
占地:220平方米
120平方米帶地下室三層復式別墅戶型圖,現代風格
占地:120.78平方米左
推薦:10套新農村自建房設計圖,2026年最新設計
閱讀次數:4825737次
100套鄉村別墅圖片大全,2026年最新設計
閱讀次數:2492203次
6款農村蓋一層平房的設計圖,10萬元就能建起來
閱讀次數:1852637次
這11個一層農村自建房別墅火爆了朋友圈!我最喜歡戶型十!你呢
閱讀次數:750268次
農村6萬元建一層小別墅圖,你敢相信嗎
閱讀次數:567686次
農村5萬塊就能自建房,6套普通房子設計圖分享,你沒看錯!
閱讀次數:419410次
8套農村漂亮三間平房圖片,非常適合在農村修建!
閱讀次數:411197次
農村自建房化糞池怎么做?附方案及施工過程
閱讀次數:391783次
農村一層三間平房設計圖,告別土氣養老房,讓人忍不住點贊
閱讀次數:350581次
新農村二層樓房圖片造價12萬,挑一套回家建房吧!
閱讀次數:349126次
