
|
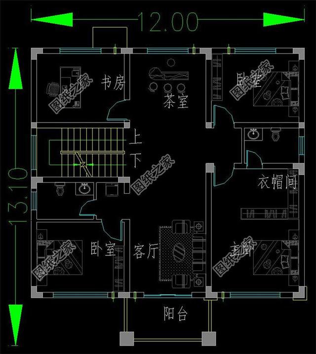
現在越來越多的農村年輕人外出打工、做生意,掙了一些錢,然后回到農村就開始建房搞基層建設,雖然說農村自建房,建的風格還是挺多的,但個人眼光不同,每一家的設計不同,也有好看不好看。現在很多人的建房觀念還是有遵規守舊的,隨著農村的發展,人們的思想也應該開放,建一棟稱心如意的房子,勢必有著漂亮的外觀,實用的布局,有著這樣要求的房子,不論大小都是極佳的住房。 今天小編就介紹三款農村中式仿古農村房屋設計圖以及戶型圖,快來看看吧! 第一款:帶車庫農村中式二層別墅設計圖以及戶型圖這款農村實用二層4開間別墅設計方案圖,開間16米左右,帶車庫戶型,七間臥室帶露臺,老家建一棟最合適不過了!別墅外觀配色和諧經典,讓人眼前一亮。獨樹一幟的新風格,比起中國人最愛的傳統中式,這種風格更現代、更時尚一點。利用科學合理的空間布局,展現出建筑結構的形式美。 ![]() 占地面積:16.26m*11.76m,198平方米左右; 建筑層高:二層; 建筑高度:8.875米(含屋頂); 功能: 一層戶型:客廳、烤火房、儲藏室、餐廳、廚房、臥室x2、衛生間x2、車庫; 二層戶型:臥室(帶衣帽間)、臥室x4、衛生間x2、露臺 ![]() ![]() 第二款:農村偏徽派風格三層房屋設計圖以及戶型圖這款偏徽派風格民居三層農村住宅設計圖,南北方都能建,白墻黛瓦的古雅簡潔。外墻采用中國傳統白色乳膠漆,與灰瓦搭配,更具古典風范,很典型的一個徽式民居,加上了現代玻璃欄桿元素,毫無違和感,更有種時尚的感覺。廚房與餐廳相鄰,上菜方便,樓梯口設置了儲藏間,方便主人儲藏物品;二層對于一層來說,依舊以臥室為主,起居室設在中間,十分方便,與陽臺相鄰,采光通風也極好;三層有間大露臺的設計,娛樂性滿分。 ![]() 占地面積:11.3m*8.76m,101.01平方米左右; 建筑層高:三層; 建筑高度:11.608米(含屋頂); 功能: 一層戶型:客廳、儲藏室、餐廳、廚房、臥室、衛生間; 二層戶型:起居室、活動區、臥室x2、臥室(帶衛生間)、衛生間、陽臺; 三層戶型:休閑區、臥室x2、衛生間、露臺 ![]() ![]() ![]() 第三款:中式仿古三層別墅效果圖以及戶型圖,有涼亭設計這款偏新中式風格的三層農村新民居自建房設計圖,外觀新穎好看,提高生活質量!淺灰色外墻漆與淺紫色外墻磚以及灰色琉璃瓦搭配,簡單的風格和色調與農村生活是比較符合的,不會顯得突兀,可以很好的融合。 ![]() 占地面積:12m*13.1m,132平方米左右; 建筑層高:三層; 建筑高度:12.775米(含屋頂); 設計: 一層戶型:玄關、客廳、餐廳、廚房、臥室(帶衛生間)、衛生間; 二層戶型:客廳、書房、茶室、臥室x2、臥室(帶衣帽間)、衛生間x2、陽臺; 三層戶型:棋牌室、書房、臥室、臥室(帶衣帽間)、衛生間、露臺; ![]() ![]() ![]() 以上就是小編介紹的農村中式仿古房屋設計圖以及戶型圖,你喜歡二層的還是三層的設計呢?評論告訴我哦!
圖紙之家-專注農村別墅/自建房設計18年,集合國內200余位經驗豐富的設計師,被評為口碑最好的農村建筑設計公司! |

2026帶車庫三層雙拼別墅房屋設計圖,配色淡雅低調
占地:224平方米
110平方米農村三層復式房屋施工圖,通透時尚,低調又奢華
占地:107.98平方米
120平方兩層房子設計圖及圖片,外觀大方好看,內部結構合理
占地:120平方米
農村兩層新中式自建房屋設計圖,受歡迎的帶小配房戶型
占地:多戶型可選
高端二層新中式四合院別墅設計圖,含全套CAD施工圖
占地:217平方米
漂亮實用三層自建別墅設計圖紙,超高的性價比
占地:160平方米
豪華雙拼三層別墅設計圖,在農村建一棟,將是最靚的風景!
占地:186.85平方米
農村平屋頂三層現代風別墅戶型圖,簡約實用經濟顏值高
占地:111.9平方米
鄉村三層簡單自建房子設計圖,全部建好34萬左右,外觀簡潔
占地:127.912平方米
新農村二層帶露臺經濟型小別墅設計圖紙,含外觀效果圖
占地:120平方米
簡單實用的二層雙拼別墅設計圖,總占地150平米左右,雙拼房屋
占地:150平方米MB
100平方米自建三層半別墅設計圖紙,帶地下車庫
占地:100平方米
帶堂屋新農村三層房屋別墅設計圖紙,帶外觀效果圖
占地:214平方米
簡單實用的四層農村自建房屋設計圖,占地100平米左右
占地:100平方米
農村一層中式三合院別墅戶型圖,這才是適合中國人建的好房子
占地:218.77平方米
面寬13米帶堂屋三層農村別墅圖,新中式大氣風格
占地:151.58平方米
12×12米農村二層經濟型自建房設計圖,設計了6間臥室
占地:140平方米
經典四合院別墅設計圖,復式挑空客廳讓四合院更高端
占地:175平方米左右
開間8米的小戶型二層別墅設計圖,2開間占地不到60平
占地:56平方米左右
農村三間四層樓房設計圖,農村輕奢型四層別墅
占地:160平方米
推薦:10套新農村自建房設計圖,2026年最新設計
閱讀次數:4825737次
100套鄉村別墅圖片大全,2026年最新設計
閱讀次數:2492203次
6款農村蓋一層平房的設計圖,10萬元就能建起來
閱讀次數:1852637次
這11個一層農村自建房別墅火爆了朋友圈!我最喜歡戶型十!你呢
閱讀次數:750268次
農村6萬元建一層小別墅圖,你敢相信嗎
閱讀次數:567686次
農村5萬塊就能自建房,6套普通房子設計圖分享,你沒看錯!
閱讀次數:419410次
8套農村漂亮三間平房圖片,非常適合在農村修建!
閱讀次數:411197次
農村自建房化糞池怎么做?附方案及施工過程
閱讀次數:391783次
農村一層三間平房設計圖,告別土氣養老房,讓人忍不住點贊
閱讀次數:350581次
新農村二層樓房圖片造價12萬,挑一套回家建房吧!
閱讀次數:349126次
