
|
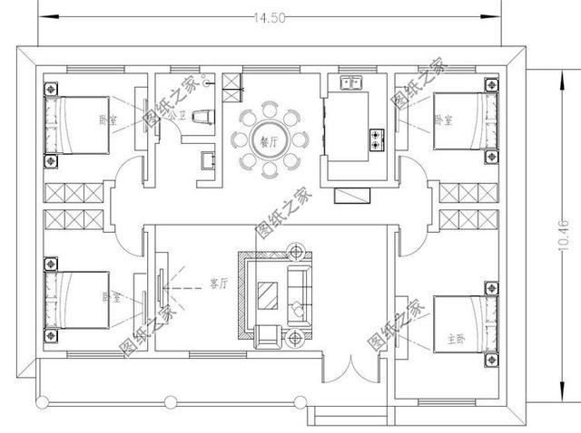
農村自建別墅,很多是二三層別墅,但平層自建房也很不錯,你有沒有發現,最近很多家里有錢的開始往平層建設了,實用方便,家中有老人的,平時沒有時間回去,建一棟平層別墅方便老人居住,不用爬樓也不覺得多累,只要設計的好,一層小別墅也照樣漂亮,今天小編就分享三款適合南方農村自建的一層別墅,專業設計師設計,不僅美觀實用,安全系數高哦! 第一款:新中式一層自建房設計以及戶型圖,簡約漂亮![]() 新風格一層別墅設計圖紙,農村自建平房戶型方案圖,,簡約而不簡單,占地180平方米,外觀非常有設計感。米黃色外墻、灰色仿石漆點綴以及灰藍色琉璃瓦屋頂,外觀簡約而不簡單。方形搭配著拱形灰色門廳,時尚漂亮,外走廊的設計增加活動空間的利用率,提供給孩子們玩耍的好場地,洗衣房在農村非常少見,大大提高了居住品質。整個布局緊湊又不擁擠,沒有浪費任何不面積。 占地面積:16.7m*12.7m,183.7平方米左右; 建筑高度:6.34米(含屋頂); 設計功能: 一層戶型:玄關、客廳、臥室(帶衛生間)、臥室x3、廚房、餐廳、衛生間、洗衣房 ![]() 第二款:簡歐式一層自建房效果圖以及戶型圖,造價低施工簡單![]() 140平方米一層歐式新農村自建平房設計圖,造價11萬,外觀時尚新穎。墻體采用大面積的暖色面磚,搭配藍色屋面瓦,整體配色素凈淡雅。室內空間都非常大而注重生活品質,入戶就通大客廳,餐廳和廚房相連,用餐方便,設有四個臥室,房間充裕,分別在建筑的四個角落,可以當老人房使用,非常舒適的居家體驗。 占地面積:14.5m*10.46m,141.218平方米左右; 建筑高度:6.4米(含屋頂); 設計功能: 一層戶型:客廳、臥室x4、廚房、餐廳、衛生間 ![]() 第三款:四開間一層半自建房設計圖以及戶型圖,帶閣樓戶型![]() 農村一層半別墅設計圖及效果圖片,帶閣樓設計的戶型方案,年輕人專屬,高顏值低造價,不后悔系列,外觀獨樹一幟,辨識度超高,錯落有致的坡屋頂碰撞出不一樣的火花,古樸與時尚有機結合,閣樓弧窗的設計畫龍點睛,兼具實用性與美觀度 占地面積:16.96m*11.96m,190.7平方米; 建筑高度:7.6米(含屋頂); 設計功能: 一層戶型:玄關、客廳、廚房、餐廳、臥室(帶衛生間)、臥室x2、衛生間、洗衣房; 閣樓戶型:臥室x3、衛生間、雜物間(可自由安排)x4; ![]() ![]() 今天介紹的南方農村自建一層房設計圖以及戶型圖就到這里了。你喜歡哪個?可以評論告訴我哦!
圖紙之家-專注農村別墅/自建房設計18年,集合國內200余位經驗豐富的設計師,被評為口碑最好的農村建筑設計公司! |

農村四間二層小洋樓設計圖,歐式別墅、現代洋氣
占地:200平方米
130平方米新農村三層房屋設計圖紙,外觀簡單大方
占地:130平方米
面寬9米的三層農村自建房設計圖,適合鄉下地區自建
占地:121.94平方米
網紅中式一層三合院別墅設計圖,白墻黛瓦古典大氣,讓人心曠神
占地:248.82平方米
新中式農村三層樓房設計圖,帶地下室,主體建筑面積110平米
占地:110平方米
兩層樓房設計圖,兩層新農村樓房圖紙,外觀典雅古樸
占地:140平方米
自建小樓二層農村別墅設計圖,大氣好看,13米乘14米
占地:181.62
農村小別墅設計圖二層,占地不大顏值高,最適合農村建造。
占地:108.66平方米
12米乘9米占地百平一層平房戶型設計圖,布局寬敞大氣又舒適
占地:108平方米
2026新款農村四層別墅設計圖紙戶型圖,帶挑空客廳
占地:150平方米
氣派的帶旋轉樓梯三層別墅房屋設計圖,戶型很好
占地:150平方米
80平農村房屋設計圖,小戶型自建房三層別墅推薦
占地:80平方米
百余平三層豪華別墅設計圖,高品位穩重耐看,全村都羨慕的豪華
占地:108.95平方米
農村四層樓房設計圖,占地120平方米,歐式風格,高端大氣
占地:120平方米
兩層半新農村別墅設計圖紙,CAD設計圖+高清效果圖
占地:90平方米
農村三間三層半別墅設計圖,舒適寬敞時尚經濟,居住生活方便舒
占地:168.29平方米
農村20萬元二層小樓圖片及全套圖紙,外型美造價低
占地:多種戶型
六開間三層農村自建別墅設計圖,盡享豪華舒適生活
占地:341.91平方米
適合農村建造的二層房屋設計圖紙及效果圖,帶悶頂層,占地15
占地:150平方米
歐式大戶型三層農村房屋設計圖紙,歐式住宅圖推薦
占地:178平方米
推薦:10套新農村自建房設計圖,2026年最新設計
閱讀次數:4825737次
100套鄉村別墅圖片大全,2026年最新設計
閱讀次數:2492203次
6款農村蓋一層平房的設計圖,10萬元就能建起來
閱讀次數:1852637次
這11個一層農村自建房別墅火爆了朋友圈!我最喜歡戶型十!你呢
閱讀次數:750268次
農村6萬元建一層小別墅圖,你敢相信嗎
閱讀次數:567686次
農村5萬塊就能自建房,6套普通房子設計圖分享,你沒看錯!
閱讀次數:419410次
8套農村漂亮三間平房圖片,非常適合在農村修建!
閱讀次數:411197次
農村自建房化糞池怎么做?附方案及施工過程
閱讀次數:391783次
農村一層三間平房設計圖,告別土氣養老房,讓人忍不住點贊
閱讀次數:350581次
新農村二層樓房圖片造價12萬,挑一套回家建房吧!
閱讀次數:349126次
