
|
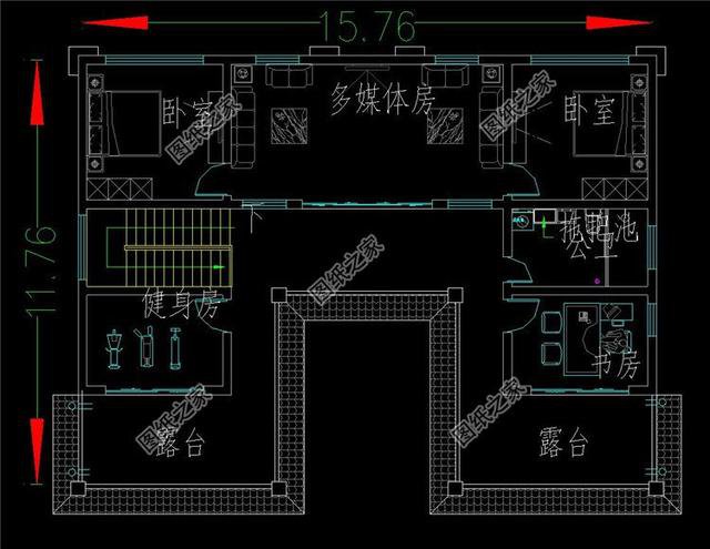
作為現代發展演化出的的新型別墅款式,新中式別墅的古典氣質與現代元素完美的融合,營造了一種素雅大氣的氣息,也呈現出不一樣的東方格調,不僅有著濃厚的文化底蘊,彰顯了不同凡響的品位,還與自然景色互相交融,讓人百看不厭。今天給大家帶來三款帶庭院的新中式效果圖以及平面圖,造型精致,而且每款都富有變化,一起來看看吧! 第一款:農村二層半新別墅設計圖以及戶型圖,帶設計![]() 平屋頂坡屋頂相結合,帶的規劃,漂亮經濟實用。整體配色和諧經典,讓人眼前一亮。坡屋頂和平頂的造型富有層次感,門廳的甄瓦不僅具有造型感,而且可以防止飄雨。三樓的露臺可打造空中花園,觀景聊天,舒適極了。獨樹一幟的新風格,比起中國人最愛的傳統中式,這種風格更現代、更時尚一點。 占地面積:13.14m*12.16m,140.68平方米左右; 建筑層高:二層; 建筑高度:11.44米(含屋頂); 功能: 一層戶型:客廳、廚房、餐廳、臥室(帶衣帽間)、衛生間; 二層戶型:起居室、臥室(帶衣帽間)、臥室x3、衛生間、陽臺; 三層戶型:儲藏室、露臺; ![]() ![]() 第二款:農村三層別墅設計圖以及戶型圖,簡潔個性![]() 經典的豪宅別墅外觀效果圖!外形采用特有的新風格,簡潔個性,素雅大方。占地方正,左右對稱,符合中國居民對于房子的外形追求。外形主體采用白色真石漆,底部采用灰色外墻磚,屋頂采用灰色琉璃瓦。一層入戶是方方正正的,冬暖夏涼,天井四周為走廊,可種植花草樹木,生機勃勃。后邊為生活區,客廳寬敞,活動區域廣,二層室內設6臥室,臥室較多,其中三個都帶衛生間,方便居住,三層茶室為家人提供豐富的業余生活,也可作為接待室,邀請朋友。雙露臺空間大,視野開闊, 占地面積:18m*15m,227.49平方米左右; 建筑層高:三層; 建筑高度:12.713米(含屋頂); 設計: 一層戶型:客廳、茶座、廚房、餐廳、棋牌室、儲物間、臥室(帶衛生間)x2、衛生間; 二層戶型:客廳、臥室x3、臥室(帶衛生間)x3、衛生間; 三層戶型:茶室、書房、臥室(帶衛生間)x2、臥室、臥室(帶衣帽間)、衛生間、露臺x2 ![]() ![]() ![]() 第三款:三層新農村別墅設計圖以及戶型圖,簡潔舒適![]() 占地面積:15.76m*11.76m,133.64平方米左右; 建筑層高:三層; 建筑高度:12.322米(含屋頂); 設計: 一層戶型:客廳、神位、廚房、餐廳、儲物室、娛樂室、休息間、臥室(帶衛生間)、衛生間; 二層戶型:內庭上空、客廳、臥室x2、臥室(帶衛生間)x2、衛生間; 三層戶型:多媒體房、書房、健身房、衛生間、臥室x2、露臺x2 ![]() ![]() ![]() 今天小編推薦的帶庭院的新中式自建房效果圖以及戶型圖,有喜歡的就分享給家里人看看吧!
圖紙之家-專注農村別墅/自建房設計18年,集合國內200余位經驗豐富的設計師,被評為口碑最好的農村建筑設計公司! |

一層半帶閣樓別墅設計圖,悠閑舒適,養老度假皆可
占地:161.94平方米
架空層的一層三合院別墅設計圖紙,這樣設計太贊了
占地:172.06平方米
120平方米農村經典二層房屋設計圖紙,造型精致好看
占地:121平方米
200平農村二層別墅設計圖,外觀現代簡約
占地:204平方米
二層復式農村豪宅別墅設計圖,挑空客廳旋轉樓梯高級感十足
占地:215.43平方米
農村10萬元一層小別墅平房設計圖大全,含效果圖
占地:120平方米
13.5米乘11米兩層半別墅設計圖,中式與現代相融合
占地:148.5平方米
120平米三層30萬別墅圖片大全及全套施工圖,外觀簡潔大方
占地:120平方米
堂屋共用五間雙拼別墅設計圖,適合二兄弟的二層別墅
占地:292.5平方米左右
農村養老房還是一層好,帶閣樓的一層房子設計圖
占地:135平方米
簡歐漂亮農村二層別墅設計方案圖紙,12米乘9米
占地:多戶型可選
農村小別墅設計圖二層,占地不大顏值高,最適合農村建造。
占地:108.66平方米
經濟實用型二層農村小別墅設計圖,造價25萬內,外觀看起來時尚
占地:120平方米
新款農村四層復式別墅設計圖紙及效果圖,外立面清新別致
占地:207平方米
農村一層7字型平房別墅設計圖,“L”自行戶型,外觀簡約低調
占地:213.39平方米
農村一層中式三合院別墅戶型圖,這才是適合中國人建的好房子
占地:218.77平方米
旋轉樓梯挑空獨棟二層簡歐小別墅設計圖,大氣時尚
占地:189.26平方米
農村三層中式仿古別墅設計圖紙,中國風自建房戶型
占地:158.64平方米
開間8米的小戶型二層別墅設計圖,2開間占地不到60平
占地:56平方米左右
帶閣樓兩層半雙拼別墅房屋設計圖,帶外觀效果圖
占地:240平方米
推薦:10套新農村自建房設計圖,2026年最新設計
閱讀次數:4825737次
100套鄉村別墅圖片大全,2026年最新設計
閱讀次數:2492203次
6款農村蓋一層平房的設計圖,10萬元就能建起來
閱讀次數:1852637次
這11個一層農村自建房別墅火爆了朋友圈!我最喜歡戶型十!你呢
閱讀次數:750268次
農村6萬元建一層小別墅圖,你敢相信嗎
閱讀次數:567686次
農村5萬塊就能自建房,6套普通房子設計圖分享,你沒看錯!
閱讀次數:419410次
8套農村漂亮三間平房圖片,非常適合在農村修建!
閱讀次數:411197次
農村自建房化糞池怎么做?附方案及施工過程
閱讀次數:391783次
農村一層三間平房設計圖,告別土氣養老房,讓人忍不住點贊
閱讀次數:350581次
新農村二層樓房圖片造價12萬,挑一套回家建房吧!
閱讀次數:349126次
