
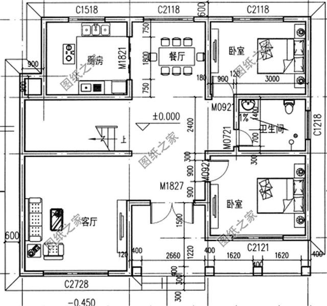
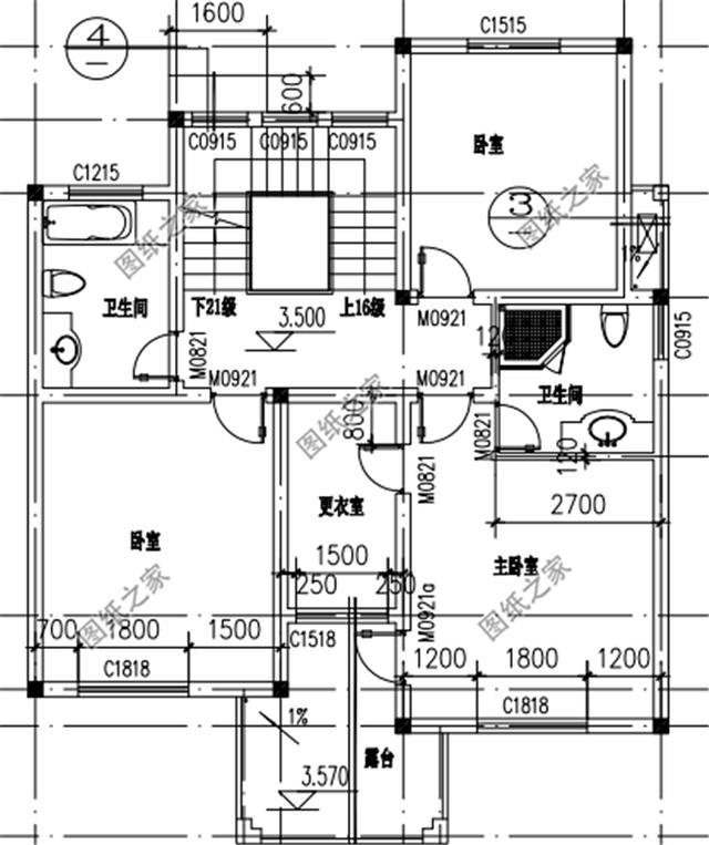
別墅一:130平帶閣樓兩層房屋設計圖本戶型為130平帶閣樓兩層半別墅房屋設計圖,含外觀效果圖,配色樸素但不失美觀,戶型經典,總占地面積小于130平。 ![]() 占地面積:10.20m*12.90m,130平方米左右; 建筑層高:二層半(帶閣樓); 建筑高度:9.54米(含屋頂); 設計功能: 一 層:客廳、餐廳、廚房、臥室、衛生間、儲物間; 二 層:主臥(帶衛生間和衣帽間)、臥室x2、衛生間、小露臺;
![]() ![]() 別墅二:130平新農村二層住宅設計圖本戶型為農村二層別墅設計方案,外觀配色艷麗,紅色的外墻,藍色的屋頂,內部設計合理,滿足一般家庭建造。 ![]() 占地面積:12.0m*10.8m,130平方米左右; 建筑層高:二層; 建筑高度:10.96米(含屋頂); 設計功能: 一 層:客廳、廚房、餐廳、衛生間、臥室x2; 二 層:客廳、主臥(帶衛生間)、臥室x2、棋牌室、衛生間、陽臺; ![]() ![]() 別墅三:簡單的二層樓房圖片本戶型為140平兩層別墅設計方案,外觀簡潔,帶車庫,戶型功能齊全,布局合理,是一棟實用的簡單二層樓房設計方案。 ![]() 占地面積:11.70m*12.00m,140平方米左右; 建筑層高:二層; 建筑高度:9.33米(含屋頂); 設計功能: 一層設計:堂房、客廳、餐廳、廚房、衛生間、洗衣間、老人房(臥室)、儲藏間、車庫; 二層設計:客廳、主臥、次臥x2、書房、衛生間、衣帽間、陽臺x2; ![]() ![]() 以上就是農村三間二層房子設計圖,有全套施工圖哦,房子不僅要看顏值,還要看舒適度哦,喜歡哪款,歡迎下方留言告訴我哦。
圖紙之家-專注農村別墅/自建房設計18年,集合國內200余位經驗豐富的設計師,被評為口碑最好的農村建筑設計公司! |

100平方米二層中式小別墅設計圖紙級效果圖片
占地:99平方米
三層半復式別墅設計方案,全套設計圖+效果圖
占地:160平方米
別致美觀的簡歐二層別墅房屋設計圖,含外觀效果圖
占地:145平方米
新款農村三層雙拼聯體別墅戶型圖,客廳中空,單戶120平米左右
占地:240平方米
帶堂屋新農村三層房屋別墅設計圖紙,帶外觀效果圖
占地:214平方米
歐式豪華三層別墅設計圖,占地面積170平米,高端大氣帶露臺
占地:170平方米
兩層半20多萬復式農村自建房設計圖,經典不過時戶型
占地:120平方米
二層農村房子圖片及全套施工圖紙,占地150平面左右
占地:150平方米
農村最好看18萬左右兩層小樓圖,外觀、造型簡潔大方
占地:120平方米
2026二層農村新款別墅設計圖,帶車庫,帶鍋爐房
占地:180平方米
120平方米新農村二層自建房屋設計圖紙大全14x9米
占地:120平方米
農村二層樓房設計圖紙,含全套設計方案(施工圖+效果圖)
占地:98平方米
五間兩層農村自建房設計圖,大門居中真氣派,空間寬敞生活質量
占地:219.94平方米
歐式小別墅設計圖紙帶效果圖,二層歐式小別墅設計方案展示
占地:166平方米
辦公居住共用的一層別墅設計圖,簡約優雅,精致生活新體驗
占地:265.3平方米
小戶型三層別墅設計圖,戶型經典,外觀精致、美觀
占地:95平方米
經典實用的新農村三層房屋設計圖紙,推薦自建使用
占地:165平方米
人字坡房屋一層別墅設計圖,簡約低調超實用,、
占地:101.17平方米
農村二層中式三合院設計圖,這才是國人該建的房子
占地:175.58平方米
南方新農村三層房屋設計圖大全,預算30萬內
占地:145平方米
推薦:10套新農村自建房設計圖,2026年最新設計
閱讀次數:4825737次
100套鄉村別墅圖片大全,2026年最新設計
閱讀次數:2492203次
6款農村蓋一層平房的設計圖,10萬元就能建起來
閱讀次數:1852637次
這11個一層農村自建房別墅火爆了朋友圈!我最喜歡戶型十!你呢
閱讀次數:750268次
農村6萬元建一層小別墅圖,你敢相信嗎
閱讀次數:567686次
農村5萬塊就能自建房,6套普通房子設計圖分享,你沒看錯!
閱讀次數:419410次
8套農村漂亮三間平房圖片,非常適合在農村修建!
閱讀次數:411197次
農村自建房化糞池怎么做?附方案及施工過程
閱讀次數:391783次
農村一層三間平房設計圖,告別土氣養老房,讓人忍不住點贊
閱讀次數:350581次
新農村二層樓房圖片造價12萬,挑一套回家建房吧!
閱讀次數:349126次
