
|
誰不是在外辛辛苦苦的賺錢只是想回老家蓋一棟屬于自己的房子呢,雖然現在農村生活水平提升了好多,但是在建房子上還是會有人覺得造價高了不劃算,所以想建一棟美觀又經濟的房子真是太不容易了。今天小編給大家推薦三款農村二層半樓房設計圖,造價絕對的經濟實惠,想建房的朋友們值得一看哦。
款式一:農村二層半別墅設計圖,占地120平米左右,造價20萬
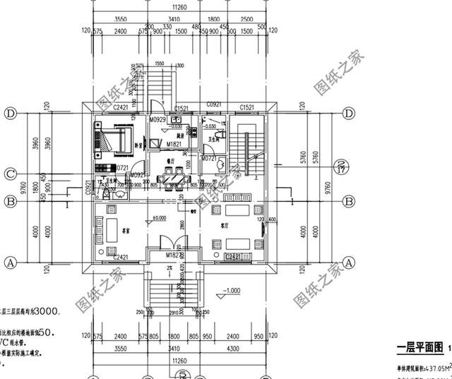
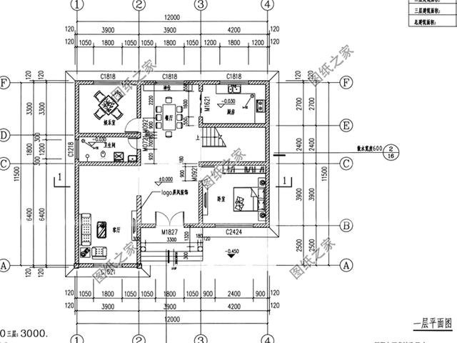
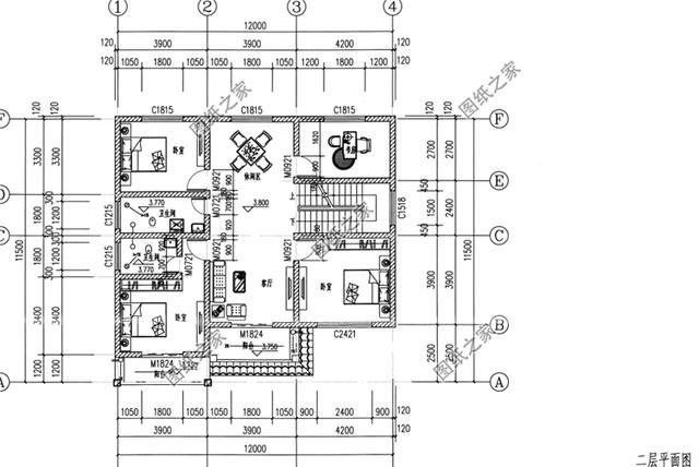
圖紙介紹:這款二層半別墅占地120平米左右,造價20萬,外觀設計結合了傳統的中式和當下流行的歐式風格,簡單大氣,時尚個性,露臺空間大,方便晾曬。 占地面積:12.0m*11.5m,一層占地120平方米左右; 建筑層高:三層; 建筑高度:11.9米(含屋頂); 設計功能: 一 層:客廳、廚房、餐廳、臥室、娛樂室、衛生間; 二 層:客廳、臥室(帶衛生間)、臥室x3、衛生間、休閑區、書房、陽臺; 三 層:臥室(帶衛生間)、休閑區、書房、大露臺、陽臺; ![]() ![]() ![]() ![]() 款式二:農村占地140平米二層半別墅設計圖,戶型極佳
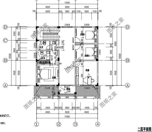
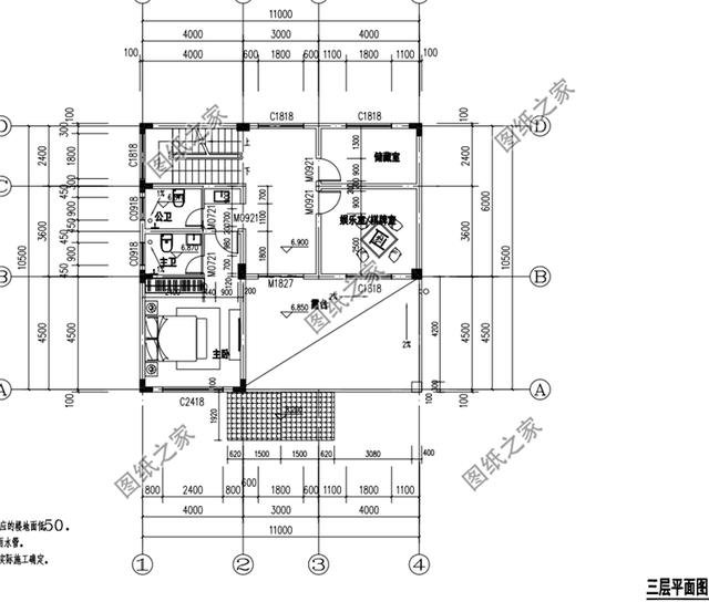
圖紙介紹:本戶型占地140平方米左右,戶型極佳,外觀大氣時尚,內部布局合理,三樓帶大露臺,一樓和三樓分別都有儲藏間,適合農村建造。 占地面積:11.0m*10.5m,一層占地140平方米左右; 建筑層高:三層; 建筑高度:12.08米(含屋頂); 設計功能: 一 層:客廳、廚房、餐廳、臥室(帶衛生間)、公衛、儲藏室; 二 層:主臥(帶衛生間)、臥室2、書房、衛生間、陽臺; 三 層:主臥(帶衛生間)、娛樂室、儲藏室、衛生間、大露臺; ![]() ![]() ![]() ![]() 款式三:農村二層半別墅設計圖,占地115平方米左右,帶地下室設計
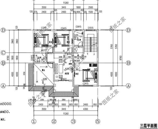
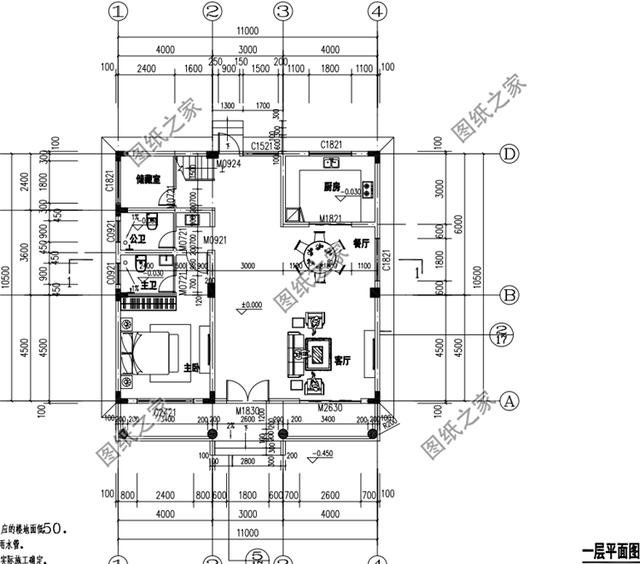
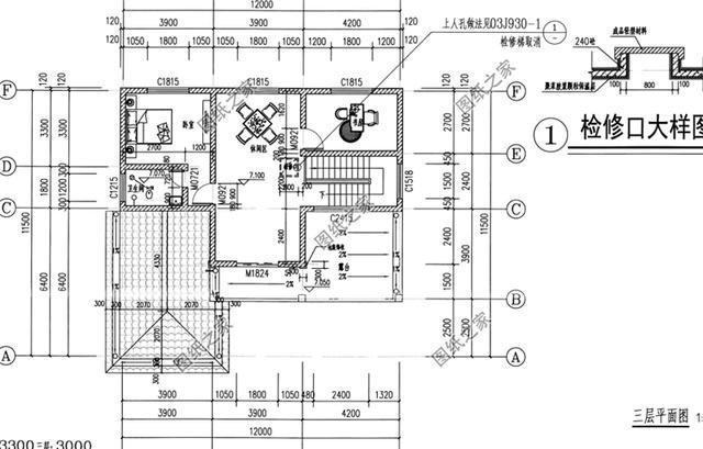
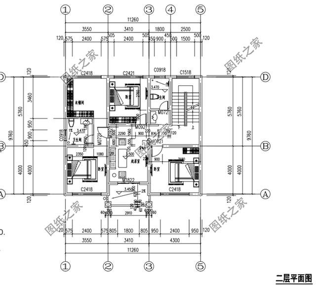
圖紙介紹:本戶型占地115平米左右,帶地下室設計,帶露臺,外觀美布局好,二樓設有套間,帶衛生和大衣帽間,高端大氣,住著舒適。二三層的露臺欄桿都采用花瓶式,又稍帶了些簡歐式風。 占地面積:11.26m*9.7m,一層占地115平方米左右; 建筑層高:三層; 建筑高度:11.88米(含屋頂); 設計功能: 地下室:酒窖、影音室、健身房、衛生間; 一 層:客廳、茶室、廚房、餐廳、臥室、衛生間; 二 層:起居室、主臥(帶衣帽間、衛生間)、臥室x2、衛生間、陽臺; 三 層:健身房、臥室(帶衛生間)、臥室x2、衛生間、大露臺; ![]() ![]() ![]() ![]() ![]() 這三套二層半別墅戶型果然是美觀又實用吧,喜歡的朋友記得收藏。
圖紙之家-專注農村別墅/自建房設計18年,集合國內200余位經驗豐富的設計師,被評為口碑最好的農村建筑設計公司! |

90平小戶型四層房屋設計圖,農村自建別墅推薦
占地:90平方米
造價15萬經濟美觀一層農村別墅設計圖,占地150平米
占地:多戶型可選
三層獨棟帶露臺房屋設計圖,含外觀圖片大全
占地:110平方米
平屋頂四間一層農村自建房設計圖紙,經濟時尚
占地:144平方米
2026新款戶型三層新農村別墅房屋設計圖紙,外觀對稱
占地:160平方米
大戶型三層別墅設計圖,高貴大氣,占地面積將近300平
占地:273.33平方米
最實用中式一層三合院別墅設計圖,簡約精致布局實用
占地:162.49平方米
新農村三層帶露臺自建房設計施工圖,農村自建別墅推薦
占地:112平方米
面寬14米農村別墅二層別墅戶型設計,經濟實用
占地:107.1平方米
進深9米的農村自建一層養老房戶型方案,三室二廳兩衛
占地:133.2平方米
120平方房子設計圖帶效果圖,農村自建房戶型推薦
占地:120平方米
經典小戶型雙拼二層新農村房屋住宅設計圖,含效果圖
占地:80平方米
一層農家雙拼自建房設計圖,左右對稱四平八穩
占地:219.05平方米
140平方米一層歐式新農村平房設計圖,主體造價僅11萬
占地:141.218平方米
造價33萬左右超漂亮的三層別墅圖紙設計圖,旋轉樓梯戶型設計
占地:121.59平方米
130平方米農村兩層別墅圖紙及效果圖12X11米
占地:133平方米
160平方米經典鄉村二層房屋設計圖紙
占地:160平方米
115平方米農村三層別墅設計圖,預算30萬左右
占地:115平方米
新農村二層帶庭院的小別墅設計圖及效果圖
占地:137平方米
鄉村三層別墅設計圖紙,帶屋頂花園(含效果圖)
占地:150平方米
推薦:10套新農村自建房設計圖,2026年最新設計
閱讀次數:4825737次
100套鄉村別墅圖片大全,2026年最新設計
閱讀次數:2492203次
6款農村蓋一層平房的設計圖,10萬元就能建起來
閱讀次數:1852637次
這11個一層農村自建房別墅火爆了朋友圈!我最喜歡戶型十!你呢
閱讀次數:750268次
農村6萬元建一層小別墅圖,你敢相信嗎
閱讀次數:567686次
農村5萬塊就能自建房,6套普通房子設計圖分享,你沒看錯!
閱讀次數:419410次
8套農村漂亮三間平房圖片,非常適合在農村修建!
閱讀次數:411197次
農村自建房化糞池怎么做?附方案及施工過程
閱讀次數:391783次
農村一層三間平房設計圖,告別土氣養老房,讓人忍不住點贊
閱讀次數:350581次
新農村二層樓房圖片造價12萬,挑一套回家建房吧!
閱讀次數:349126次
