
|
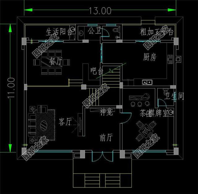
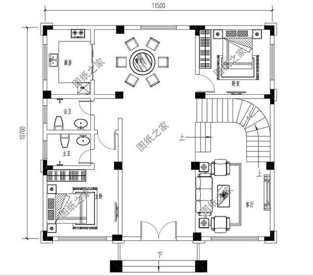
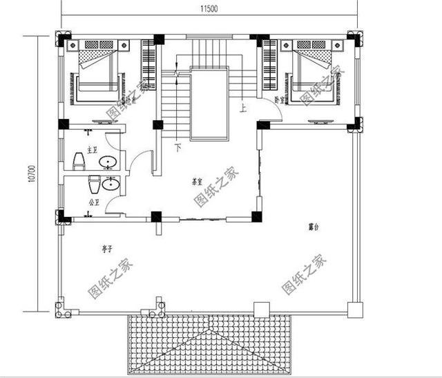
自從城市里的房價猛漲不停,無數在城里打拼的人們選擇回家建房,農村建房已經成為了大家的首選了,目前農村的房子雖然各式各樣,但在小編看來,自家房子不僅外觀好看,布局也要實用,老家房子建的好,自己住著也舒心。下面帶來這三款帶涼亭的三層別墅設計圖以及戶型圖,看過的人都點贊。 第一款:農村三層歐式別墅豪宅設計圖以及戶型圖,中空客廳和旋轉樓梯![]() 房子能做到這么精致,簡直人生贏家 !立柱、弧形采光窗、拱形落地窗皆是歐式風格的經典元素;再加上溫暖的外觀色調,一棟經典雅致的歐式別墅便能呈現于人們的眼前。客廳、樓梯、餐廳相互貫通,采用挑空設計,戶即給人寬敞的空間感,室內更加明亮軒朗;二層為主要居住,三室一廳兩衛,客廳,外設3個陽臺;三層健身房與大露臺,時尚而浪漫的居住設計,當下建房不可少。 占地面積:12.82m*10.82m,134.84平方米左右; 建筑層高:三層; 建筑高度:12.05米(含屋頂); 設計功能: 一層戶型:客廳、餐廳、廚房、臥室、臥室(帶衛生間)、衛生間; 二層戶型:客廳上空、客廳、臥室x2、臥室(帶衛生間)、衛生間、陽臺x3; 三層戶型:健身房、棋牌室、書房、臥室(帶衛生間)、衛生間、陽臺x2 ![]() ![]() ![]() 第二款:新農村經典歐式三層樓設計圖以及戶型圖,旋轉樓梯設計![]() ![]() ![]() 130平左右,棕色文化石和灰色噴漆的巧妙搭配,溫馨有活力,拱形落地窗寬敞又通透,雙加精致雕花,盡顯大氣之美 占地面積:11.5m*10.7m,127.528平方米左右; 建筑層高:三層; 建筑高度:12.543米(含屋頂); 設計功能: 一層戶型:客廳、餐廳、廚房、臥室(帶衛生間)、臥室、衛生間; 二層戶型:客廳上空、起居室、臥室(帶衛生間、衣帽間兼書房)、臥室x2、衛生間; 三層戶型:茶室、臥室(帶衛生間)、臥室、衛生間、露臺、亭子 ![]() ![]() ![]() 第三款:農村漂亮的三層別墅美宅設計圖以及戶型圖,經典不過時![]() 米黃色外墻與褐色檐邊相互照應,全透明外窗玻璃盡顯質感之風,深藏一片森林之海中,不管是三樓的露臺上還是屋外的休閑傘底,都隱藏著靜謐的小美好。高低錯落,看起來富有韻味和層次感。 占地面積:13m*11m,130.4平方米左右; 建筑層高:三層; 建筑高度:13.725米(含屋頂); 設計功能: 一層戶型:前廳、神龕、客廳、餐廳、廚房(帶加工平臺)、茶室+棋牌室(帶衛生間)、衛生間、生活陽臺; 二層戶型:客廳上空、茶室、臥室(帶衛生間)X2、臥室、衛生間、陽臺; 三層戶型:娛樂區、臥室(帶衣帽間、衛生間)X2、陽臺、露臺; ![]() ![]() ![]() 以上就是小編推薦的帶涼亭的三層別墅設計圖以及戶型圖,有沒有你中意的?評論區告訴我吧!
圖紙之家-專注農村別墅/自建房設計18年,集合國內200余位經驗豐富的設計師,被評為口碑最好的農村建筑設計公司! |

200平米左右二層樓房設計圖,外觀看著舒服、布局住著坦然
占地:190平方米
120平方米新農村四層房屋設計圖紙和效果圖
占地:120平方米
農村120平米三間三層樓房設計圖紙,農村理想住房設計圖
占地:120平方米
260平方米歐式四層別墅設計圖20X18米,造價108萬
占地:260平方米
2026年最新款四間二層別墅設計圖,15米乘13米
占地:171.01平方米
160平方米農村三層小別墅設計圖紙,13.8x12.7米
占地:163平方米
2026年經典新中式三層別墅設計圖紙,新款自建房戶型圖
占地:158.19平方米
三層平頂現代風格,農村自建房設計圖,可帶電梯,百看不厭
占地:259.55平方米
125平兩層別墅房屋設計圖,帶普通和復式兩個戶型
占地:125平方米
二層別墅設計圖紙及效果圖,占地200平米,外觀精致優雅,小有情
占地:200平方米
簡約而不簡單的二層新中式鄉墅設計圖,占地150平左右
占地:150.78平方米
90平方米農村二層房屋設計施工圖紙及效果圖,11x8.5米
占地:90平方米
豪華高端三層帶地下室別墅設計圖,可帶電梯
占地:210平方米
農村四層雙拼別墅房屋設計圖,造型現代、大氣
占地:220平方米
中式兄弟雙拼別墅設計圖紙,類似合院造型,美爆了
占地:221.9平方米
兩層半新農村別墅設計圖紙,CAD設計圖+高清效果圖
占地:90平方米
新農村住宅設計圖集,三層房屋設計圖紙展示
占地:110平方米
占地80平四層平頂別墅設計圖,現代風房子效果圖
占地:80平方米
農村二層樓房設計圖帶外觀圖片,造價20多萬,13.3x11
占地:146平方米
經濟實用型二層農村小別墅設計圖,造價25萬內,外觀看起來時尚
占地:120平方米
推薦:10套新農村自建房設計圖,2026年最新設計
閱讀次數:4825737次
100套鄉村別墅圖片大全,2026年最新設計
閱讀次數:2492203次
6款農村蓋一層平房的設計圖,10萬元就能建起來
閱讀次數:1852637次
這11個一層農村自建房別墅火爆了朋友圈!我最喜歡戶型十!你呢
閱讀次數:750268次
農村6萬元建一層小別墅圖,你敢相信嗎
閱讀次數:567686次
農村5萬塊就能自建房,6套普通房子設計圖分享,你沒看錯!
閱讀次數:419410次
8套農村漂亮三間平房圖片,非常適合在農村修建!
閱讀次數:411197次
農村自建房化糞池怎么做?附方案及施工過程
閱讀次數:391783次
農村一層三間平房設計圖,告別土氣養老房,讓人忍不住點贊
閱讀次數:350581次
新農村二層樓房圖片造價12萬,挑一套回家建房吧!
閱讀次數:349126次
