
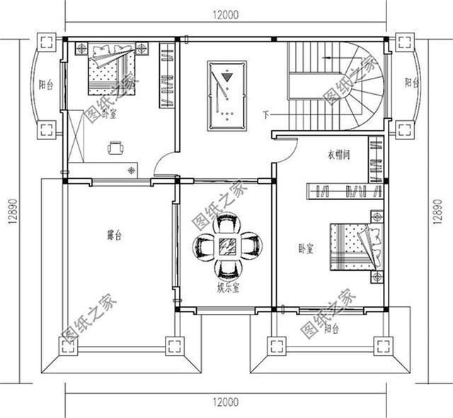
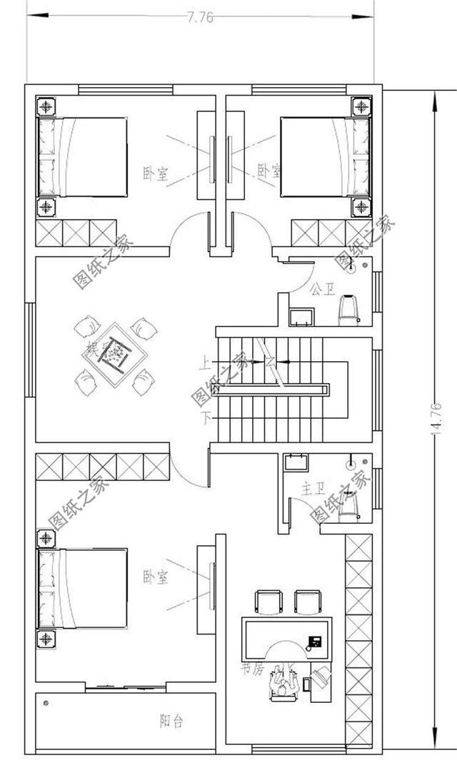
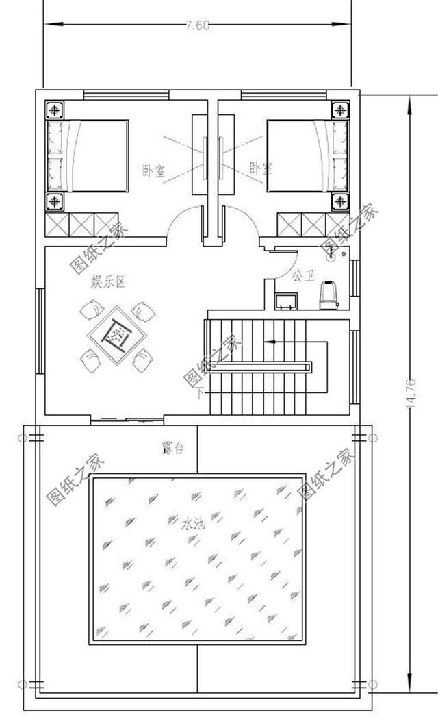
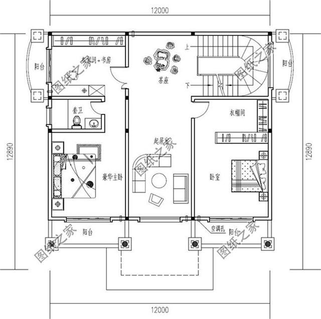
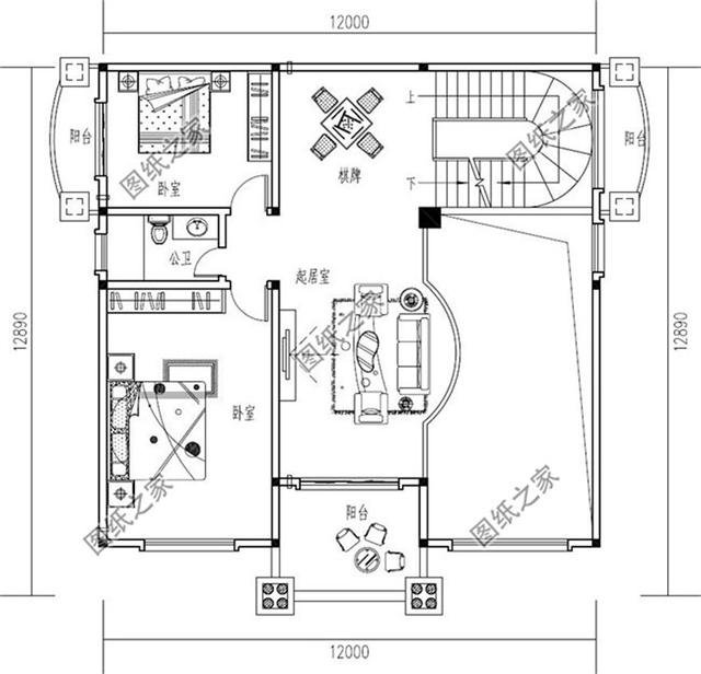
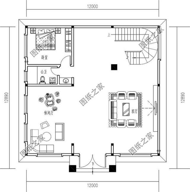
樓房一:四層簡單新農村房屋設計圖紙四層簡單新農村房屋設計圖紙,適帶坡屋頂農村別墅,大落地窗,簡約清新,豪華戶型,效果圖外墻采用真石漆裝飾,簡潔大方。 ![]() 占地面積:17.4m*12.6m,222平方米左右; 建筑層高:四層; 建筑高度:17.66米(含屋頂); ![]() ![]() ![]() ![]() 建筑結構:框架結構; 設計功能: 一層戶型:客廳、廚房、餐廳、主臥(帶衛生間)、茶藝區、衛生間、車庫; 二層戶型:客廳上空、臺球室、麻將室、KTV、衛生間、陽臺; 三層戶型:客廳、臥室(帶衛生間)、臥室x3、衛生間、陽臺; 四層戶型:客廳、臥室x4、陽臺、露臺; 樓房二:小面寬農村四層平屋頂別墅設計圖小面寬的農村簡單四層平屋頂別墅設計圖,農入戶平臺進入即為客廳,客廳面積較為充足,方便接待來訪客人或朋友,二三層主要以生活居住為主要功能,四層設有水池和露臺,極大的裝點并美化了別墅。 ![]() 占地面積:7.76m*14.76m,109.29平方米左右; 建筑層高:四層; 建筑高度:13.8米(含屋頂); ![]() ![]() ![]() ![]() 設計功能: 一層戶型:客廳、廚房、餐廳、臥室x2、衛生間; 二層戶型:娛樂區、臥室(帶書房、衛生間)、臥室x2、衛生間、陽臺; 三層戶型:娛樂區、臥室(帶書房、衛生間)、臥室x2、衛生間、陽臺; 四層戶型:娛樂區、臥室x2、衛生間、露臺、水池; 樓房三:新農村140平米樓房四層獨棟別墅設計圖新農村四層獨棟四層設計圖,戶型簡單實用,一二層主要用黃色真石漆,三四層主要用淡黃色真石漆裝飾,室內帶豪華套房、棋牌室以及娛樂室,這樣生活不會顯得太枯燥。 ![]() 占地面積:12m*12.89m,141平方米左右; 建筑層高:四層; 建筑高度:16.62米(含屋頂); ![]() ![]() ![]() ![]() 設計功能: 一層戶型:客廳、休閑廳、臥室、衛生間; 二層戶型:客廳上空、起居室、棋牌室、臥室x2、衛生間、陽臺; 三層戶型:起居室、茶座、豪華主臥(帶衛生間、衣帽間、書房)、臥室(帶衣帽間)、陽臺; 四層戶型:娛樂室、臥室(帶衣帽間)、臥室、露臺; 以上就是農村四層樓房外觀圖,在你的家鄉有這樣的別墅
圖紙之家-專注農村別墅/自建房設計18年,集合國內200余位經驗豐富的設計師,被評為口碑最好的農村建筑設計公司! |

新款農村三拼三戶別墅設計圖及效果圖三層戶型,外觀靚麗新穎
占地:360平方米
農村現代新中式三合院設計圖及效果圖片,外觀好看極了
占地:多戶型可選
農村二層舒適好房,這款四開間別墅設計圖真的很不錯
占地:220.46平方米
一層農家雙拼自建房設計圖,左右對稱四平八穩
占地:219.05平方米
農村四層樓房設計圖,含外觀圖片,自建四層房屋推薦
占地:140平方米
歐式漂亮農村三層自建房設計圖紙,兩個戶型方案可選
占地:多戶型可選
鄉村典型自建房中式二層四合院別墅設計圖,左右對稱設計
占地:430平方米
2款現代風格農村兩層別墅設計圖,時尚漂亮
占地:多戶型可選
占地90平米四層超現代風別墅設計圖,享受高品質生活
占地:3.76平方米
小型中式一層三合院別墅設計圖,小宅基地照樣建合院
占地:119.73平方米
陽臺封閉的簡約實用二層別墅設計圖,15x12.8米
占地:165平方米
帶KTV的四開間的二層別墅設計圖,造型美觀經濟實用
占地:240.22平方米
?13.5x9米這尺寸火了!好多人家照著建這款二層別墅,簡單實用
占地:115.11平方米
農村7字形漂亮房子設計圖及外觀效果圖
占地:189.3平方米
150平農村三層歐式別墅設計圖紙,盡顯豪華與精致,讓人羨慕不已
占地:147.62平方米
蓋別墅圖紙新農村簡歐二層房屋設計圖,12米×12米左右
占地:128平方米左右
3款簡單舒適二層別墅設計圖,低調配色,造型簡單大氣
占地:多戶型可選
120平帶車庫二層農村別墅施工圖,簡約時尚的外觀
占地:119.13平方米
帶地下室設計三層自建房別墅設計圖,復式挑空客廳
占地:192平方米
帶庭院的農村一層別墅圖紙設計,外觀時尚好看
占地:多戶型可選
推薦:10套新農村自建房設計圖,2026年最新設計
閱讀次數:4825737次
100套鄉村別墅圖片大全,2026年最新設計
閱讀次數:2492203次
6款農村蓋一層平房的設計圖,10萬元就能建起來
閱讀次數:1852637次
這11個一層農村自建房別墅火爆了朋友圈!我最喜歡戶型十!你呢
閱讀次數:750268次
農村6萬元建一層小別墅圖,你敢相信嗎
閱讀次數:567686次
農村5萬塊就能自建房,6套普通房子設計圖分享,你沒看錯!
閱讀次數:419410次
8套農村漂亮三間平房圖片,非常適合在農村修建!
閱讀次數:411197次
農村自建房化糞池怎么做?附方案及施工過程
閱讀次數:391783次
農村一層三間平房設計圖,告別土氣養老房,讓人忍不住點贊
閱讀次數:350581次
新農村二層樓房圖片造價12萬,挑一套回家建房吧!
閱讀次數:349126次
