
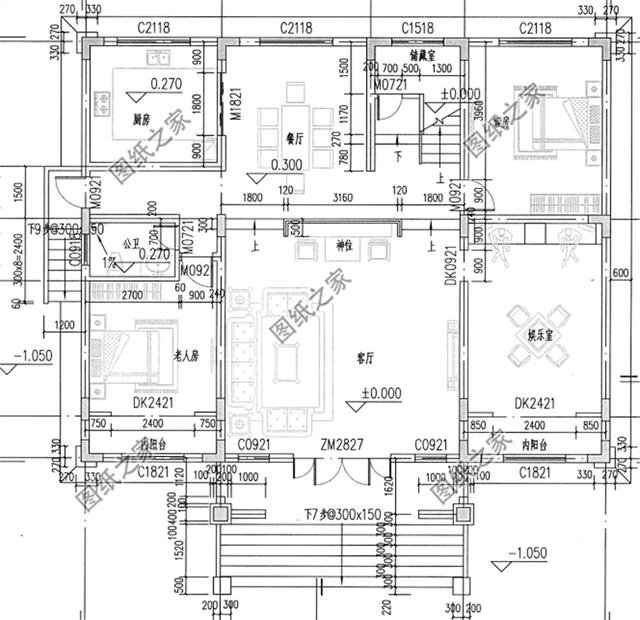
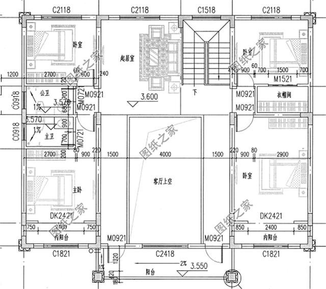
別墅一:農村二層別墅圖片及全套建筑設計圖紙最美二層樓房別墅圖片大全及全套建筑設計圖紙,該戶型造型簡約好看,外墻采用仿石材瓷磚裝飾,兩種不同顏色瓷磚搭配,給人一種自然、復古又清新的感覺,在村里這么蓋上一棟肯定是獨一無二的,而且非常有特色。 ![]() 占地面積:11.0m*12.9m,140平方米左右; 建筑層高:二層; 建筑高度:8.68米(含屋頂); ![]() ![]() 設計功能: 一層戶型:客廳、廚房、餐廳、臥室、衛生間; 二層戶型:客廳、臥室x2、陽光房、衛生間、陽臺; 別墅二:新農村自建二層樓房戶型圖設計圖新農村自建二層樓房戶型設計圖,一層有文化石裝飾,搭配上二層清新低調的白色+藍色屋頂,給人營造出溫馨寧靜的居住感。 ![]() 占地面積:13.3m*11m,125.762平方米; 建筑層高:二層; 建筑高度:9.87米(含屋頂); ![]() ![]() 設計功能: 一層戶型:玄關、客廳、走廊、廚房、餐廳、臥室(帶衛生間)、臥室、衛生間; 二層戶型:起居室、臥室(帶衛生間)x2、臥室x2、娛樂室、陽臺; 別墅三:客廳中空復式二層別墅設計圖本戶型為客廳中空復式二層別墅設計圖,歐式風格外觀,棕紅色的坡屋頂搭配米色的外墻,整體呈現一種和諧美,濃濃的歐式風情呼之欲出。 ![]() 占地面積:15.0m*12.0m,180平方米左右; 建筑層高:二層; 建筑高度:10.26米(含屋頂); ![]() ![]() 設計功能: 一層別墅戶型:客廳、廚房、餐廳、臥室x2、衛生間、娛樂室(功能自定義)、儲藏間; 二層別墅戶型:客廳上空、起居室、主臥(帶衛生間)、臥室x4、衣帽間、衛生間、陽臺x3; 以上就是農村漂亮的小洋樓圖片,還想看哪款,歡迎下方留言。
圖紙之家-專注農村別墅/自建房設計18年,集合國內200余位經驗豐富的設計師,被評為口碑最好的農村建筑設計公司! |

150平米經典二層中式別墅設計圖 ,現代中式相結合
占地:154平方米左右
精致簡歐一層別墅設計圖,經典大氣百看不厭
占地:139.57平方米
農村蓋房三層自建別墅設計圖紙,11米乘12米戶型方案
占地:132.55平方米
辦公居住共用的一層別墅設計圖,簡約優雅,精致生活新體驗
占地:265.3平方米
經典三層別墅設計圖,時尚典雅美觀大氣,新農村自建的理想之選
占地:119.45平方米
20萬農村自建三層別墅設計圖,外觀美觀,戶型實用
占地:105平方米
兩層15萬農村自建房設計圖,農村蓋房設計大全圖
占地:130平方米
帶地下車庫的三層別墅設計圖,160平復式戶型
占地:159.03平方米
2026最新款獨棟中西雙餐廳三層別墅設計圖,精巧實用好看不貴
占地:226.12平方米
130多平方米新農村三層別墅建筑設計圖及效果圖
占地:133平方米左右
150平方米農村二層房屋建筑設計圖,15.2x9.4米
占地:148平方米
開間14米!農村養老一層別墅神戶型,爸媽住得安心,施工隊狂贊太
占地:160.86平方米
新款農村三層雙拼聯體別墅戶型圖,客廳中空,單戶120平米左右
占地:240平方米
二層復式小洋樓設計圖,外觀精致,戶型合理
占地:115平方米
新農村中式三層四合院別墅設計戶型圖,農村自建四合院效果圖
占地:多種戶型
三間三層樓房設計圖紙,復試的設計,漂亮的一塌糊涂
占地:175平方米
現代風平屋頂一層自建房設計,經濟時尚
占地:147.17平方米
小戶型經濟農村雙拼自建房別墅設計圖紙,二層簡約造價低
占地:138平方米
新農村復試兩層半樓房設計圖,帶大露臺,簡單經濟實用大氣
占地:190平方米
新農村小開間三層樓房設計圖,占地100平米左右
占地:多種戶型
推薦:10套新農村自建房設計圖,2026年最新設計
閱讀次數:4825737次
100套鄉村別墅圖片大全,2026年最新設計
閱讀次數:2492203次
6款農村蓋一層平房的設計圖,10萬元就能建起來
閱讀次數:1852637次
這11個一層農村自建房別墅火爆了朋友圈!我最喜歡戶型十!你呢
閱讀次數:750268次
農村6萬元建一層小別墅圖,你敢相信嗎
閱讀次數:567686次
農村5萬塊就能自建房,6套普通房子設計圖分享,你沒看錯!
閱讀次數:419410次
8套農村漂亮三間平房圖片,非常適合在農村修建!
閱讀次數:411197次
農村自建房化糞池怎么做?附方案及施工過程
閱讀次數:391783次
農村一層三間平房設計圖,告別土氣養老房,讓人忍不住點贊
閱讀次數:350581次
新農村二層樓房圖片造價12萬,挑一套回家建房吧!
閱讀次數:349126次
