
|
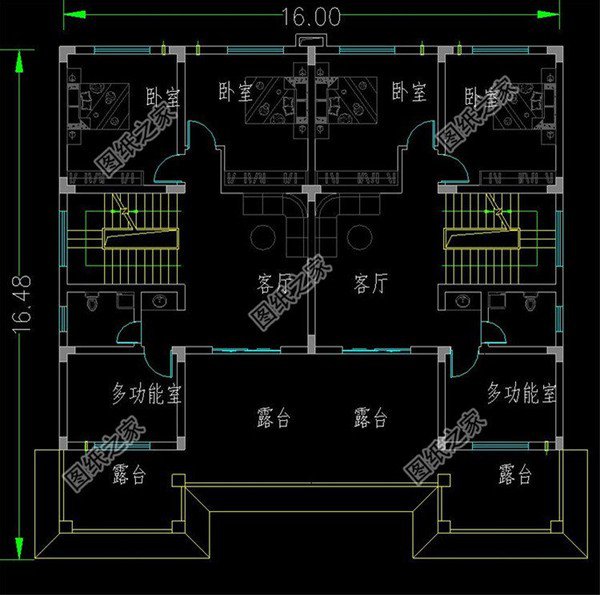
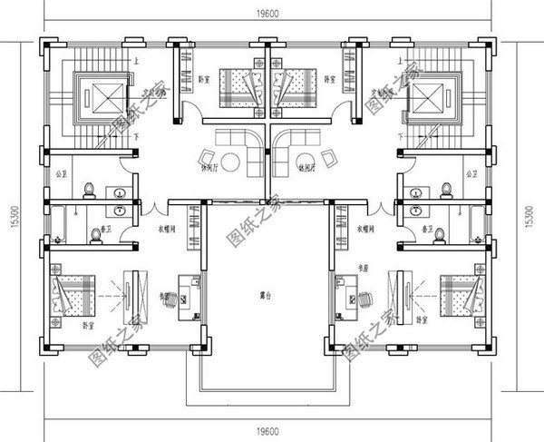
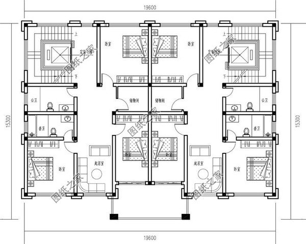
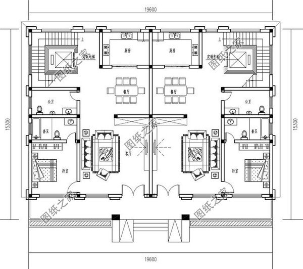
若是家中兄弟姐妹多,如何建房才能滿足大家的居住需求?來一棟雙拼戶型即可!那就來設計一份專屬自家的雙拼戶型圖吧,風格、外觀選家人喜歡的,有專業圖紙做參考,還怕建不出好房子?今天小編就推薦三款240平米左右的雙拼別墅設計圖以及戶型圖,來看看吧! 第一款:現代風格農村兄弟自建三層雙拼別墅設計圖以及戶型圖,漂亮大氣![]() ![]() ![]() 外墻采用米色系墻磚裝飾搭配藍色坡屋頂,以中間隔墻為軸中心,左右兩邊的對稱結構設計十分獨特,吸引人的眼球。每戶每層均設計有2個衛生間,三層露臺增加外觀的美感,老虎窗設計增加室內空間利用率,同時還能為室內增加采光。 占地面積:19.6m*15.3m,264平方米左右,單戶132平左右; 建筑層高:三層; 建筑高度:13.42米(含屋頂); 設計功能: 一層:客廳、餐廳、廚房、臥室(帶衛生間)、衛生間、電梯; 二層:起居室、臥室(帶衛生間)、臥室x2、儲物間、衛生間、陽臺、電梯; 三層:休閑廳、臥室(帶衛生間書房衣帽間)、臥室、衛生間、露臺、電梯 ![]() ![]() ![]() 第二款:面寬20多米農村二層新中式雙拼別墅設計圖以及戶型圖,外觀溫馨時尚![]() 室內布局沒的說!別墅外部使用黃色噴漆與棕色文化石裝飾,比較符合中國傳統的審美,整體比較方正但是不失美觀,傳統的中式風格含蓄優雅,進門寬敞的客廳與餐廳相連,一層的臥室帶有獨立的衛生間,比較適合腿腳不便的老人居住。廚房單獨隔離有效的減少油煙的逸散。第二層三間臥室左下角的那間有獨立的衛生間可以設置為主臥,茶室臨近大露臺通風、采光比較好。露臺也能夠滿足日常晾曬需求,也是和兩家人交流、增進感情的好地方。 占地面積:20.76m*12.76m,246.66平方米左右,單戶123.33平方米左右; 建筑層高:二層 建筑高度:9.74米 設計功能: 一層房屋戶型:客廳、廚房、餐廳、臥室(帶衛生間)、臥室、衛生間; 二層房屋戶型:茶室、臥室(帶衛生間)、臥室x2、衛生間、露臺 ![]() ![]() 第三款:農村新中式三層雙拼別墅設計圖以及戶型圖,外觀中式大氣風格![]() 倆兄弟可以這樣建房子,雙拼戶型選的妙,兄弟和睦生活好。雙拼別墅一直是兄弟建房的首選,備受農村自建房者的喜愛,從建筑設計的角度上來說,2戶建成一棟,建筑的展示面寬了,造型更顯大氣,造價還經濟。本款雙拼造型比例極好,外墻材質感十足,色彩也十分素雅大方。富有層次,內部功能布局合理,給人良好的居住體驗。 占地面積:16m*16.48m,235.26平方米,單戶117.63平; 建筑層高:三層; 建筑高度:12.508米(含屋頂); 設計功能: 一層:玄關、客廳、餐廳、廚房、烤火房、衛生間; 二層:客廳、茶室、臥室x3、衛生間、露臺(共用); 三層:客廳、臥室、衛生間、露臺、陽臺; ![]() ![]() ![]() 以上就是小編推薦的四款240平左右的雙拼別墅設計圖以及戶型圖,喜歡的給自家兄弟看看!年都過完了,該建房了。
圖紙之家-專注農村別墅/自建房設計18年,集合國內200余位經驗豐富的設計師,被評為口碑最好的農村建筑設計公司! |

新農村全套四層別墅設計圖紙占地面積:190平方米造價預算:42萬
占地:190平方米
2026二層農村新款別墅圖片及施工圖,新中式風格古典大氣
占地:200平方米
小占地二層徽派別墅設計圖,白墻黛瓦韻味十足,太氣派了
占地:89.6平方米
120平米二層別墅樓設計圖,簡約省錢也能建的漂亮
占地:121.74平方米
帶閣樓的一層半平房設計圖,比樓房還舒適,12米×13米
占地:170.1平方米
農村宅基地建房二層別墅設計圖,適合回鄉自建!
占地:137.5平方米
小型四合院二層別墅設計圖方案,對稱設計,頂層大露臺
占地:114平方米
一層農村自建房設計,背面不開窗,15乘10米,內部布局實用
占地:多戶型可選
四開間兩層別墅設計圖,農村自建住著舒適的好方案!
占地:187.04平方米
45萬新中式二層雙拼自建房別墅設計圖,平屋頂設計
占地:210平方米
歐式三層樓房設計圖,客廳中空,旋轉樓梯,帶土灶房
占地:206平方米
80平方米新農村三層房屋設計圖,新農村住宅圖紙精選
占地:80平方米
80-90平米二層經典小別墅房屋設計圖,左右對稱外觀
占地:88.46平方米
2026新農村三層雙拼房屋設計圖紙平面圖與效果圖,帶堂屋
占地:190平方米
155平方米自建二層CAD房屋設計圖紙及效果圖,13X12米
占地:156平方米
開間9到10米簡約別墅設計圖紙帶效果圖,全套別墅設計方案
占地:122平方米
新農村歐式時尚二層別墅設計圖紙,120平方米自建房
占地:多種戶型
四開間二層別墅設計圖,造型精美經典舒適,火爆全村的戶型
占地:150.882平方米
鄉村中式四合院二層別墅設計圖,中式韻味十足
占地:223平方米左右
新農村三層房屋設計圖紙大全,新農村住宅圖紙
占地:108平方米
推薦:10套新農村自建房設計圖,2026年最新設計
閱讀次數:4825737次
100套鄉村別墅圖片大全,2026年最新設計
閱讀次數:2492203次
6款農村蓋一層平房的設計圖,10萬元就能建起來
閱讀次數:1852637次
這11個一層農村自建房別墅火爆了朋友圈!我最喜歡戶型十!你呢
閱讀次數:750268次
農村6萬元建一層小別墅圖,你敢相信嗎
閱讀次數:567686次
農村5萬塊就能自建房,6套普通房子設計圖分享,你沒看錯!
閱讀次數:419410次
8套農村漂亮三間平房圖片,非常適合在農村修建!
閱讀次數:411197次
農村自建房化糞池怎么做?附方案及施工過程
閱讀次數:391783次
農村一層三間平房設計圖,告別土氣養老房,讓人忍不住點贊
閱讀次數:350581次
新農村二層樓房圖片造價12萬,挑一套回家建房吧!
閱讀次數:349126次
