
|
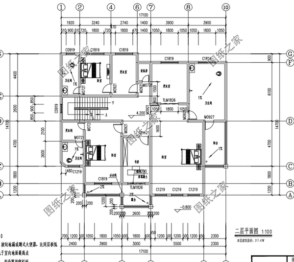
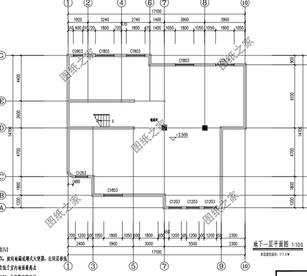
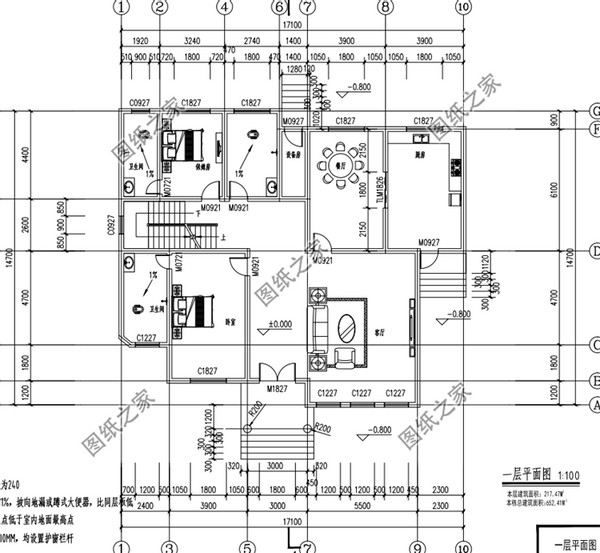
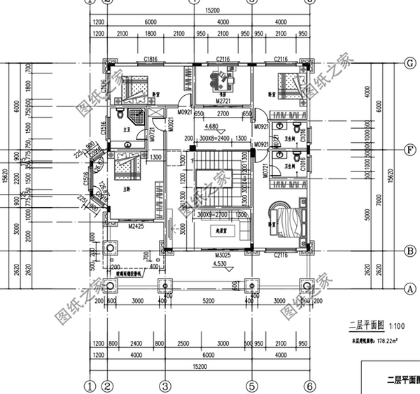
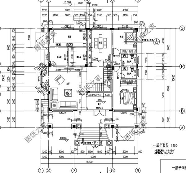
有一些朋友家里如果在地勢上有一定的高度差的話,在這種情況下大多數人會選擇做帶地下室的房子,這樣一來可以防潮,二來還可以存儲雜物,節省室內居住空間,還可以做車庫等。今天就給大家分享三款帶地下室二層別墅設計圖,外觀簡約大氣,室內布局合理,空間充足,要建房的朋友可以參考。 戶型一:農村二層別墅設計圖,占地236平米,大戶型設計圖紙介紹:本戶型占地236平米左右,外觀精致,內設挑空客廳,室內布局實用,不帶廚房餐廳設計戶型(餐廳廚房建在配房中)。多窗多陽臺的設計保證了室內的采光,二層主要為休息區域,客廳的設計更加促進家人感情,整間房子一共5間臥室,足夠一般家庭使用 占地面積:11.76m*11.46m,236.09平方米左右; 建筑層高:二層; 建筑高度:9.082米(含屋頂); 設計功能: 地下室戶型:儲藏室x3、衛生間 ; 一層戶型:客廳、帶衣帽間、臥室x3、衛生間; 二層戶型:客廳上空、小客廳、臥室x2、衛生間、露臺、陽臺; ![]() ![]() ![]() ![]() 戶型二:農村二層樓房設計圖,歐式風格,入戶設計有玄關圖紙介紹:本戶型占地190平米,大戶型設計,外觀奢華,歐式風格,入戶設有玄關,一層大窗設計既時尚又增加了房間的空間,二層設有四間臥室,房間數量很多,其中兩個是帶獨立衛生間的主臥,陽臺的設計既美觀又可以方便晾曬等,小客廳的設計完全符合農村的傳統,整個布局緊湊又不擁擠,適合農村自建。 占地面積:15.2m*15.6m,190平方米左右; 建筑層高:二層; 建筑高度:10.58米(含屋頂); 設計功能: 地下室:車庫、活動室、衛生間; 一層戶型:玄關、客廳、餐廳、廚房、衛生間、主臥(帶衛生間)、臥室; 二層戶型:起居室、主臥(帶衛生間)×2、臥室×2、書房、衛生間、、大露臺; ![]() ![]() ![]() ![]() 戶型三:農村二層別墅設計圖,帶地下室設計,占地220平米圖紙介紹:本戶型占地220平米,帶地下室設計,外觀大氣,室內布局合理,別墅戶型非常好,其中二層都是套間,方便居住,適合農村建造。 占地面積:17.1m*14.7m,220平方米左右; 建筑層高:二層; 建筑高度:11.6米(含屋頂); 設計功能: 地下室 一層戶型:客廳、餐廳、廚房、衛生間、主臥(帶衛生間)、保姆房(帶衛生間)、設備房、樓梯間; 二層戶型:臥室(帶更衣室、衛生間、陽臺)×2、臥室(帶更衣間、衛生間)、書房、露臺、設備房; ![]() ![]() ![]() ![]() 這三套戶型無論室內還是外觀都非常符合農村建造,喜歡千萬不要錯過。
圖紙之家-專注農村別墅/自建房設計18年,集合國內200余位經驗豐富的設計師,被評為口碑最好的農村建筑設計公司! |

農村27萬二層自建別墅設計圖,占地140平米左右,戶型極好
占地:140平方米
造價30萬左右的三層樓房設計圖,占地120平米左右
占地:120平方米
新農村三層豪華歐式別墅,復式高端自建房設計圖紙及效果圖
占地:多種戶型
新農村三層房屋cad建筑設計圖紙,磚混結構
占地:138平方米
130平方米新農村自建三層別墅設計施工圖,13x11米
占地:130平方米
新款的農村自建房子中式二層四合院別墅設計圖,占地300平左右
占地:304平方米
二層半房子設計圖及效果圖,客廳中空,南北通透
占地:160平方米
農村120平方房子設計圖,三層房屋設計圖精選
占地:120平方米
豪華大氣三層農村房屋設計圖,對稱的主體設計大氣恢宏
占地:240平方米
面寬10米左右的三層農村別墅設計案例,低調又奢華
占地:120平方米
鄉村兄弟二層小戶型雙拼房屋別墅設計圖,造價低,面積小
占地:多種戶型
開間12米的三層簡歐別墅設計圖,農村建房布局實用住的舒服
占地:108.15平方米
新農村二層半房屋設計圖紙及效果圖,別墅設計圖精選
占地:113平方米
新農村二層自建房設計圖帶外觀圖片,自建戶型大全
占地:160平方米
簡單現代平屋頂兩層四間自建樓房設計圖紙施工方案,簡潔又實用
占地:192平方米
超大氣的農村一層雙拼自建別墅設計方案,絕對讓人羨慕的“平房
占地:424平方米
165平方米三層雙拼農村房屋設計圖大全14x12
占地:168平方米
150平米農村兩層樓房設計圖,簡單大氣時尚
占地:150平方米
歐式兩層別墅設計圖及歐式效果圖,造價25萬左右
占地:150平方米
田園輕奢三層帶露臺的鄉村別墅設計圖紙,11x10米
占地:106.64平方米
推薦:10套新農村自建房設計圖,2026年最新設計
閱讀次數:4825737次
100套鄉村別墅圖片大全,2026年最新設計
閱讀次數:2492203次
6款農村蓋一層平房的設計圖,10萬元就能建起來
閱讀次數:1852637次
這11個一層農村自建房別墅火爆了朋友圈!我最喜歡戶型十!你呢
閱讀次數:750268次
農村6萬元建一層小別墅圖,你敢相信嗎
閱讀次數:567686次
農村5萬塊就能自建房,6套普通房子設計圖分享,你沒看錯!
閱讀次數:419410次
8套農村漂亮三間平房圖片,非常適合在農村修建!
閱讀次數:411197次
農村自建房化糞池怎么做?附方案及施工過程
閱讀次數:391783次
農村一層三間平房設計圖,告別土氣養老房,讓人忍不住點贊
閱讀次數:350581次
新農村二層樓房圖片造價12萬,挑一套回家建房吧!
閱讀次數:349126次
