
|
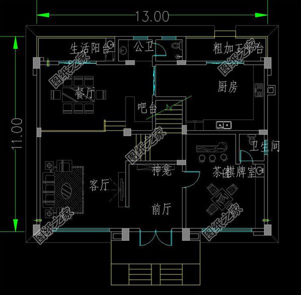
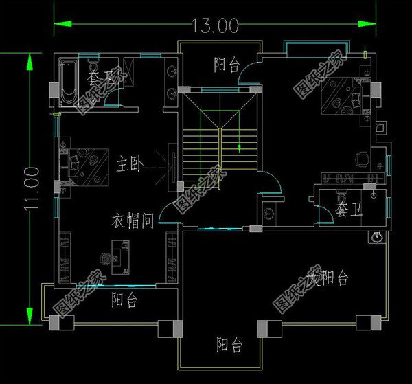
在農村都是自己建房子,不像城里那樣還要買,也節省造價。但是能建的好看的很少,一是沒有好的設計,二是資金缺少。現在發展水平都提高了,生活也好了,也都在城里掙夠了錢,所以大多數都會回到農村建一棟大別墅,一家人住一起。今天分享三款三層大別墅效果圖,高端大氣上檔次的設計,相信你看了肯定會喜歡。 款式一:農村三層樓房設計圖,占地124平米,客廳中空設計圖紙介紹:這款三層別墅占地120平米左右,客廳中空,外觀大氣,超大挑空玻璃窗增強室內采光,門口的羅馬柱非常精美;室內布局合理,功能齊全,帶有棋牌室和健身區。 占地面積:9.8m*12.8m,一層占地124平方米左右; 建筑層高:三層; 建筑高度:13.6米(含屋頂); 設計功能: 一 層:客廳、廚房、餐廳、老人房(帶衣帽間,衛生間)、棋牌室、衛生間; 二 層:客廳上空、起居室、臥室(帶衣帽間、衛生間)、臥室、書房、衛生間、陽臺; 三 層:健身區、主臥(帶衣帽間,書房,衛生間)、臥室(帶衣帽間、陽臺)、臥室(帶陽臺)、衛生間、大露臺、陽臺; ![]() ![]() ![]() ![]() 款式二:農村100平米兩間三層樓房設計圖,小戶型設計,簡約精致圖紙介紹:本戶型占地100平米左右,外觀看上去小巧精致,室內布局合理,居住起來非常舒適,共有六間臥室,大家庭也足夠居住,來客人還能留宿,再適合農村不過了。 占地面積:9.0m*11.4m,一層占地100平方米左右; 建筑層高:三層; 建筑高度:12.29米(含屋頂); 設計功能: 一 層:客廳、廚房、餐廳、臥室、衛生間; 二 層:客廳上空、客廳、臥室x3、衛生間、陽臺; 三 層:客廳、主臥(帶衛生間、衣帽間)、臥室、衛生間; ![]() ![]() ![]() ![]() 款式三:農村三層經典別墅設計圖,復式戶型,建好非常漂亮圖紙介紹:本戶型占地130平米左右,外觀經典不過時的款式,看上去非常大氣;室內布局合理,功能齊全,一層有茶室和棋牌室,二層帶陽臺,三層還有娛樂區,居住起來方便又舒適。 占地面積:13m*11m,130.4平方米左右; 建筑層高:三層; 建筑高度:13.725米(含屋頂); 設計功能: 一層戶型:前廳、神龕、客廳、餐廳、廚房(帶加工平臺)、茶室+棋牌室(帶衛生間)、衛生間、生活陽臺; 二層戶型:客廳上空、茶室、臥室(帶衛生間)X2、臥室、衛生間、陽臺; 三層戶型:娛樂區、臥室(帶衣帽間、衛生間)X2、陽臺、露臺; ![]() ![]() ![]() ![]() 不知道這三套別墅大家最喜歡哪一款呢?歡迎下方評論留言。
圖紙之家-專注農村別墅/自建房設計18年,集合國內200余位經驗豐富的設計師,被評為口碑最好的農村建筑設計公司! |

五開間農村豪華三層別墅設計圖,大格局大氣派,大家庭建房首選
占地:227.04平方米
農村四層雙拼別墅房屋設計圖,造型現代、大氣
占地:220平方米
兩戶250平方米農村豪華歐式三層兄弟雙拼別墅設計圖
占地:251平方米
農村二層中式戶型設計圖,造型古香古色,建好絕對是地標
占地:245.39平方米
農村60萬三層別墅新款式設計圖,外觀和實用性并駕齊驅
占地:170平方米
鄉村20萬內三層別墅房屋設計圖,面積適中、戶型經典
占地:100平方米
三層帶地下室+旋轉樓梯別墅設計圖紙,復式挑空客廳
占地:多種戶型
210平左右三層(兩層半)雙拼新農村別墅設計圖紙及外觀效果圖
占地:206.712平方米
160平方米經典鄉村二層房屋設計圖紙
占地:160平方米
13米開間的獨棟經濟型二層小別墅房屋設計圖,現代簡約
占地:150.39平方米
古典韻味的四層房屋設計圖,占地140平米左右,這樣的外觀配上紅
占地:140平方米
一層半中式合院別墅設計圖,帶配房,有庭有院有品位
占地:135平方米左右
150平農村三層歐式別墅設計圖紙,盡顯豪華與精致,讓人羨慕不已
占地:147.62平方米
2026新款農村四層別墅設計圖紙戶型圖,帶挑空客廳
占地:150平方米
240平方米新農村四合院兩層樓房施工設計圖紙帶外觀圖
占地:234平方米
16x14米三層雙拼別墅設計圖,外觀精致大氣內里實用,兄弟建房上
占地:217.28平方米
農村三層帶車庫、帶露臺別墅設計圖,經典自建別墅設計方案
占地:160平方米
二層復式小洋樓設計圖,外觀精致,戶型合理
占地:115平方米
新農村共用堂屋和樓梯的雙拼別墅設計圖紙,戶型布局空間利用率
占地:207平方米左右
南方北方新農村房屋設計圖紙(含效果圖),三層住宅設計圖紙
占地:164平方米
推薦:10套新農村自建房設計圖,2026年最新設計
閱讀次數:4825737次
100套鄉村別墅圖片大全,2026年最新設計
閱讀次數:2492203次
6款農村蓋一層平房的設計圖,10萬元就能建起來
閱讀次數:1852637次
這11個一層農村自建房別墅火爆了朋友圈!我最喜歡戶型十!你呢
閱讀次數:750268次
農村6萬元建一層小別墅圖,你敢相信嗎
閱讀次數:567686次
農村5萬塊就能自建房,6套普通房子設計圖分享,你沒看錯!
閱讀次數:419410次
8套農村漂亮三間平房圖片,非常適合在農村修建!
閱讀次數:411197次
農村自建房化糞池怎么做?附方案及施工過程
閱讀次數:391783次
農村一層三間平房設計圖,告別土氣養老房,讓人忍不住點贊
閱讀次數:350581次
新農村二層樓房圖片造價12萬,挑一套回家建房吧!
閱讀次數:349126次
