
|
農村房子以經濟實用為重要指標,畢竟普通農民也不可能花特別大的價錢去蓋房,一來自己的確沒有那么多的錢,第二是農村的審美還處于初步提升結算,想要房子奢華程度,但是也不是太過于重視;第三是農村主要就老人留守,蓋過于好看,反而容易招賊。 究其所有,還是以造價實用為準則,不如來欣賞這棟湖南實拍自建房,定會讓你刮目相看!
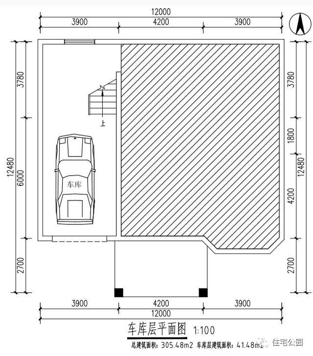
羅馬柱配弧形采光窗,大氣時尚,底層抬高1.5米做防潮層,正好做個半地下室車庫,上面錯層做棋牌室。
頂層海域哦閣樓層,方正又不失時尚的設計,外墻做多彩漆,偶一美觀,比起瓷磚施工更簡單。 種下好幾年的桂花樹雖然在建房的時候沒有被破壞,但是還是要移走,比如擋在車庫前可是非常不方便的。
平面布局:半地下室只設計了一個車庫,簡單實用,建筑面積305平方,加上儲物的閣樓層算一般面積,總建筑面積370多平方。 2017年6月開始建房,帶外裝漆包工包料1000每平,主體就花了38萬,門窗花 2.8萬。
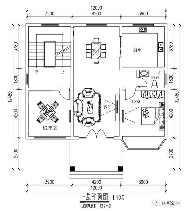
一層布局也是簡單實用,錯層的棋牌室,入戶客廳與餐廳開放連接,主要是方便家里辦酒席。
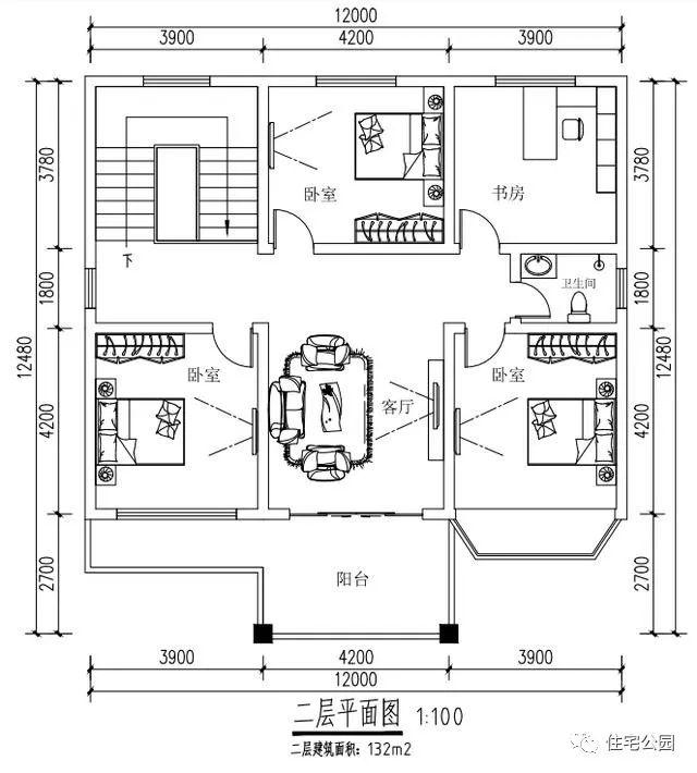
二層還設置了客廳,這才是真正的會客廳,兩層4臥室,也可以加到5臥室,可滿足農村大家庭的居住需求。
40萬建一棟這樣的農村別墅,你們覺得劃算嗎? 圖紙之家-專注農村別墅/自建房設計18年,集合國內200余位經驗豐富的設計師,被評為口碑最好的農村建筑設計公司! |

2026二層農村新款別墅戶型圖,占地不到110平米
占地:110平方米
三層新農村自建小型別墅設計圖及效果圖,三間三層樓房戶型
占地:114平方米
帶堂屋二層小別墅設計圖紙帶外觀圖,13.6米x9米
占地:122.4平方米
農村自建三間三層樓房設計圖,帶露臺,經典實用
占地:135平方米
最好看大氣的豪華三層樓房設計圖,客廳中空,旋轉樓梯
占地:340平方米
農村自建房就選它!一層新中式設計,日常居住需求全搞定
占地:128.45平方米
二層氣質現代小洋樓設計圖,堪比城市別墅,全村最美沒商量
占地:121.07
門廳共用二層歐式兄弟雙拼別墅圖片及施工圖
占地:340平方米
170平方米農村二層小別墅設計圖及效果圖
占地:170平方米
超大氣的農村一層雙拼自建別墅設計方案,絕對讓人羨慕的“平房
占地:424平方米
大戶型帶車庫的兩層農村自建房設計圖,施工簡單,戶型方正
占地:236平方米
120平米三層30萬別墅圖片大全及全套施工圖,外觀簡潔大方
占地:120平方米
超好看的現代簡約別墅設計圖,占地100平米,城里一套房都不換
占地:102.21平方米
農村二層住宅設計圖,大窗戶客廳,一起享受大面積采光的溫暖
占地:220平方米
二層半農村小別墅設計方案圖,南方設計圖精選
占地:82平方米
適合兄弟自建的二層雙拼別墅設計方案,帶效果圖
占地:180平方米
農村18萬元二層小樓圖,占地120平面,戶型緊湊合理
占地:120平方米
16x14米三層雙拼別墅設計圖,外觀精致大氣內里實用,兄弟建房上
占地:217.28平方米
帶架空層的三層農村別墅設計火了!雨季不怕返潮
占地:147.15平方米
農村七字形獨棟一層別墅設計圖,設計感十足
占地:274.51平方米
推薦:10套新農村自建房設計圖,2026年最新設計
閱讀次數:4825737次
100套鄉村別墅圖片大全,2026年最新設計
閱讀次數:2492203次
6款農村蓋一層平房的設計圖,10萬元就能建起來
閱讀次數:1852637次
這11個一層農村自建房別墅火爆了朋友圈!我最喜歡戶型十!你呢
閱讀次數:750268次
農村6萬元建一層小別墅圖,你敢相信嗎
閱讀次數:567686次
農村5萬塊就能自建房,6套普通房子設計圖分享,你沒看錯!
閱讀次數:419410次
8套農村漂亮三間平房圖片,非常適合在農村修建!
閱讀次數:411197次
農村自建房化糞池怎么做?附方案及施工過程
閱讀次數:391783次
農村一層三間平房設計圖,告別土氣養老房,讓人忍不住點贊
閱讀次數:350581次
新農村二層樓房圖片造價12萬,挑一套回家建房吧!
閱讀次數:349126次
