
|
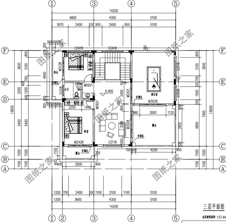
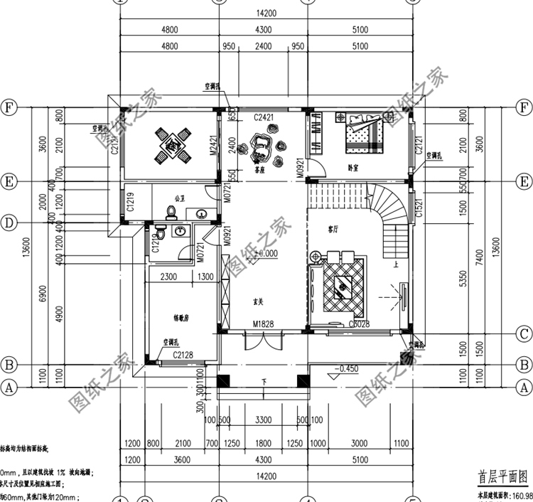
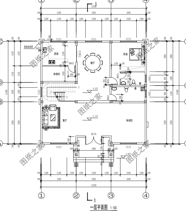
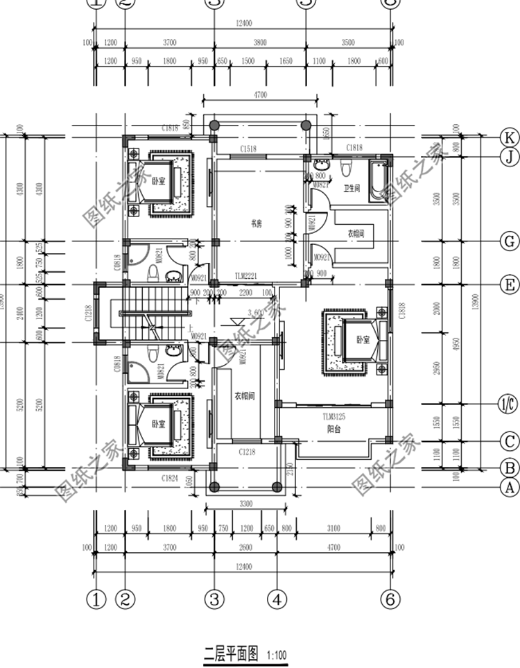
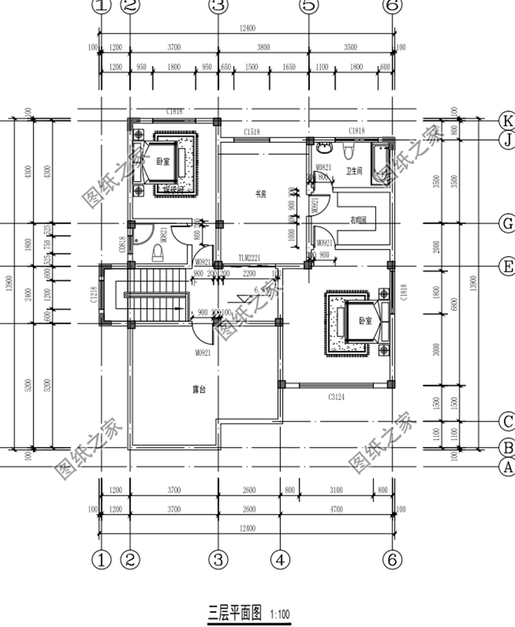
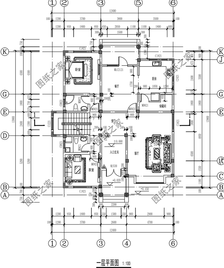
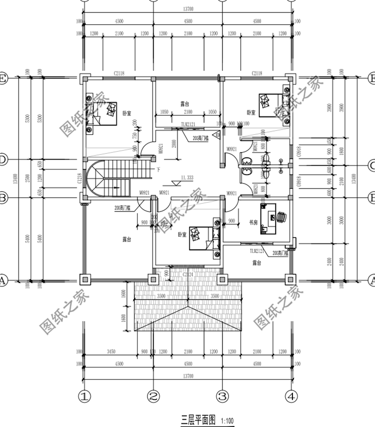
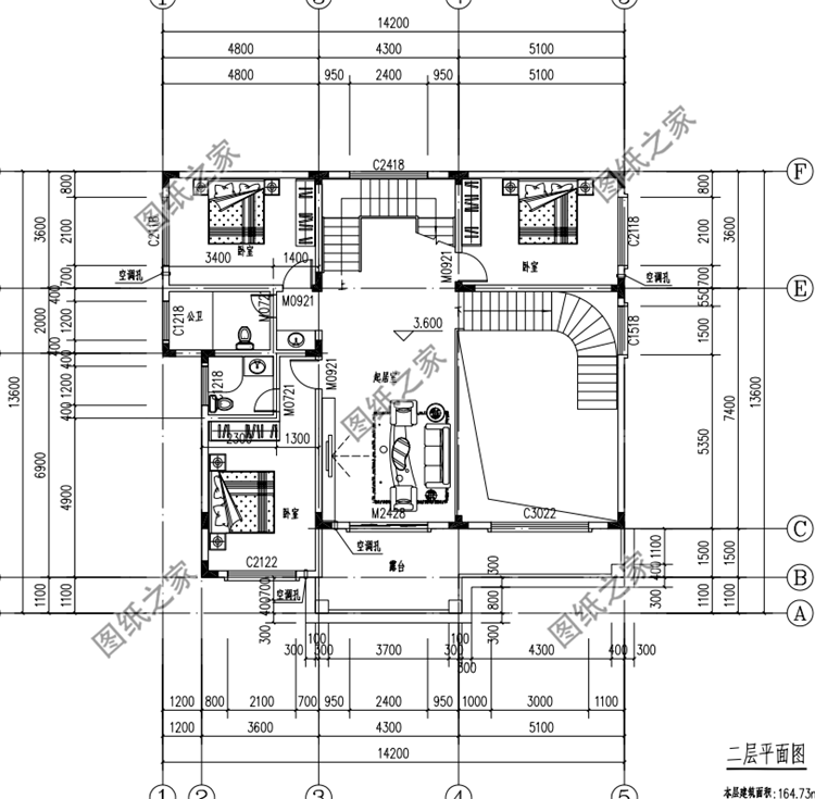
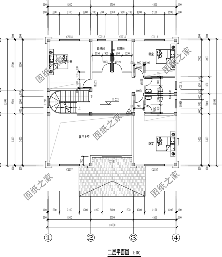
現在城里的生活成本是越來越高了,沒房子的交房租,有房子的還房貸,還有停車費、物業費、水電費,日常的買菜的生活費等等大大小小的費用加起來就是一筆不菲的開銷。但是在農村就不一樣了,建一棟樓房造價低,關鍵還能種菜,種花草。今天小編就給大家帶來三款占地160平米三層別墅設計圖,簡潔大方,趕快來一棟。 款式一:農村三層樓房設計圖,占地160平米,客廳中空設計圖紙介紹:本戶型占地160平方米左右,客廳中空設計,別墅外觀精美,配色新穎。室內布局合理,有眾多娛樂場所:棋牌室、茶座、練歌房、娛樂室等,適合農村居住。 占地面積:14.2m*13.6m,一層占地160平方米左右; 建筑層高:三層; 建筑高度:12.5米(含屋頂); 設計功能: 一 層:客廳、臥室、棋牌室、茶座、練歌房(帶衛生間)、衛生間; 二 層:客廳上空、臥室(帶衛生間)、臥室x2、衛生間、露臺; 三 層:起居室、臥室x2、娛樂室、衛生間、大露臺; ![]() ![]() ![]() ![]() 款式二:農村三層別墅設計圖,占地160平米,客廳中空設計圖紙介紹:這款三層別墅占地160平米,主體造價50萬左右,客廳中空設計,造型氣派戶型通透,符合現代審美。廚房中設有一個小的儲物間,方便儲存雜物,非常實用的一個設計功能。三樓設計有三個露臺,方便主人生活使用。 占地面積:13.7m*13.4m,一層占地160平方米左右; 建筑層高:三層; 建筑高度:13.2米(含屋頂); 設計功能: 一 層:客廳、廚房、餐廳、臥室(帶衛生間)、休閑區、衛生間、雜物間; 二 層:客廳上空、臥室(帶衛生間)、臥室x2、衛生間、儲藏間×2; 三 層:臥室(帶衛生間)、臥室x2、書房、衛生間、大露臺、小露臺; ![]() ![]() ![]() ![]() 款式三:農村三層別墅設計圖,占地160平米,外觀好看簡約圖紙介紹:這款新農村三層別墅設計占地160平左右,外觀好看簡約,造價經濟實惠,室內布局合理,三層布局清晰,一層給老人住,二層自己住,三層用來放東西和隔熱。 占地面積:12.4m*13.9m,一層占地160平方米左右; 建筑層高:三層; 建筑高度:12.8米(含屋頂); 設計功能: 一 層:客廳、廚房(含儲藏間)、餐廳、臥室(帶衛生間)、茶室、衛生間; 二 層:臥室(帶衣帽間,衛生間,書房)、臥室(帶衣帽間,衛生間)、臥室(帶衛生間); 三 層:臥室(帶衣帽間,衛生間,書房)、臥室(帶衛生間)、大露臺; ![]() ![]() ![]() ![]() 這么好看的房子不收藏還在等什么呢?喜歡哪款下方漂亮留言。
圖紙之家-專注農村別墅/自建房設計18年,集合國內200余位經驗豐富的設計師,被評為口碑最好的農村建筑設計公司! |

農村二層半帶露臺別墅圖片及設計圖,戶型方案比較經典
占地:123平方米
豪華新中式兩層半農村別墅設計圖,繁華之外,心之所向
占地:290.4平方米
農村一層房屋設計圖,自建一層房子圖紙推薦
占地:200平方米
可以傳家的新中式二層別墅,經典耐看,再過幾十年也不過時
占地:146.81平方米
一層農村自建房設計,背面不開窗,15乘10米,內部布局實用
占地:多戶型可選
50萬左右農村三層別墅設計圖紙,帶大露臺,外觀大氣
占地:150平方米
農村16萬一層平房小院設計圖,左右對稱布局好,南北方都能建
占地:195.9平方米
17X12米三層雙拼別墅自建房設計圖,歐式風格,戶型方正
占地:190平方米
農村現代三層建房子設計圖及圖片,平屋頂的設計
占地:150平方米
兩開間自建別墅設計圖,占地小造型簡約,不愁宅基地面寬小了
占地:118.4平方米
小戶型經濟農村雙拼自建房別墅設計圖紙,二層簡約造價低
占地:138平方米
農村三間兩層樓房設計圖,背面不開窗,氣勢上就勝人一籌
占地:153.7平方米
最美農村一層合院設計圖紙,自建一棟火遍十里八鄉
占地:190平方米左右
三層樓房設計圖紙含效果圖,外觀造型高低錯落,別致大方
占地:152.4平方米
高端大氣三層別墅設計圖,建好就是村里最靚的
占地:120平方米
120平米三層別墅房屋設計圖,帶車庫,帶閣樓
占地:120平方米
現代風格建房圖紙二層別墅設計方案,外觀百看不厭
占地:多戶型可選
現代三層農村房屋設計圖紙及效果圖,帶全套cad建筑圖
占地:95平方米
12x10米帶閣樓的農村一層半別墅設計圖,外觀洋氣
占地:110.54平方米
農村兄弟倆雙拼別墅房屋設計圖,外觀質樸
占地:195平方米
推薦:10套新農村自建房設計圖,2026年最新設計
閱讀次數:4825737次
100套鄉村別墅圖片大全,2026年最新設計
閱讀次數:2492203次
6款農村蓋一層平房的設計圖,10萬元就能建起來
閱讀次數:1852637次
這11個一層農村自建房別墅火爆了朋友圈!我最喜歡戶型十!你呢
閱讀次數:750268次
農村6萬元建一層小別墅圖,你敢相信嗎
閱讀次數:567686次
農村5萬塊就能自建房,6套普通房子設計圖分享,你沒看錯!
閱讀次數:419410次
8套農村漂亮三間平房圖片,非常適合在農村修建!
閱讀次數:411197次
農村自建房化糞池怎么做?附方案及施工過程
閱讀次數:391783次
農村一層三間平房設計圖,告別土氣養老房,讓人忍不住點贊
閱讀次數:350581次
新農村二層樓房圖片造價12萬,挑一套回家建房吧!
閱讀次數:349126次
