
|
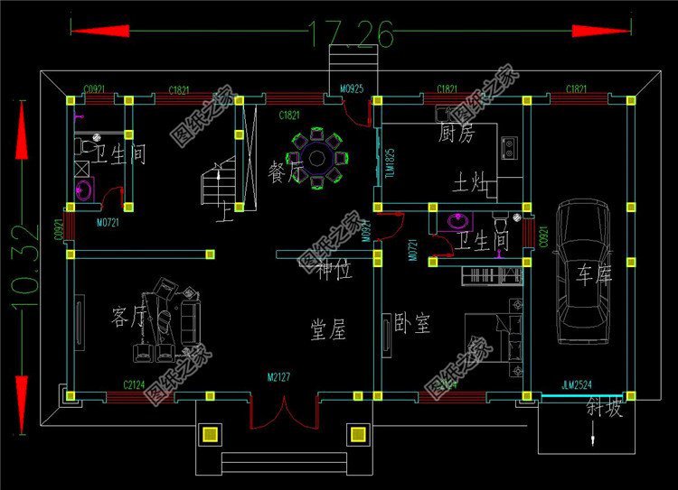
如今在農村建別墅可不像以前蓋樓房那樣似的了,以前蓋房子全村都一個樣,現在可是一家一個樣。隨著時代快速發展,人們審美要求更高了。所以現在建別墅不僅要追求外在的美觀,而且室內布局還要實用,今天就給大家推薦三款四開間三層別墅設計圖,保證你看了想立馬來一棟。 第一款:農村三層樓房設計圖,占地200平米左右,帶車庫和露臺設計圖紙介紹:本戶型占地200平米左右,外觀豪華大氣,帶車庫和露臺設計,一層帶車庫,茶室,神位,衣帽間。二三層帶兩個大露臺和兩個大陽臺,室內設計非常合理。 占地面積:16.5m*14.2m,207平方米左右; 建筑層高:三層; 建筑高度:14米(含屋頂); 設計功能: 一層戶型:洗衣房,餐廳,客廳,神位,茶室,廚房,衣帽間,臥室,衛生間,沖涼房,車庫; 二層戶型:臥室X4,衛生間X2,客廳,陽臺,露臺; 三層戶型:臥室X4,衛生間X2,客廳,陽臺,露臺; ![]() ![]() ![]() ![]() 第二款:農村三層別墅設計圖,面寬15米,簡單大氣圖紙介紹:本戶型占地137平米,面寬15米左右,外觀采用米黃色外墻和藍色屋頂的色彩組合,巧妙地實現一棟方形柱體建筑的大氣端莊。全屋一共布置九間臥室,四代同堂也足夠的居住空間,逢年過節時,親友相聚,也有可留宿的房間。南向大露臺,白天可以賞花喝茶,夜晚可以聽歌放松看星星。 占地面積:14.9m*10.7m,137.7平方米左右; 建筑層高:三層; 建筑高度:13.065米(含屋頂); 設計功能: 一層戶型:前廳、客廳、餐廳、廚房、臥室(帶衛生間)、臥室、衛生間; 二層戶型:起居室、臥室(帶衛生間)、臥室x3、衛生間、陽臺; 三層戶型:起居室、臥室x3、衛生間、陽臺; ![]() ![]() ![]() ![]() 第三款:農村三層樓房設計圖,占地163平米,帶車庫和堂屋設計圖紙介紹:本戶型占地163平米左右,帶堂屋和車庫設計,氣派又有檔次。外觀簡潔大方,色彩明快,大面積的開窗設計,讓別墅美觀的同時,也保證了室內采光和通風。室內功能分區合理,房間尺度設計適宜,采光通風良好,富有時代氣息。 占地面積:17.26m*10.32m,163.8平方米左右; 建筑層高:三層; 建筑高度:12.831米(含屋頂); 設計功能: 一層戶型:堂屋、神位、客廳、餐廳、廚房、臥室(帶衛生間)、衛生間、車庫; 二層戶型:書房、臥室x3、臥室(帶衛生間)、衛生間、陽臺、露臺; 三層戶型:健身房、臥室、臥室(帶衛生間)、衛生間、陽臺、露臺x2; ![]() ![]() ![]() ![]() 怎么樣?這三款戶型簡單大氣,讓人看了忍不住想趕快建一棟一樣的, 還不趕快收藏等什么呢?
圖紙之家-專注農村別墅/自建房設計18年,集合國內200余位經驗豐富的設計師,被評為口碑最好的農村建筑設計公司! |

現代風平屋頂一層自建房設計,經濟時尚
占地:147.17平方米
歐式兩層別墅設計圖及歐式效果圖,造價25萬左右
占地:150平方米
爆火農村養老房設計:16 米面寬一層戶型,自住養老全拿捏
占地:169.87平方米
130平四間二層小洋樓設計圖,含外觀圖片
占地:130平方米
120平農村三層自建房屋設計圖,旋轉樓梯復式別墅戶型方案
占地:119.23平方米
新中式風格二層住宅設計圖,農村自建房不土氣
占地:144.5平方米
二層農村兄弟雙拼別墅設計圖,一墻之隔互不干擾,鄰居看了都喜
占地:164.24平方米
帶堂屋設計一層5間平房新農村自建別墅效果圖全套施工圖
占地:198.41平方米
一層半房屋別墅設計圖,帶閣樓圖、帶露臺,外觀新穎時尚
占地:130平方米
帶車庫現代三層樓房設計圖,外觀效果圖時尚、美觀
占地:160平方米
五間二層別墅設計圖紙,樓梯設計的無比大氣
占地:300平方米
鄉下復式三層房子設計圖,帶堂屋,客廳中空,輕奢風格
占地:190平方米
農村三間四層樓房設計圖,農村輕奢型四層別墅
占地:160平方米
經典三層歐式造型別墅圖紙,功能房豐富,挑空客廳
占地:180平方米
二開間小戶型設計三層農村自建房方案,經濟型適合小宅基地建房
占地:107.02平方米
面寬13米二層鄉村自建別墅戶型圖,帶堂屋和露臺
占地:135.47平方米
簡單漂亮實用的三層自建房設計圖,帶露臺,占地170平方米
占地:170平方米
帶陽光房的二層簡歐別墅圖紙,戶型經典實用
占地:147.2平方米
戶型好的三層帶獨立車庫的樓房設計圖,含外觀效果圖
占地:148平方米
最新款農村三層自建房戶型設計圖及外觀圖片照片,鄉村蓋房精選
占地:112.56平方米
推薦:10套新農村自建房設計圖,2026年最新設計
閱讀次數:4825737次
100套鄉村別墅圖片大全,2026年最新設計
閱讀次數:2492203次
6款農村蓋一層平房的設計圖,10萬元就能建起來
閱讀次數:1852637次
這11個一層農村自建房別墅火爆了朋友圈!我最喜歡戶型十!你呢
閱讀次數:750268次
農村6萬元建一層小別墅圖,你敢相信嗎
閱讀次數:567686次
農村5萬塊就能自建房,6套普通房子設計圖分享,你沒看錯!
閱讀次數:419410次
8套農村漂亮三間平房圖片,非常適合在農村修建!
閱讀次數:411197次
農村自建房化糞池怎么做?附方案及施工過程
閱讀次數:391783次
農村一層三間平房設計圖,告別土氣養老房,讓人忍不住點贊
閱讀次數:350581次
新農村二層樓房圖片造價12萬,挑一套回家建房吧!
閱讀次數:349126次
