
|
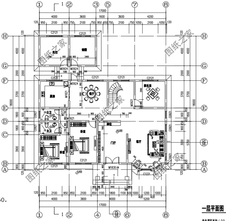
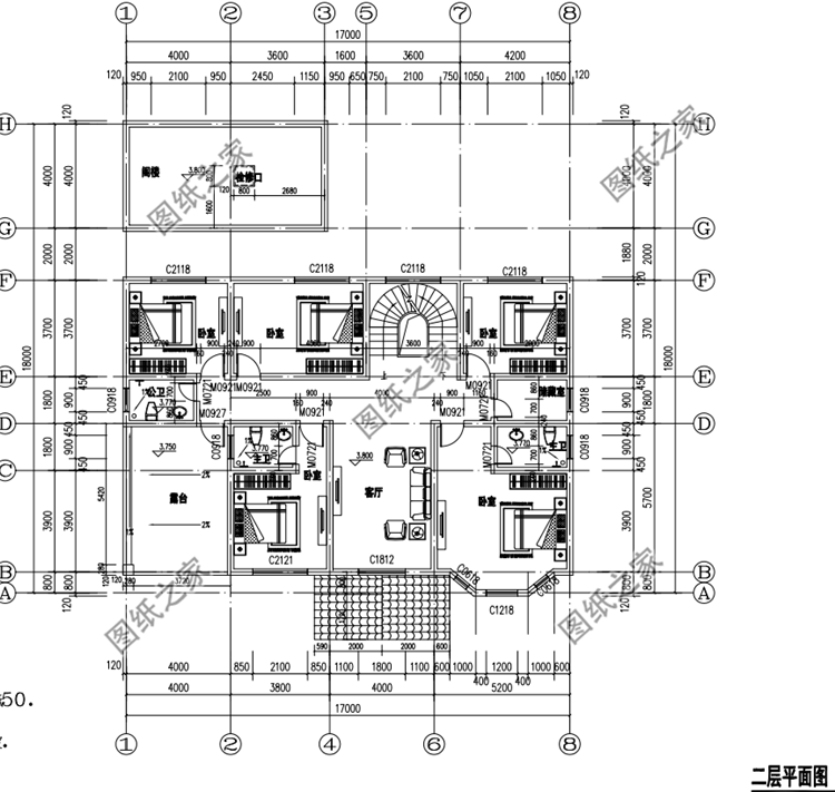
現在人們都喜歡返璞歸真,都喜歡農村老家的新鮮空氣以及環境,也有不少城里人羨慕在農村有地的朋友,因為他們可以按照自己喜歡的款式建房子,這是多少人羨慕不來的。其實農村有地的朋友可以考慮建棟小別墅和家人一起住,要說農村建房子最多的就是帶小配房的,可以當作儲物間,也可以作為獨立廚房設計。今天小編推薦的這三款帶小配房二層樓房設計圖,大家看著喜歡嗎? 方案一:農村二層別墅設計圖,大開間設計,歐式風格圖紙介紹:這款二層別墅占地195平米左右,超大戶型設計,歐式風格,帶獨立廚房設計。外觀大氣時尚,真石漆的整墻加灰色真石漆墻裙,非常豪華。一層客廳周邊為環形設計,一邊是入室玄關,一邊是旋轉樓梯樓,這樣能使客廳的空間大氣感進一步提升,帶獨立廚房,作為柴火房,冬天家人可以一起烤火聊天等;二層挑空的復式客廳設計,時尚大氣,空間非常開闊,大露臺視野極好,可觀景可曬衣。 占地面積:19.26m*12.66m,195.59平方米左右; 建筑層高:二層; 建筑高度:9.621米(含屋頂); 設計功能: 一層戶型:客廳、廚房、餐廳、臥室x3、衛生間; 二層戶型:客廳上空、起居室、書房、臥室、臥室(帶衛生間)x2、衛生間、陽臺、露臺; 悶頂戶型:臺球室(可自行安排區域)、衛生間、水箱; ![]() ![]() ![]() ![]() 方案二:農村二層別墅設計圖,中式風格,帶土灶房和娛樂室設計圖紙介紹:這款二層別墅占地180平米,中式風格,室內帶有土灶房,娛樂室和大露臺設計,非常氣派,建一棟讓全村人羨慕,而且露臺非常方便日常生活的晾曬,適合農村建造。 占地面積:17.6m*13.4m,180平方米左右; 建筑層高:二層; 建筑高度:9.225米(含屋頂); 設計功能: 一層戶型:客廳、餐廳、廚房、土灶房、衛生間、臥室×2、娛樂房、儲藏室; 二層戶型:起居室、臥室x4、衛生間、休閑區、陽臺、大露臺; ![]() ![]() ![]() ![]() 方案三:農村二層別墅設計圖,占地233平米,大戶型方案設計圖紙介紹:本戶型占地233平米左右,歐式風格設計,二樓帶露臺,窗戶都是采用大面積設計,通透采光,整棟房子看起來很大氣。屋頂采用坡面設計,外墻用黃色為主色,有文化石點綴,美感十足。俯視圖看起來非常氣派,屋頂的形狀設計獨特精湛,整棟房子散發著高貴氣質。 占地面積:17m*18m,233平方米; 建筑層高:二層; 建筑高度:10.3米(含屋頂); 設計功能: 一層戶型:廚房X2,儲藏間,餐廳,娛樂室,公衛,臥室(帶主衛),臥室,門廳,神位,客廳; 二層戶型:閣樓,檢修口,臥室X3,公衛,露臺,客廳,儲藏室,臥室(帶主衛)X2 ; ![]() ![]() ![]() ![]() 這三款戶型不知道大家喜不喜歡,趕快收藏建一棟吧。
圖紙之家-專注農村別墅/自建房設計18年,集合國內200余位經驗豐富的設計師,被評為口碑最好的農村建筑設計公司! |

一層農房別墅設計圖紙,140平方米,面寬15米
占地:140平方米
農村18萬元二層小樓圖紙,漂亮實用的農村二層樓房設計圖
占地:140平方米
方方正正的二層農村別墅設計圖,普通農村人都能建
占地:201.05平方米
頂配三拼三層別墅設計,獨立入戶+共享庭院,兄弟三家共享奢華
占地:367.44平方米
100平二層精致小別墅房屋設計圖,外觀精致、漂亮
占地:100平方米
四層(三層半)復式別墅設計圖片大全,歐式風格
占地:174平方米
新農村二層客廳挑高樓房設計圖,外觀歐式風格
占地:178平方米
農村一層中式三合院太香了!白墻黛瓦,有院有景超宜居
占地:364.72平方米
鄉村房屋改建三層房屋設計圖紙,農村樓房設計圖推薦
占地:90平方米
農村10萬元一層小別墅設計圖,農村一層自建房屋設計圖
占地:多種戶型
新中式農村自建三層別墅房屋施工,12x10米簡潔雅致
占地:121.77平方米
小青瓦一層中式小院三合院設計施工圖,白墻青瓦古色古香
占地:155.3平方米
農村40萬房子圖片外觀設計效果圖,帶地下室,外觀時尚大氣
占地:110平方米
新農村小開間三層樓房設計圖,占地100平米左右
占地:多種戶型
小戶型經濟農村雙拼自建房別墅設計圖紙,二層簡約造價低
占地:138平方米
農村20萬元二層小樓房設計圖,經典新農村自建房戶型
占地:120平方米
農村二層半兄弟共建房別墅設計圖,復式戶型帶車庫,面寬24米
占地:312平方米左右
2026年最新三層房屋設計圖紙,12米×11米,實用接地氣
占地:130平方米
高端三層獨棟歐式別墅效果圖,帶大衛生間,CAD全套施工設計圖
占地:158平方米
15萬左右一層農村自建房設計圖,一家住剛剛好
占地:131.33平方米
推薦:10套新農村自建房設計圖,2026年最新設計
閱讀次數:4825737次
100套鄉村別墅圖片大全,2026年最新設計
閱讀次數:2492203次
6款農村蓋一層平房的設計圖,10萬元就能建起來
閱讀次數:1852637次
這11個一層農村自建房別墅火爆了朋友圈!我最喜歡戶型十!你呢
閱讀次數:750268次
農村6萬元建一層小別墅圖,你敢相信嗎
閱讀次數:567686次
農村5萬塊就能自建房,6套普通房子設計圖分享,你沒看錯!
閱讀次數:419410次
8套農村漂亮三間平房圖片,非常適合在農村修建!
閱讀次數:411197次
農村自建房化糞池怎么做?附方案及施工過程
閱讀次數:391783次
農村一層三間平房設計圖,告別土氣養老房,讓人忍不住點贊
閱讀次數:350581次
新農村二層樓房圖片造價12萬,挑一套回家建房吧!
閱讀次數:349126次
