
|
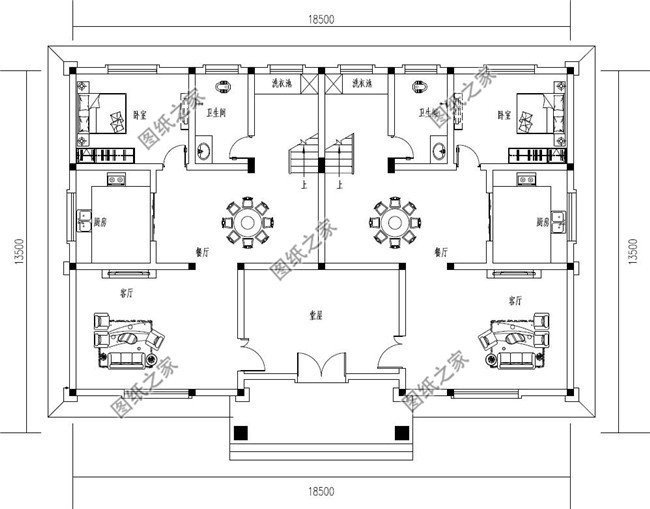
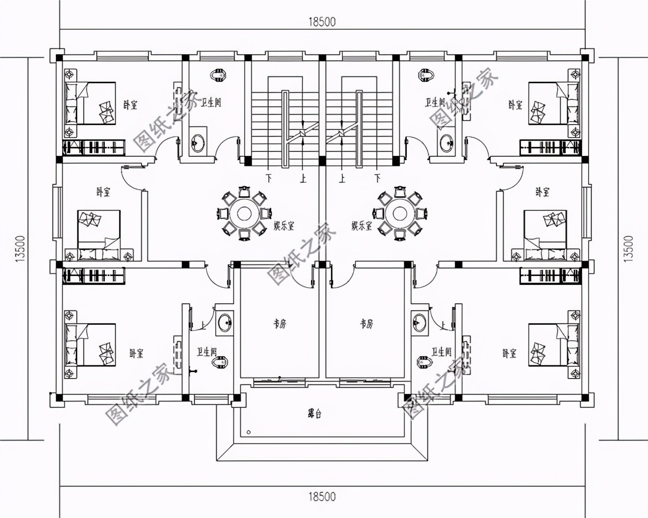
農村建房有個經驗,如果兄弟多蓋房也會普遍一起蓋,這樣省錢省工省時也省料。很多農村人不像城里人一樣就一個孩子,因此建房時不能偏心,最好都是蓋一模一樣的,再說兩棟一樣的房子矗立在村子里,別提有多氣派了!今天小編就推薦三款雙拼別墅設計圖以及戶型圖,第二款還帶車庫設計呢,一起來看看吧! 第一款:歐新三層農村雙拼別墅設計圖以及戶型圖,經典大氣![]() ![]() ![]() 外墻面用棕色文化石、黃色真石漆和浮雕裝飾,屋面配藍瓦。這款是比較周正的戶型,在我們農村建房子也是講究戶型周正的,布局上臥室數量能滿足基本生活需要,室外休閑和晾曬空間足夠,生活方便。 占地面積:18.5m*13.5m,226平方米左右,單戶113平左右; 建筑層高:三層; 建筑高度:12.55米(含屋頂); 設計功能: 一層:堂屋、客廳、餐廳、廚房、洗衣池、臥室、衛生間; 二層:書房、娛樂室、臥室(帶衛生間)、臥室x2、衛生間、露臺; 三層:娛樂室、書房、臥室x2、衛生間、涼亭; ![]() ![]() 第二款:帶車庫三層雙拼別墅設計圖以及戶型圖,外觀簡單大氣![]() ![]() ![]() 讓人一看就很舒服,無論是獨棟還是雙拼都十分吸睛,經濟實用。且內部的各個布局充分滿足了農村生活的需要,露臺等也充分的滿足了農村晾曬東西的需要,面積及造價適中,適合廣大農村地區建造。 占地面積:16.00m*15.80m,224平方米左右,單戶112平左右; 建筑層高:三層; 建筑高度:13.29米(含屋頂); 設計功能: 一層:客廳、餐廳、廚房、臥室、衛生間、車庫+雜物間; 二層:起居室、臥室(帶衛生間)、臥室(帶衛生間、衣帽間)、陽臺、露臺; 三層:臥室(帶衛生間)、書房、客房、榻榻米、衛生間、陽臺、露臺 ![]() ![]() ![]() 第三款:二層農村雙拼別別墅設計圖以及戶型圖,帶露臺設計![]() ![]() ![]() 單戶110平米。家有兄弟的就這樣建房,氣派經濟戶型好。現在家庭很多都是獨生子女,或者兩個孩子的,對兄弟姐妹之間的親情格外看重。家里兄弟姐妹感情好,建一棟雙拼再靠譜不過了。 占地面積:20.0m*11.8m,220平方米左右,單戶110平方米左右; 建筑層高:二層; 建筑高度:9.6米(含屋頂); 設計功能: 一層房屋戶型:客廳、廚房、餐廳、臥室×2、衛生間; 二層房屋戶型:客廳上空、起居室、臥室×3、書房、衛生間、露臺 ![]() ![]() 以上就是小編推薦的個戶110平米的雙拼別墅設計圖以及戶型圖,喜歡哪款評論區告訴我!每一款都有全套圖紙!
圖紙之家-專注農村別墅/自建房設計18年,集合國內200余位經驗豐富的設計師,被評為口碑最好的農村建筑設計公司! |

進深14米的二層小別墅設計圖,農村自建房好方案
占地:144平方米左右
小開間三層新中式小別墅設計圖,外觀圖優雅大氣,讓人心動!
占地:103.18平方米
新中式三層雙拼別墅設計圖及效果圖,中式大氣風格
占地:235.26平方米
10米×12米30萬以內農村建房三層豪華歐式別墅圖,處處顯品味
占地:120平方米
16米乘12米農村二層別墅設計圖,布局舒適寬敞、客廳挑空
占地:188.18平方米
12x10三層別墅設計圖,農村自建房推薦戶型
占地:120平方米
120平方三層房子設計圖,漂亮實用農村自建小別墅設計圖
占地:120平方米
農村三層歐式別墅豪宅戶型圖設計方案,復式中空客廳+旋轉樓梯
占地:134.84平方米
125平方米復式三層別墅房屋設計圖,房間多,采光好
占地:125平方米
二層農村雙拼別墅帶露臺設計圖,20×11.8米,單戶110平米
占地:220平方米
最火現代風三層半別墅設計圖,時尚簡約寬敞舒適
占地:169平方米
新款240平方米三層雙拼別墅設計圖,歐式兄弟雙拼圖片
占地:240平方米
挑空客廳戶型歐式二層別墅設計圖紙,高端大氣帶車庫
占地:236.09平方米
帶車位的鄉村二層別墅建筑結構設計圖,全套施工圖140平
占地:139.85平方米
農村自建二層半樓房效果圖,美觀大氣布局合理,很適合農村人自
占地:160.11平方米
歐式三層別墅設計圖,低調奢華,實用布局,好設計不容錯過
占地:134.1平方米
130平方米現代簡約農村兩層樓房施工設計圖紙帶外觀圖
占地:126平方米
經典農村三層樓房設計圖,10個不同尺寸戶型,各種戶型供您選擇
占地:多種
新中式農村三層房屋效果圖及施工圖,140平方米左右
占地:140平方米
二層歐式農村小別墅設計圖,9.5米乘13米,戶型好到鄰居求圖紙
占地:118.32平方米
推薦:10套新農村自建房設計圖,2026年最新設計
閱讀次數:4825737次
100套鄉村別墅圖片大全,2026年最新設計
閱讀次數:2492203次
6款農村蓋一層平房的設計圖,10萬元就能建起來
閱讀次數:1852637次
這11個一層農村自建房別墅火爆了朋友圈!我最喜歡戶型十!你呢
閱讀次數:750268次
農村6萬元建一層小別墅圖,你敢相信嗎
閱讀次數:567686次
農村5萬塊就能自建房,6套普通房子設計圖分享,你沒看錯!
閱讀次數:419410次
8套農村漂亮三間平房圖片,非常適合在農村修建!
閱讀次數:411197次
農村自建房化糞池怎么做?附方案及施工過程
閱讀次數:391783次
農村一層三間平房設計圖,告別土氣養老房,讓人忍不住點贊
閱讀次數:350581次
新農村二層樓房圖片造價12萬,挑一套回家建房吧!
閱讀次數:349126次
