
|
以前說起攀比,想起的便是金錢,汽車,工作,在城里買了幾套房等,而現在的攀比,跟以前是大不相同了,現在體現在農村自建房這方面,誰家建的好,那鐵定是全村的焦點,俗話說,別墅建的好,生活沒煩惱,還是有道理的,今天,小編就以二款農村別墅為例,為你講述不一樣的農村自建房! 農村別墅一: 基本信息 占地尺寸:12.2×10.2米 占地面積:124.5平方米 建筑面積:228平方米 結構類型:磚混結構 建筑高度:9.496米 主體造價:18萬左右
看到這樣的造價,是不是嚇一跳,18萬你只能在城里付個首付,但在農村,卻可以建出這樣美的農村自建房,外觀風格配色偏中式風,讓人很舒服。 一層平面圖: 內設堂屋、臥室、客廳、餐廳、廚房、儲物間、衛生間。有個入戶平臺,讓進門有個緩沖,農村經常會干農活,如果是一些推車,或者電瓶車放室內,有個斜坡,會更容易進入,衛生間也是干濕分離的很明顯。
二層平面圖: 內設3臥室、客 廳、衛生間、2露臺。 客廳肯定是要的,現在農村二層設計客廳已經是一件習以為常的事情了,一大一小露臺,小露臺私人享用在臥室內,大露臺,就可以大家一起聊天,娛樂。
農村別墅二: 基本信息 占地尺寸:15.8X8.8米 占地面積:129.4平方米 建筑面積:408平方米 結構類型:磚混結構 毛坯造價:32萬左右
小編為什么兩款別墅都帶有一點中式風格呢,當然是因為中式風格不過時了,木制的欄桿,中式風格明顯! 一層平面圖: 內設客廳、3臥室、2衛生間、車庫、廚房、餐廳。 占地面積不是很大,但內部的布局卻很完美,車庫有了,進門的玄關有了,餐廳也是很大,臥室就有3間,衛生間還干濕分離。
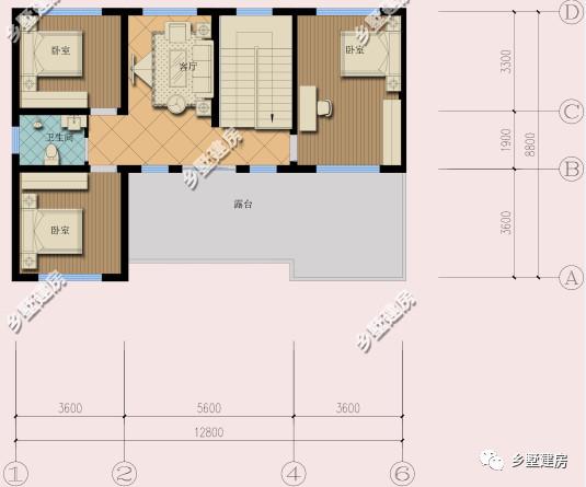
二層平面圖: 內設客廳、廚房、餐廳、3臥室、書房、露臺、衛生間。 在二樓設置廚房的也有少數,這戶就是,當然,如果你不想,可以自行設計成別的,這不沖突。
三層平面圖: 內設3臥室、客廳、衛生間、露臺。 主臥中還帶有小型學習空間,大的露臺可以娛樂,也可以家用。
這兩款美爆的農村別墅,你心動了嗎? 圖紙之家-專注農村別墅/自建房設計18年,集合國內200余位經驗豐富的設計師,被評為口碑最好的農村建筑設計公司! |

農村兩層新中式仿古四合院別墅戶型圖,小型占地不到200平
占地:193平方米
新款的農村自建房子中式二層四合院別墅設計圖,占地300平左右
占地:304平方米
中式徽派二層農村別墅設計圖,白墻黛瓦馬頭墻,永不過時
占地:171平方米
簡單大方二層小別墅設計圖,占地180平米,造型美觀,構造整齊有
占地:180平方米
155平方米新三層全套別墅設計資料,15x10米
占地:158平方米
農村二層別墅優選設計圖,戶型小巧精致,顏值與實用并存!
占地:95.25平方米
30萬左右的新農村自建三層別墅施工設計圖紙及效果圖
占地:148平方米
農村自建三間三層樓房設計圖,帶露臺,經典實用
占地:135平方米
多臥室復式二層別墅房屋設計圖,含外觀效果圖
占地:175平方米
大氣的150平方米新中式三層別墅建筑圖及效果圖
占地:150平方米左右
五開間一層農村平房設計圖,200平米大戶型,五間臥房足夠用了
占地:200.7平方米
新農村四層房屋設計圖紙,高端大氣,占地150平方米
占地:150平方米
農村四間兩層別墅房屋設計圖,含外觀圖片
占地:160平方米
人氣最旺的二層半別墅設計圖紙,復式挑空二層半自建房
占地:122.679平方米
130平方米湖南二層復式自建房屋設計圖紙12x11米
占地:128平方米
150平歐式別墅房屋設計圖,外觀精美、氣派
占地:150平方米
面寬8米多的三層農村別墅設計圖,小開間宅基地推薦
占地:112.82平方米
2026年新款一層住宅別墅設計圖紙,中式風格漂亮極了
占地:207平方米
農村四層樓房設計圖,復式結構、客廳中空,外觀效果圖+全套圖
占地:130平方米
簡單實用新農村三層住宅房屋設計圖,時尚大氣,低調
占地:140平方米
推薦:10套新農村自建房設計圖,2026年最新設計
閱讀次數:4825737次
100套鄉村別墅圖片大全,2026年最新設計
閱讀次數:2492203次
6款農村蓋一層平房的設計圖,10萬元就能建起來
閱讀次數:1852637次
這11個一層農村自建房別墅火爆了朋友圈!我最喜歡戶型十!你呢
閱讀次數:750268次
農村6萬元建一層小別墅圖,你敢相信嗎
閱讀次數:567686次
農村5萬塊就能自建房,6套普通房子設計圖分享,你沒看錯!
閱讀次數:419410次
8套農村漂亮三間平房圖片,非常適合在農村修建!
閱讀次數:411197次
農村自建房化糞池怎么做?附方案及施工過程
閱讀次數:391783次
農村一層三間平房設計圖,告別土氣養老房,讓人忍不住點贊
閱讀次數:350581次
新農村二層樓房圖片造價12萬,挑一套回家建房吧!
閱讀次數:349126次
