
|
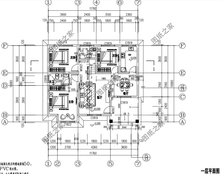
在農村建房子自古以來就是大事,建房之前要一家人反復商量,在建房之前一定要多看看別人的自建房戶型設計,聽聽別人的建房經驗,盡量讓自己從設計,施工,資金上充分準備好,建造一棟舒適,實用,氣派的房子。今天分享給大家三套鄉墅建房別墅設計圖,適合給父母建一棟作為養老房,您可以挑一套您喜歡的。 款式一:農村一層平房設計圖,占地100平米左右,外觀時尚美觀圖紙介紹:這款一層別墅占地100平左右,外觀時尚大氣,室內布局也很實用,造價經濟,施工簡單,如果回老家給父母 占地面積:10.76m*10m,100平方米左右; 建筑層高:一層; 建筑高度:5.98米(含屋頂); 設計功能: 一層戶型:神位、客廳、餐廳、廚房、臥室x3、衛生間; ![]() ![]() ![]() ![]() 款式二:農村一層自建別墅設計圖,占地105平米,主體造價8萬左右圖紙介紹:這款一層平房占地105平米左右,主體造價8萬左右,外觀色彩采用藍色調,舒爽而沉靜。純凈的藍色屋面瓦,仿佛與天空連接在一起。墻面米黃色的文化磚,質樸天然,搭配上素色的凸窗、立柱,更顯清新素雅。戶型室內將客廳、餐廳、廚房連通設計,更顯寬敞通暢。共設4個臥室,足以滿足使用需求。再結合精致的老虎窗,整體外觀顯得小巧精致。 ![]() ![]() 款式三:農村一層自建房設計圖,占地110平米左右,適合作為養老房設計圖紙介紹:這款一層自建房占地110平米左右,主體預算15萬左右,戶型簡單造價低,非常適合建給父母做養老別墅。 占地面積:11.76m*10.06m,106平方米左右; 建筑層高:一層; 建筑高度:6.225米(含屋頂); 設計功能:客廳、餐廳、廚房、主臥(帶衛生間)、臥室×2、衛生間×; ![]() ![]() ![]() ![]() 喜歡平房的朋友可以參考這三款戶型,記得收藏。
圖紙之家-專注農村別墅/自建房設計18年,集合國內200余位經驗豐富的設計師,被評為口碑最好的農村建筑設計公司! |

農家中式小院一層三合院自建房,布局寬敞大氣又舒適
占地:186.07平方米
農村17萬元一層自建別墅設計圖,外觀簡潔,戶型方正
占地:163平方米
門廳共用二層歐式兄弟雙拼別墅圖片及施工圖
占地:340平方米
面寬14.5米三層獨棟別墅設計圖,經典設計,大氣之作
占地:123.85平方米
80多平米二層小型自建房設計圖,經濟舒適別具一格
占地:84.48平方米
120平米簡單實用型農村小別墅設計圖,二層屋頂為全露臺,小開間
占地:120平方米
農村超級好看的現代風格兩層小樓圖,清新優雅
占地:多種戶型
14米×10米農村二層小別墅自建房設計圖,外觀設計時尚美觀
占地:125平方米
面寬9米的三層農村自建房設計圖,適合鄉下地區自建
占地:121.94平方米
農村一層7字型平房別墅設計圖,“L”自行戶型,外觀簡約低調
占地:213.39平方米
180平方米農村二層別墅四合院建筑設計圖紙
占地:181平方米
120平方米農村一層平房別墅設計圖紙,含外觀效果圖
占地:125平方米
雙拼二層大別墅設計圖,大面寬小進深,讓兄弟永遠不分家
占地:207.15平方米
歐式兩層別墅樓房設計圖紙施工方案,高端豪華外觀圖片
占地:138平方米
鄉村典型自建房中式二層四合院別墅設計圖,左右對稱設計
占地:430平方米
高端大氣中式四合院二層別墅小樓設計圖,外觀古香古色
占地:213平方米
大氣豪華四層別墅設計圖紙,占地180平米左右
占地:180平方米
180平米農村二層小別墅設計圖,外觀漂亮,帶露臺
占地:180平方米
農村一層半房屋設計圖,帶外觀效果圖,外觀時尚
占地:155平方米
12x13米豪華三層農村別墅設計圖,宅基地上的貴族人生
占地:156平方米
推薦:10套新農村自建房設計圖,2026年最新設計
閱讀次數:4825737次
100套鄉村別墅圖片大全,2026年最新設計
閱讀次數:2492203次
6款農村蓋一層平房的設計圖,10萬元就能建起來
閱讀次數:1852637次
這11個一層農村自建房別墅火爆了朋友圈!我最喜歡戶型十!你呢
閱讀次數:750268次
農村6萬元建一層小別墅圖,你敢相信嗎
閱讀次數:567686次
農村5萬塊就能自建房,6套普通房子設計圖分享,你沒看錯!
閱讀次數:419410次
8套農村漂亮三間平房圖片,非常適合在農村修建!
閱讀次數:411197次
農村自建房化糞池怎么做?附方案及施工過程
閱讀次數:391783次
農村一層三間平房設計圖,告別土氣養老房,讓人忍不住點贊
閱讀次數:350581次
新農村二層樓房圖片造價12萬,挑一套回家建房吧!
閱讀次數:349126次
