
|
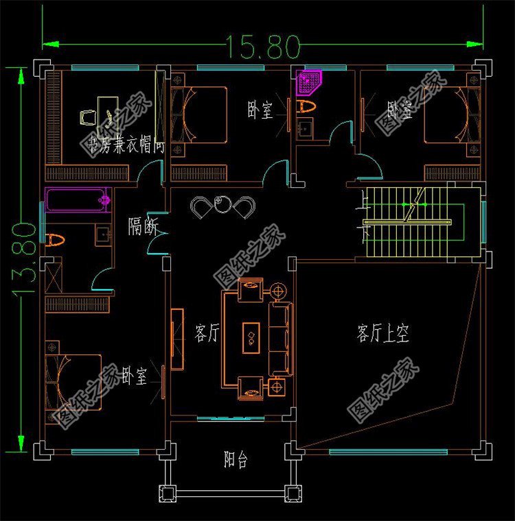
農村蓋別墅的話什么樣的戶型最受歡迎?那肯定是三層別墅設計了,在有限的占地面積上,蓋一棟三層別墅,最大化的利用好這個空間,就算家里人再多,也不怕沒有地方住! 今天就給大家分享三套新農村自建別墅設計圖,坡屋頂設計,還有超大的落地窗,這樣的房子,大家喜歡嗎? 方案一:農村三層別墅設計圖,占地160平米,含全套外觀效果圖圖紙介紹:這款三層別墅占地160平米,歐式風格,帶露臺設計,乳白色的真石漆外觀,顯得別墅簡單純美,美觀大方端莊溫雅。純色外墻搭配大面積落地窗,讓陽光照進生活的每個角落。藍色的坡面屋頂,更是瞬間加入一絲靈動美感。一層客廳面積非常合適,不大不小,待客居家都很足夠,呈現出家居溫馨的基調。二層三層共設有5間臥室,每層分別還設有一間主臥,臥室帶有獨立衛生間居住私密性較好,另5間臥室則可以作為親戚朋友拜訪時作休息之用。 占地面積:13.15m*11.8m,156平方米; 建筑層高:三層; 建筑高度:14.17米(含屋頂); 設計功能: 一層戶型:廚房,餐廳,儲藏空間,衛生間,臥室(帶主衛),客廳; 二層戶型:臥室X3,衛生間,客廳,陽臺,臥室(帶主衛); 三層戶型:臥室X2,衛生間,臥室(帶主衛),露臺; ![]() ![]() ![]() ![]() 方案二:農村歐式三層別墅設計圖,復式戶型,挑空客廳設計圖紙介紹:本戶型占地228平米,歐式風格,挑空客廳多露臺設計,外觀米色真石漆外墻搭配深藍色坡屋頂,加上層層錯落陽臺及露臺,立面造型更加連貫,設計感十足。入戶玄關和客廳做成一個整體,挑空的是客廳區域,一間帶獨衛的父母房和一間休閑棋牌室設計,廚房和餐廳的做法既方便又私密;主臥設計在二樓,設計成了一個套件的形式,有書房,衣帽間,內衛,工作休息,兩不誤,還能提高生活品質!三層有兩間臥室備用,配備室內娛樂區域和室外觀景露臺。 占地面積:15.8m*13.8m,228.34平方米左右; 建筑層高:三層; 建筑高度:14.3米(含屋頂); 設計功能: 一層戶型:玄關、客廳、餐廳、廚房、棋牌室、茶臺、臥室(帶衛生間)、衛生間; 二層戶型:客廳挑空、客廳、臥室(帶衛生間、書房兼衣帽間)、臥室x2、衛生間、陽臺; 三層戶型:健身室、洗衣房、KTV室、茶臺、書房兼衣帽間、臥室x2、衛生間、露臺x2; ![]() ![]() ![]() ![]() 方案三:農村三層別墅設計圖,占地143平米,帶地下室設計圖紙介紹:本戶型占地143平米,帶地下室設計,別墅屋頂采用灰色波形瓦,白色面磚裝飾墻面,基腳采用墨綠色面磚裝飾,金黃色仿石漆點綴落地窗、露臺、門廳,層次分明,精致的花瓶圍欄,豪宅范十足。一層廚房、餐廳規劃在后,隔離油煙。二層3個臥室,滿足家人日常休息,溫馨舒適;小客廳與陽臺相連,通風采光棒。三層臥室充裕,可作為客房,方便接待親友,臺寬敞,可打造成空中花園。 占地面積:12.2m*13.3m,143.29平方米左右; 建筑層高:三層; 建筑高度:13.9米(含屋頂); 設計功能: 地下室戶型:酒窖、影音室; 一層戶型:客廳、健身房、廚房、餐廳、臥室、衛生間; 二層戶型:客廳上空、小客廳、臥室(衛生間)x2、臥室、衛生間、陽臺; 三層戶型:小客廳、書房\臥室、臥室(衛生間)x2、臥室、露臺x2; ![]() ![]() ![]() ![]() ![]() 不知道這三款戶型大家喜歡哪一款?歡迎下方評論留言。
圖紙之家-專注農村別墅/自建房設計18年,集合國內200余位經驗豐富的設計師,被評為口碑最好的農村建筑設計公司! |

260平方米仿歐式二層別墅設計圖紙及效果圖,22X12米
占地:260平方米
農村一層中式三合院別墅設計圖紙,外觀漂亮極了
占地:195平方米
農村120平米兩層樓的房子設計圖,外觀新穎
占地:120平方米
廚房在前,簡約歐式二層農村自建別墅設計圖,戶型個性
占地:143.69平方米
新農村二層房屋設計圖紙(全套建筑施工圖紙+外觀效果圖)
占地:85平方米
120平方房子設計圖及外觀圖片,12x10經典設計
占地:120平方米
對稱一層農村養老別墅設計方案,室內戶型布局合理,14x12米
占地:141.46平方米
250平方米農村三層別墅設計圖紙及效果圖大全,18.3x15米
占地:247平方米
帶柴火房農村一層自建房設計圖,戶型布局接地氣
占地:126.29平方米
160平小開間大進深農村三層別墅設計圖紙
占地:158.73平方米
普通簡單的平屋頂二層房子設計,造價低施工簡單
占地:151.04平方米
小開間三層新中式小別墅設計圖,外觀圖優雅大氣,讓人心動!
占地:103.18平方米
面寬15米大氣的農村二層復式戶型別墅設計圖紙及外觀圖片
占地:173.28平方米
精致時尚一層雙拼別墅設計圖,造價實惠,起居互不打擾
占地:369.54平方米
農村簡易二層樓設計圖,外觀簡單漂亮,經典時尚
占地:140平方米
180平方米新農村自建二層小別墅設計圖及效果圖,15X13米
占地:183平方米
新式160平方米農村三層樓房設計圖,客廳中空
占地:160平方米
農村二層仿古尖屋頂別墅設計圖,外觀古樸耐看
占地:87平方米左右
新中式二層別墅設計圖,農村最適合建的兩層小樓,13×12米
占地:143平方米
簡單農村自建二層樓房設計圖,南北通透
占地:140平方米
推薦:10套新農村自建房設計圖,2026年最新設計
閱讀次數:4825737次
100套鄉村別墅圖片大全,2026年最新設計
閱讀次數:2492203次
6款農村蓋一層平房的設計圖,10萬元就能建起來
閱讀次數:1852637次
這11個一層農村自建房別墅火爆了朋友圈!我最喜歡戶型十!你呢
閱讀次數:750268次
農村6萬元建一層小別墅圖,你敢相信嗎
閱讀次數:567686次
農村5萬塊就能自建房,6套普通房子設計圖分享,你沒看錯!
閱讀次數:419410次
8套農村漂亮三間平房圖片,非常適合在農村修建!
閱讀次數:411197次
農村自建房化糞池怎么做?附方案及施工過程
閱讀次數:391783次
農村一層三間平房設計圖,告別土氣養老房,讓人忍不住點贊
閱讀次數:350581次
新農村二層樓房圖片造價12萬,挑一套回家建房吧!
閱讀次數:349126次
