
|
現如今,城市快節奏的生活,讓我們馬不停蹄的穿梭于鋼鐵水泥的城市之中,越來越多的人開始崇尚返璞歸真,追求淳樸、自然的生活。許多逃離農村在城市打拼的人們,不管城里有沒有房,又都回農村自建房了。現在建房,不比以前,以前人們建房不用規劃,不用圖紙,都是簡簡單單,一點樣式都沒有的普通樓房。現在人們自建房,都是要外觀看起來漂亮、現代,戶型得符合自己的需求,現在自建房,雖然外觀看起來比較復雜,但工藝和成本增加不了多少,許多造型都是用模具做出來的,這樣家家戶戶的民房各不相同,各有各的特殊,比原來農村好多了。下面小編分享5套現代三層的民房設計圖,后面再附幾套農村實拍建好的圖,看完城里人都羨慕不已。 第一套:120平方三層房子設計圖,漂亮實用農村自建小別墅設計圖占地面積:10.7m*11.2m,一層占地120平方米左右; 建筑層高:三層; 建筑高度:12.03米(含屋頂); 設計功能: 一 層:客廳、廚房、餐廳、臥室、娛樂室、衛生間; 二 層:客廳、休閑區、臥室x3、衛生間、陽臺; 三 層:臥室x3、衛生間、大露臺、陽臺;
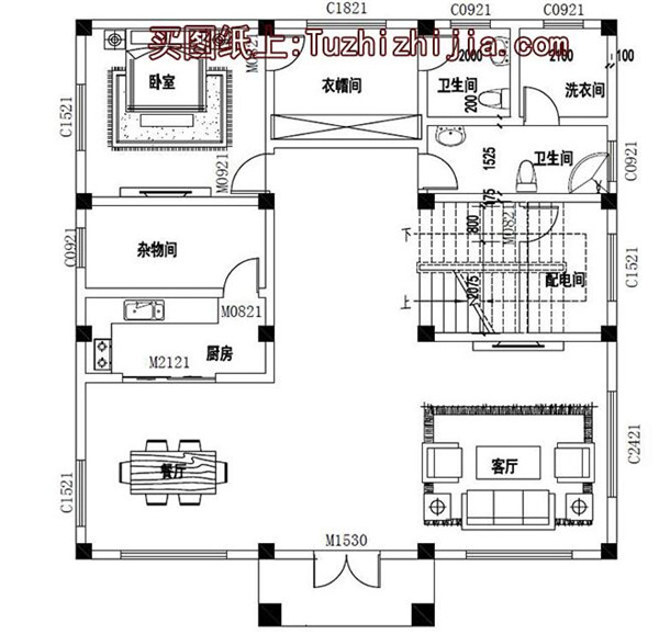
第二套:帶電梯農村建房三層小洋樓,樓中樓結構,帶露臺占地面積:10.5m*11.5m,一層占地110平方米左右; 建筑層高:三層; 建筑高度:13.01米(含屋頂); 設計功能: 一 層:客廳、餐廳、父母房(帶衛生間)、衛生間、健身房; 二 層:客廳上空、起居室、臥室(帶衛生間)、臥室、公衛; 三 層:起居室、臥室(帶衛生間)、臥室、公衛、露臺;
第三套:130平米左右三層農村小別墅,經典永不過時三層小洋樓占地面積:12.7m*11.3m,一層占地130平方米左右; 建筑層高:三層; 建筑高度:13.08米(含屋頂); 設計功能: 一 層:客廳、廚房、餐廳、臥室(帶衛生間)、臥室、衛生間; 二 層:客廳、、臥室x3、書房,衛生間×2、露臺; 三 層:客廳×2、臥室x3、衛生間、大露臺、陽臺;
第四套:12x12農村三層別墅設計圖,自建房屋推薦戶型占地面積:12.2m*12.2m,148平方米左右; 建筑層高:三層; 建筑高度:13.3米(含屋頂); 設計功能: 一 層:客廳、餐廳、廚房、雜物間、主臥(帶衣帽間和衛生間)、衛生間(帶洗衣間或洗澡間); 二 層:客廳、主臥(帶衣帽間和衛生間)、臥室、書房、衛生間(帶洗澡間或洗衣間)、陽臺; 三 層:起居室、主臥(帶衣帽間和衛生間)、臥室x2、衛生間(帶洗澡間或洗衣間)、大露臺;
第五套:三層農村自建別墅設計圖紙及效果圖,占地110平米,外觀精致占地面積:11.8m*10.6m,一層占地109平方米左右; 建筑層高:三層; 建筑高度:13.5米(含屋頂); 設計功能: 一 層:客廳、廚房、餐廳、臥室×2、衛生間; 二 層:起居室、臥室x3、衛生間、儲藏間、陽臺; 三 層:臥室x2、衛生間、儲藏間、大露臺、陽臺;
很多從農村出來的朋友,通過自己的打拼在城市買房置業,站穩了腳跟,在這里享受著豐富而方便的生活,但終究沒有家的感覺,始終惦記著家鄉的山水和年邁的父母,給自己或者父母建一棟別墅吧,讓老人老有所依,也給自己找個舒適、溫馨的落腳地。 附:幾套現代三層民房實拍圖:
圖紙之家-專注農村別墅/自建房設計18年,集合國內200余位經驗豐富的設計師,被評為口碑最好的農村建筑設計公司! |

2026新款新式農村50萬三層別墅圖片,帶地下室,美觀大氣
占地:130平方米左右
130平方米別墅設計圖紙(含外觀效果圖,)三層別墅設計方案
占地:135平方米
2026帶車庫三層雙拼別墅房屋設計圖,配色淡雅低調
占地:224平方米
經濟實用二層農村自建房設計圖,新中式風格12x11米
占地:114平方米
45萬新中式二層雙拼自建房別墅設計圖,平屋頂設計
占地:210平方米
地中海風格二層別墅設計圖及效果圖,外觀有格調
占地:125平方米
網紅農村一層小別墅設計圖,建一層的必看
占地:多戶型可選
小戶型三層現代風別墅設計圖,可別再說農村不適合現代風了
占地:92.34平方米
30萬以下的經典二層新農村別墅設計圖紙及效果圖,簡單大氣
占地:170平方米
16米X12米四開間二層別墅設計圖,造型美觀經濟實用
占地:198平方米
面寬17米農村一層平房設計圖,簡約空間敞亮
占地:169.393平方米
130平方米農村兩層別墅圖紙及效果圖12X11米
占地:133平方米
二層美式自建別墅設計圖,全套施工圖+外觀效果圖
占地:145平方米
一層平屋頂自建房圖,簡單而舒適,既省錢不說還不愁沒地曬糧食
占地:106平方米
造價便宜的二層雙拼自建房設計方圖案,一塊宅基地建兩戶
占地:224平方米
新農村雙拼別墅全套設計圖方案及效果圖,餐廳廚房獨立設計
占地:338.02平方米
新中式120平米農村20萬元二層小樓圖,外觀柔和而雅致
占地:120平方米
三層新農村140平方米房屋設計圖紙,全套施工圖及效果圖
占地:140平方米
農村二層住宅樓房設計圖紙,全套方案(施工圖+效果圖)
占地:113平方米
帶屋頂平臺的一層農村小別墅圖,有閣樓有露臺
占地:152平方米
推薦:10套新農村自建房設計圖,2026年最新設計
閱讀次數:4825737次
100套鄉村別墅圖片大全,2026年最新設計
閱讀次數:2492203次
6款農村蓋一層平房的設計圖,10萬元就能建起來
閱讀次數:1852637次
這11個一層農村自建房別墅火爆了朋友圈!我最喜歡戶型十!你呢
閱讀次數:750268次
農村6萬元建一層小別墅圖,你敢相信嗎
閱讀次數:567686次
農村5萬塊就能自建房,6套普通房子設計圖分享,你沒看錯!
閱讀次數:419410次
8套農村漂亮三間平房圖片,非常適合在農村修建!
閱讀次數:411197次
農村自建房化糞池怎么做?附方案及施工過程
閱讀次數:391783次
農村一層三間平房設計圖,告別土氣養老房,讓人忍不住點贊
閱讀次數:350581次
新農村二層樓房圖片造價12萬,挑一套回家建房吧!
閱讀次數:349126次
