
|
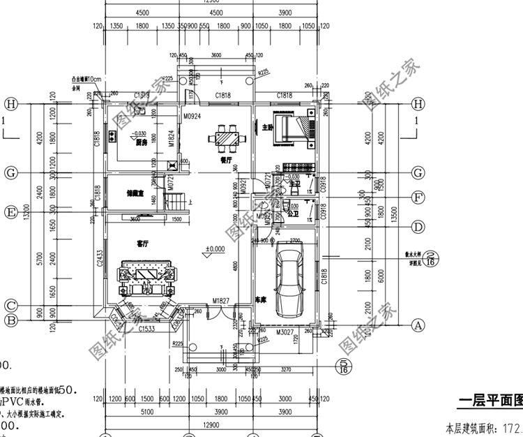
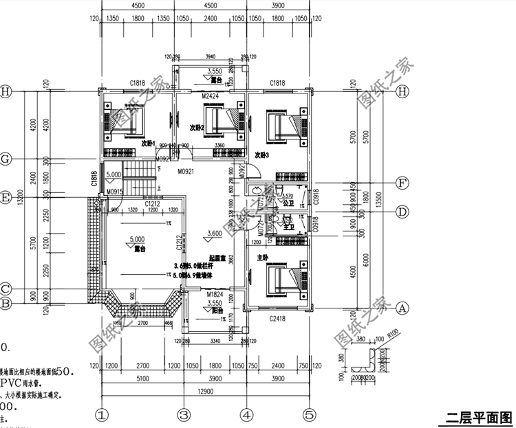
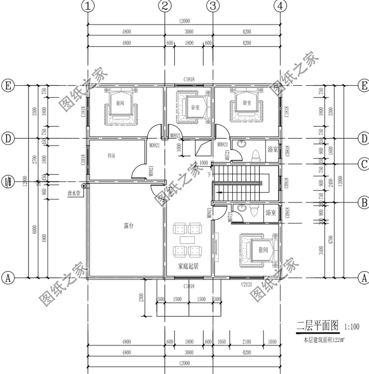
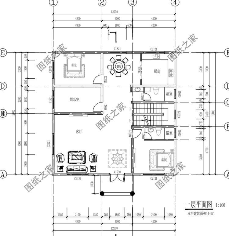
對于農村來講,每個年代的百姓都有不同的居住場所,在貧困時期,人們對于房子的基本要求就是能遮風擋雨就行了,后來生活條件好了之后,大家又建起了兩層或三層的樓房,那時候在村里 款式一:農村二層別墅設計圖,占地208平米,帶地下室設計圖紙介紹:這款二層別墅占地208平米,帶地下室設計,戶型方正實用,有酒窖、家庭影院等功能齊全,非常適合農村自建房。房體富有層次感,構造規整有力,線條流暢,顯得端正穩重。淡色外墻搭配黃色文化石以及藍紫色琉璃瓦尊貴典雅。別墅帶有設有地下室,用作休閑娛樂空間,多功能影音室的設計豐富了農村人的閑暇時光。客廳做了挑空處理并與餐廳相連,擴張了空間的面積,設計了旋轉樓梯,弧度優美造型大氣,提升了別墅的質感。 占地面積:17.5m*13.45m,208.98平方米左右; 建筑層高:二層; 建筑高度:9.82米(含屋頂); 設計功能: 地下室戶型:家庭影音、酒窖、棋牌室、儲物間、健身區; 一層戶型:玄關、客廳、餐廳、廚房、臥室(帶衛生間)、臥室(帶衛生間、衣帽間)、車庫; 二層戶型:臥室(帶衛生間、衣帽間、書房)x2、臥室(帶汗蒸房)、露臺x2、陽臺; ![]() ![]() ![]() ![]() 款式二:農村二層自建房設計圖,占地140平米,戶型大氣圖紙介紹:這款二層占地140平米,設計了6間臥室,滿足不同人口的家庭使用。農村的條件越來越好,農村都有錢了,生活好了之后,就想著建房子改善居住環境,像這種經濟實用又美觀大方的二層小別墅在農村很受歡迎,看著農村一棟棟的小別墅建起,讓城里人羨慕不已。 占地面積:12.0m*12.0m,144平方米左右; 建筑層高:二層; 建筑高度:9.6米(含屋頂); 設計功能: 一層戶型:客廳、餐廳、廚房、衛生間、主臥(帶衛生間)、臥室、娛樂室; 二層戶型:起居室、主臥(帶衛生間)、臥室x3、衛生間、書房、大露臺; ![]() ![]() ![]() ![]() 款式三:農村二層自建別墅設計圖,歐式風格設計,帶車庫設計圖紙介紹:這款二層別墅占地170平米,歐式風格,帶車庫設計,外觀沉穩內斂,戶型簡單大氣,卻一點也不會讓人覺得單調乏味,灰藍色坡屋頂線條流暢,一層凸窗尤為別致,色彩搭配合理,車庫獨立設計,是適合農村建房的好戶型。 占地面積:12.90m*13.50m,170平方米左右; 建筑層高:二層; 建筑高度:9.54米(含屋頂); 設計功能: 一層戶型:客廳、餐廳、廚房 、儲藏室、主臥(帶衛生間)、衛生間、車庫; 二層戶型:起居室、臥室(帶衛生間)、臥室x3、衛生間、露臺、陽臺; ![]() ![]() ![]() ![]() 不知道大家喜歡這三款戶型嗎?歡迎下方評論留言。
圖紙之家-專注農村別墅/自建房設計18年,集合國內200余位經驗豐富的設計師,被評為口碑最好的農村建筑設計公司! |

農村25萬別墅款式二層自建房設計圖,外觀圖時尚
占地:115平方米
2026年最新款四間二層別墅設計圖,15米乘13米
占地:171.01平方米
歐式農村三層小別墅設計圖,占地120平米,客廳中空,空間利用率
占地:120平方米
2026年新款二層半農村自建小別墅設計圖紙,占地150平方米
占地:150平方米
適合農村自建四合院圖片,中式二層四合院別墅設計施工圖紙
占地:232平方米
一層中式風格自建小院,白墻黛瓦舒適宜居,享受舒適愜意的鄉村
占地:263.94平方米
新農村住宅設計圖集,三層房屋設計圖紙展示
占地:110平方米
20萬以內二層歐式小別墅設計方案,全套施工圖+效果圖
占地:115平方米
共堂屋雙拼兩層小別墅設計圖,倆兄弟農村自建房首選
占地:198平方米
經典小戶型雙拼二層新農村房屋住宅設計圖,含效果圖
占地:80平方米
鄉村三層簡單自建房子設計圖,全部建好34萬左右,外觀簡潔
占地:127.912平方米
30萬預算三層別墅設計圖紙及效果圖,新農村自建推薦
占地:110平方米
新中式二層雙拼樓房設計圖,單戶面積100平米左右,實用美觀
占地:200平方米
帶電梯的農村歐式雙拼三層豪宅別墅設計圖,樓梯電梯共用
占地:268.448平方米
性價比超高一層農村自建別墅設計圖,戶型耐看不用爬樓
占地:158.6平方米
帶車庫四層別墅外觀效果圖及設計圖紙,戶型方正通透
占地:115平方米
農村三層帶露臺、帶車庫房屋設計圖,含外觀圖片
占地:155平方米
新中式120平米農村20萬元二層小樓圖,外觀柔和而雅致
占地:120平方米
簡簡單單的二層樓房的設計圖,24萬就能搞定
占地:120平方米
155平方米新三層全套別墅設計資料,15x10米
占地:158平方米
推薦:10套新農村自建房設計圖,2026年最新設計
閱讀次數:4825737次
100套鄉村別墅圖片大全,2026年最新設計
閱讀次數:2492203次
6款農村蓋一層平房的設計圖,10萬元就能建起來
閱讀次數:1852637次
這11個一層農村自建房別墅火爆了朋友圈!我最喜歡戶型十!你呢
閱讀次數:750268次
農村6萬元建一層小別墅圖,你敢相信嗎
閱讀次數:567686次
農村5萬塊就能自建房,6套普通房子設計圖分享,你沒看錯!
閱讀次數:419410次
8套農村漂亮三間平房圖片,非常適合在農村修建!
閱讀次數:411197次
農村自建房化糞池怎么做?附方案及施工過程
閱讀次數:391783次
農村一層三間平房設計圖,告別土氣養老房,讓人忍不住點贊
閱讀次數:350581次
新農村二層樓房圖片造價12萬,挑一套回家建房吧!
閱讀次數:349126次
