
|
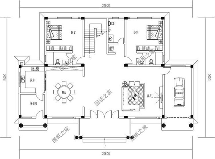
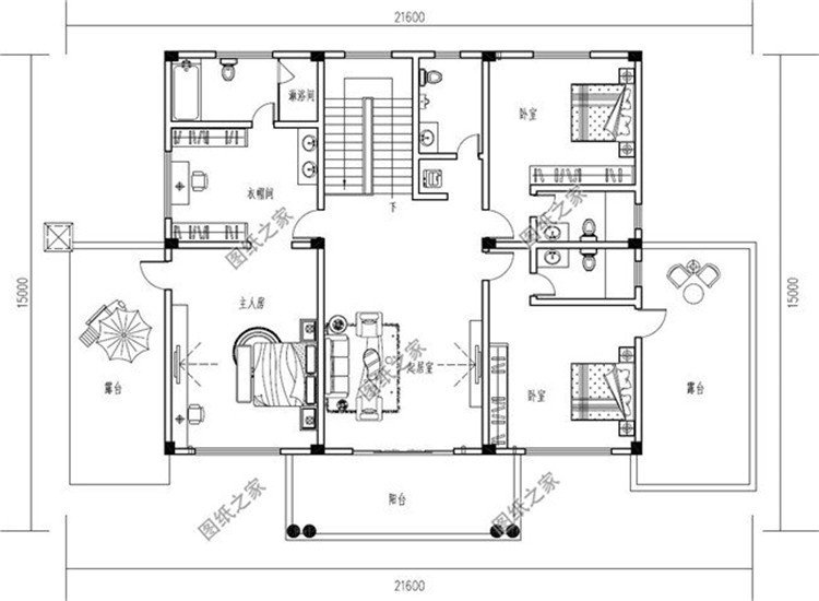
生活需要無拘無束的樂觀自由,也需要清雅精致的隨性質樸,房子也是同樣的道理;回首農村別墅千千萬,但簡歐總是能占據主流之位,因為造價低,實用性強,才是農村真正需要的。下面給大家推薦的這三款自建二層別墅效果圖,簡約不單調,精致又隨性,自有一份如寫意花鳥般的意境。 方案一:農村二層別墅設計圖,歐式風格,占地126平米左右圖紙介紹:這款二層小別墅占地126平米左右,客廳中空設計,歐式風格,別墅外型美,造價極低。簡直不要太贊。溫馨舒適的家人人都能蓋一個。花最少的錢,蓋最漂亮的別墅,這棟22萬就能建。 占地面積:10.7m*13.06m,126平方米左右; 建筑層高:二層; 建筑高度:10.05米(含屋頂); 設計功能: 一層戶型:客廳、餐廳、廚房、衛生間、主臥(帶衛生間)、臥室,儲藏間; 二層戶型:客廳上空、家庭室、主臥(帶衛生間)、臥室x2、開放式衣帽間、衛生間、陽臺; ![]() ![]() ![]() ![]() 方案二:農村二層自建別墅設計圖,占地230平米左右,豪華歐式風格圖紙介紹:本戶型占地230平方米左右,豪華歐式風格,大開間戶型設計,帶車庫設計,外觀配色采用最淡雅的米白色,讓別墅更加讓人眼前一亮,與低調的深灰色坡屋頂,相得益彰,讓整棟別墅變的更加典雅 占地面積:21.6m*15m,236平方米左右; 建筑層高:二層; 建筑高度:9.8米(含屋頂); 設計功能: 一層戶型:客廳、廚房、餐廳、臥室(帶衛生間)x2、儲物間、衛生間、車庫; 二層戶型:起居室、臥室(帶衛生間)x2、臥室(帶衣帽間衛生間)、衛生間、陽臺、露臺; ![]() ![]() ![]() ![]() 方案三:農村二層自建房設計圖,開間13米左右,戶型簡潔實用圖紙介紹:這款二層別墅占地169平米左右,開間13米左右,歐式風格,經濟又時尚。這棟小別墅造型結構精致端莊,藍色的坡屋頂,經典而養眼,體現了自然田野之中的悠閑自在。進門的客廳寬敞明亮,兩臥室呈對角分布,餐廳和廚房的巧妙結合,互相利用空間,有利于家人們用餐;二層大露臺,不僅滿足了農村日常生活中的晾曬需求,還是親朋聚會的絕佳場所。 占地面積:13.34m*12.65m,169.9平方米左右; 建筑層高:二層; 建筑高度:9.592米(含屋頂); 設計功能: 一層戶型:客廳、廚房、餐廳、臥室(帶衛生間)、臥室、衛生間; 二層戶型:書房、臥室(帶衛生間)、臥室x3、衛生間、陽臺、露臺; ![]() ![]() ![]() 不知道這三款大家喜歡哪一款?歡迎下方評論留言。
圖紙之家-專注農村別墅/自建房設計18年,集合國內200余位經驗豐富的設計師,被評為口碑最好的農村建筑設計公司! |

經典中式三合院設計,一層空間實用大氣,輕松實現理想家園!
占地:160.53平方米
平屋頂四間一層農村自建房設計圖紙,經濟時尚
占地:144平方米
農村二層小洋樓設計圖,帶外觀效果圖,外觀新穎,漂亮
占地:130平方米
新農村自建三層樓房設計圖紙,外觀簡單大方
占地:137平方米
中式四合院農村自建房設計圖,白墻黛瓦,四水歸堂
占地:137.72平方米
四間兩層農村別墅戶型圖,外觀時尚色調搭配和諧,占地超200平米
占地:212.95平方米
新農村二層住宅設計圖紙,簡單別墅設計圖(含效果圖)
占地:77.6平方米
一二層都帶廚房餐廳的獨棟二層別墅設計圖,帶雙廚房
占地:143.68平方米
30萬造價三層別墅建筑設計圖紙,戶型利用率高
占地:130平方米
15米面寬田園風一層別墅!戶型新穎太吸睛,看過都想建
占地:141.13平方米
二層自建房子最新款設計圖,平屋頂簡約經濟,美觀不失大方。
占地:115.64平方米
田園風格別墅設計圖紙及效果圖,三層鄉村小別墅設計方案
占地:166.4平方米
農村20萬元二層小樓圖片及全套圖紙,外型美造價低
占地:多種戶型
新中式三層雙拼別墅設計圖,外觀圖片美觀、大氣
占地:176平方米
戶型簡單實用的三層農村房屋設計圖紙,復式結構,大面積開窗,
占地:170平方米
共用樓梯二層雙拼自建別墅設計圖,簡單大氣方正
占地:153.88平方米,
農村二層住宅樓房設計圖紙,全套方案(施工圖+效果圖)
占地:113平方米
帶閣樓二層別墅設計圖,帶外觀效果圖片
占地:160平方米
小戶型三層別墅房屋設計圖紙,占地80多平米,麻雀雖小五臟俱全
占地:80平方米
農村中式四合院房屋圖片及設計圖,白墻黛瓦的江南風格
占地:337平方米
推薦:10套新農村自建房設計圖,2026年最新設計
閱讀次數:4825737次
100套鄉村別墅圖片大全,2026年最新設計
閱讀次數:2492203次
6款農村蓋一層平房的設計圖,10萬元就能建起來
閱讀次數:1852637次
這11個一層農村自建房別墅火爆了朋友圈!我最喜歡戶型十!你呢
閱讀次數:750268次
農村6萬元建一層小別墅圖,你敢相信嗎
閱讀次數:567686次
農村5萬塊就能自建房,6套普通房子設計圖分享,你沒看錯!
閱讀次數:419410次
8套農村漂亮三間平房圖片,非常適合在農村修建!
閱讀次數:411197次
農村自建房化糞池怎么做?附方案及施工過程
閱讀次數:391783次
農村一層三間平房設計圖,告別土氣養老房,讓人忍不住點贊
閱讀次數:350581次
新農村二層樓房圖片造價12萬,挑一套回家建房吧!
閱讀次數:349126次
