
|
大部分人對于自建房的了解都不太多,從一開始有了建房的意向,到找合適的建房戶型,再到選擇確定戶型,最后開始動工,這其實是一個長時間的認識了解過程。由于對建房知識了解不多,所以很多人建房還是很盲目的,想要適合農村蓋 款式一:農村一層自建房設計圖,面寬22平米左右,大戶型設計圖紙介紹:這款一層自建別墅占地233平米,面寬22米左右,大戶型設計,廚房單獨建造,可以隔離油煙。本款戶型滿足您,外觀造型錯落有致,顏色搭配溫馨十足,建一棟在老家無人不夸。 占地面積:21.82m*11.76m,233.994平方米左右; 建筑層高:一層; 建筑高度:6.698米(含屋頂); 設計功能: 一層戶型:客廳、廚房、餐廳、臥室X4、衛生間、臥室(帶衛生間)X2; ![]() ![]() 款式二:農村一層自建別墅設計圖,占地200平米左右,三合院設計圖紙介紹:這款一層自建別墅設計圖,占地200平米左右,三合院設計,造價15-20萬,這樣的造型充分的說明只要設計 占地面積:26.0m*9.5m,建筑面積200平方米左右; 建筑層高:一層; 建筑高度:6.39米(含屋頂); 設計功能: 一層戶型設計:客廳、餐廳、廚房、臥室x4(其中2個帶衛生間)、衛生間×3; ![]() ![]() ![]() ![]() 款式三:農村一層自建別墅設計圖,占地127平米,面寬16米左右圖紙介紹:這款一層自建房占地127平米左右,面寬16米,四開間設計,戶型經濟實用接地氣!大氣的藍色屋頂與天空相媲美,經典的羅馬柱和凸出窗戶別具一格,米黃色外墻漆與淡黃色文化石交相呼應,經典耐看,不會過時。 占地面積:16m*8.9m,127.35平方米左右; 建筑層高:一層; 建筑高度:6.15米(含屋頂); 設計功能: 一層戶型:玄關、客廳、廚房、餐廳、臥室x3、衛生間; ![]() ![]() 不知道這三款戶型大家喜歡哪一款?歡迎下方評論留言。
圖紙之家-專注農村別墅/自建房設計18年,集合國內200余位經驗豐富的設計師,被評為口碑最好的農村建筑設計公司! |

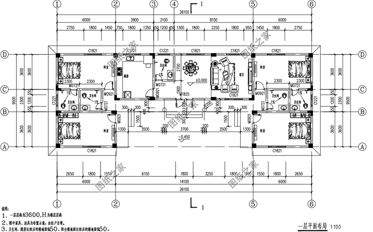
自建一層農村別墅圖,經濟實用新選擇,建房必備參考戶型!
占地:142.88平方米
實用型二層別墅設計方案,占地120平米簡單大方最耐看
占地:120平方米
150平米一層農村別墅設計圖,養老自住都很不錯,關鍵是造價也很
占地:156平方米
實用三層新農村住宅設計圖,鄉村別墅設計圖(含外觀效果圖)
占地:102.34平方米
165平方米三層雙拼農村房屋設計圖大全14x12
占地:168平方米
新中式帶露臺30萬左右農村三層別墅,客廳中空
占地:110平方米
中式四合院風格別墅設計圖,平屋頂,書房、茶室、健身房一應俱
占地:370平方米
泰式風格三層小別墅設計圖,帶車庫和大露臺
占地:120平方米
中式一層仿古自建平房設計圖,灰墻青瓦,外觀古香古色
占地:168.48平方米
250平方米農村三層別墅設計圖紙及效果圖大全,18.3x15米
占地:247平方米
二層半房子設計圖及效果圖,客廳中空,南北通透
占地:160平方米
高端大氣三層歐式別墅設計圖,客廳中空,旋轉樓梯
占地:150平方米
歐式大氣新農村三層別墅豪宅設計圖,外觀高端,對稱設計
占地:225平方米左右
新農村田園風格兩層半別墅設計圖,外觀造型非常漂亮
占地:147.8平方米
100平方米自建三層半別墅設計圖紙,帶地下車庫
占地:100平方米
五間二層別墅設計圖紙,樓梯設計的無比大氣
占地:300平方米
造價65萬左右的三層歐式別墅房屋設計施工CAD圖紙及效果圖
占地:178平方米
面寬14米農村別墅二層別墅戶型設計,經濟實用
占地:107.1平方米
農村三層雙拼別墅戶型圖設計圖,整體外觀氣派
占地:220平方米
新農村二層住宅設計圖紙,簡單別墅設計圖(含效果圖)
占地:77.6平方米
推薦:10套新農村自建房設計圖,2026年最新設計
閱讀次數:4825737次
100套鄉村別墅圖片大全,2026年最新設計
閱讀次數:2492203次
6款農村蓋一層平房的設計圖,10萬元就能建起來
閱讀次數:1852637次
這11個一層農村自建房別墅火爆了朋友圈!我最喜歡戶型十!你呢
閱讀次數:750268次
農村6萬元建一層小別墅圖,你敢相信嗎
閱讀次數:567686次
農村5萬塊就能自建房,6套普通房子設計圖分享,你沒看錯!
閱讀次數:419410次
8套農村漂亮三間平房圖片,非常適合在農村修建!
閱讀次數:411197次
農村自建房化糞池怎么做?附方案及施工過程
閱讀次數:391783次
農村一層三間平房設計圖,告別土氣養老房,讓人忍不住點贊
閱讀次數:350581次
新農村二層樓房圖片造價12萬,挑一套回家建房吧!
閱讀次數:349126次
