
|
得益于城市里的房子越來越貴,使得越來越多的人開始選擇在農村里建房,而隨著土地政策的下達,使得農村里建房普遍不能超過三層樓高,所以三層自建房別墅成為了很多人的新寵,而簡單大氣的風格也受到越來越多人的青睞。簡單大氣,實惠經濟,在農村有一棟屬于自己的三層別墅,實在是一件讓人羨慕的事情。今天就給大家推薦幾款簡單大氣又好看的三層別墅設計,看了的人都說好。 別墅圖一:小開間三層新中式小別墅雅致大方得體,令人心動!從外欣賞,這棟別墅簡潔大氣,給人的感受很清新自然,越看越有韻味,無論是色調搭配還是造型都屬上等,戶型方正,沒有過多的邊角,也沒有花俏的裝潢,是一棟難能可貴的高檔別墅。
別墅效果圖 占地面積:8.76m*11.76m,103.176平方米左右; 建筑層高:三層; 建筑高度:13.167米(含屋頂); 設計功能: 一層戶型:客廳、餐廳、衛生間、臥室(帶衛生間)、臥室; 二層戶型:客廳、衣帽間、臥室x2、臥室(帶衛生間、衣帽間)、衛生間、陽臺; 三層戶型:臥室(帶衛生間、衣帽間)、臥室x2、書房、露臺;
一次平面圖
二層平面圖
三層平面圖 別墅圖二:最新款農村三層自建房戶型設計圖精選春天就要蓋一棟!回老家建新房子,各種各樣房型與風格都有人建,但選用三層房型的朋友依然是多見的。別墅外觀大氣實用性強,大膽的外觀配色恰當地提升了總體的藝術美,凸窗設計構思讓整棟別墅眼前一亮,多窗的設計構思充分考慮別墅的采光和通風功能。灰色坡屋頂錯落有致,適用于農村自建。
別墅效果圖 占地面積:10.96m*10.18m,112.56平方米左右; 建筑層高:三層; 建筑高度:12.392米(含屋頂); 設計功能: 一層戶型:客廳、餐廳、廚房、臥室(帶衣帽間)、衛生間; 二層戶型:書房、茶室、臥室x3、衛生間X2、陽臺; 三層戶型:娛樂區、臥室x2、書房、衛生間、洗衣房、露臺;
背面效果圖
鳥瞰效果圖
一層平面圖
二層平面圖
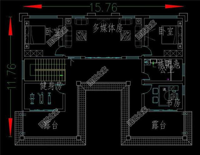
三層平面圖 別墅圖三:高端三層新中式農村別墅圖紙設計圖 四合院戶型布局,外觀帥氣奢華,戶型安逸舒適,普通群眾的建房之選!這款別墅外觀配色不張揚且氣質端莊,對稱性結構,藝術美十足顯大方得體,南端大面積的開窗更是確保了室內能夠得到 充足的采光與自然通風。第二層有四間臥室且彼此不鄰近,能夠更好地保護居住者的個人隱私,三層有兩間臥室,還設置了書房、多媒體房、健身房,可滿足日常休閑娛樂功能,南端設計了大露臺,可滿足日常休閑,同時增加了室內空氣流通性,也方便晾干衣服。
別墅效果圖 占地面積:15.76m*11.76m,133.64平方米左右; 建筑層高:三層; 建筑高度:12.322米(含屋頂); 設計功能: 一層戶型:客廳、神位、廚房、餐廳、儲物室、娛樂室、休息間、臥室(帶衛生間)、衛生間; 二層戶型:內庭上空、客廳、臥室x2、臥室(帶衛生間)x2、衛生間; 三層戶型:多媒體房、書房、健身房、衛生間、臥室x2、露臺x2;
一層平面圖
三層平面圖
二層平面圖 以上就是今天推薦給大家的內容了,別墅年年建,今天特別多,有需求的朋友可以收藏一下。 圖紙之家-專注農村別墅/自建房設計18年,集合國內200余位經驗豐富的設計師,被評為口碑最好的農村建筑設計公司! |

豪華雙拼三層別墅設計圖,在農村建一棟,將是最靚的風景!
占地:186.85平方米
高端三層新中式農村別墅設計圖,仿合院布局,外觀霸氣
占地:133.64平方米
小占地的農村別墅設計圖,占地僅72平米,參考造價不到15萬
占地:多戶型可選
簡約精致的二層房子設計圖,農村自建經濟實用
占地:89.76平方米
80平方米三層農村自建民房設計圖,小戶型別墅方案
占地:81平方米
120平米三層別墅房屋設計圖,帶車庫,帶閣樓
占地:120平方米
三層兄弟雙拼別墅設計方案,外觀大氣布局實用,住的舒服
占地:197.67平方米
歐式三層小洋樓設計圖,歐式最美三層別墅外觀效果圖
占地:124.28平方米
造價便宜的二層雙拼自建房設計方圖案,一塊宅基地建兩戶
占地:224平方米
130平左右三層樓房設計圖,新農村住宅自建推薦
占地:128平方米
平頂三層別墅設計方案,簡潔舒適大氣通透,12乘9米,打造理想住
占地:98.21平方米
180平方米新農村三層別墅設計圖紙,效果圖+全套cad施工圖
占地:180平方米
面寬20多米二層新中式雙拼別墅設計圖,外觀漂亮時尚
占地:246.66平方米左
農村四層雙拼別墅房屋設計圖,造型現代、大氣
占地:220平方米
140平三層自建房別墅設計圖,外觀圖大氣、美觀
占地:140平方米
95平經濟適用三層農村小別墅設計圖,二開間推薦爆款戶型
占地:95.31平方米
農村一層雙拼別墅設計方案,豐富的室內空間配置,滿足您的生活
占地:358.46平方米
50萬左右農村三層別墅設計圖,歐式的外觀大氣沉穩
占地:150平方米
備受好評二層半歐式別墅設計圖,五開間對稱設計,布局合理又實
占地:192.48平方米
農村三層樓房設計圖三層別墅圖片,占地面積135平米
占地:135平方米
推薦:10套新農村自建房設計圖,2026年最新設計
閱讀次數:4825737次
100套鄉村別墅圖片大全,2026年最新設計
閱讀次數:2492203次
6款農村蓋一層平房的設計圖,10萬元就能建起來
閱讀次數:1852637次
這11個一層農村自建房別墅火爆了朋友圈!我最喜歡戶型十!你呢
閱讀次數:750268次
農村6萬元建一層小別墅圖,你敢相信嗎
閱讀次數:567686次
農村5萬塊就能自建房,6套普通房子設計圖分享,你沒看錯!
閱讀次數:419410次
8套農村漂亮三間平房圖片,非常適合在農村修建!
閱讀次數:411197次
農村自建房化糞池怎么做?附方案及施工過程
閱讀次數:391783次
農村一層三間平房設計圖,告別土氣養老房,讓人忍不住點贊
閱讀次數:350581次
新農村二層樓房圖片造價12萬,挑一套回家建房吧!
閱讀次數:349126次
