
|
框架結構和磚混結構是目前建造別墅使用的兩種結構,框架結構比磚混結構的剛性和強度都要好,無論是從穩定性,抗震,房屋堅韌都要優于磚混結構,而且框架結構還能輕易改變房間的大小,不容易破壞。今天給大家帶來三款框架結構的現代風格別墅設計圖紙,希望大家會喜歡。 別墅圖一:130平方米現代簡約農村兩層樓房施工設計圖紙帶外觀圖簡約時尚的現代風格,框架和線條,不同深淺的顏色,讓整個立面精致整潔。大開間的窗戶與二樓的玻璃護欄相互呼應,反映了農村的田園風光和美麗的風景。
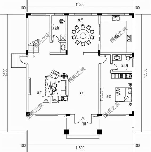
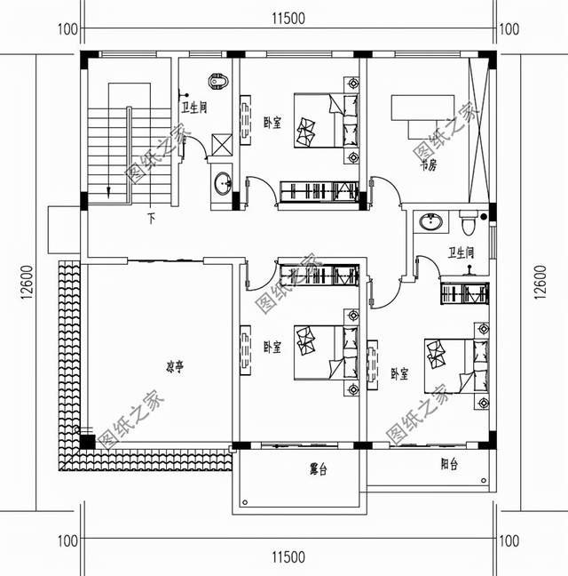
別墅效果圖 占地面積:11.5m*12.6m,126平方米左右; 建筑層高:二層; 建筑高度:9.36米(含屋頂); 設計功能: 一層戶型:大廳、客廳、廚房、餐廳、臥室(帶衛生間)、衛生間; 二層戶型:臥室(帶衛生間)、臥室x2、書房、衛生間、露臺、陽臺、涼亭;
背面效果圖
鳥瞰效果圖
一層平面圖
二層平面圖 別墅圖二:超實用現代兩層自建小樓圖設計外型純簡約風格,回歸真實生活才是最佳設計構思!現代風格的別墅設計,新材料的應用,幾何形狀的設計構思,視覺藝術裝飾的設計,別墅的上下都充滿了現代時尚的感覺。認為這種造型是80、90后,特別受追求視覺藝術風范的年輕人的喜愛。其外形設計如此出色,布局精巧,南北通透,方便家庭生活。
別墅效果圖 占地面積:16.6m*13m,184.07平方米左右; 建筑層高:二層; 建筑高度:9.6米(含屋頂); 設計功能: 一層戶型:堂屋、客廳、廚房、餐廳、臥室(帶衛生間)x3、衛生間; 二層戶型:客廳、臥室(帶衛生間)x5、衛生間、陽臺;
一層平面圖
二層平面圖 別墅圖三:帶地下室的一層別墅戶型設計圖農村自營住宅推薦這樣的方案,地下室可以作為酒窖和儲藏室(大小施工時可以自己調整),廚房在餐廳旁邊。四間臥室,家里有老人也可以一起住,還配有內衛,經濟實惠,住起來也很舒服,建起來很大氣,鄉下蓋房子就選它。
別墅效果圖 占地面積:17.46m*12.56m,206平方米左右; 建筑層高:一層; 建筑高度:7.051米(含屋頂); 設計功能: 地下室:酒窖; 一層戶型:客廳、廚房、餐廳、臥室X2、臥室(帶衛生間)X2、衛生間;
地下室平面圖
一層平面圖 以上就是今天帶來的全部內容了,有興趣的朋友記得收藏。 圖紙之家-專注農村別墅/自建房設計18年,集合國內200余位經驗豐富的設計師,被評為口碑最好的農村建筑設計公司! |

二層自建房屋設計圖,帶小院,帶地下室,外觀現代、時尚,內部
占地:200平米
兩開間自建別墅設計圖,占地小造型簡約,不愁宅基地面寬小了
占地:118.4平方米
大氣農村一層自建別墅方案,絕對讓人羨慕的“平房”
占地:158.39平方米
左右對稱的歐式高端三層別墅設計圖,外觀氣派、豪華
占地:200平方米
小戶型經濟農村雙拼自建房別墅設計圖紙,二層簡約造價低
占地:138平方米
新中式三層別墅設計圖紙(含效果圖),110平農村自建房施工圖推
占地:110平方米
實用三層新農村住宅設計圖,鄉村別墅設計圖(含外觀效果圖)
占地:102.34平方米
50萬左右農村三層別墅設計圖紙,帶大露臺,外觀大氣
占地:150平方米
最火現代風三層半別墅設計圖,時尚簡約寬敞舒適
占地:169平方米
100平方米二層中式小別墅設計圖紙級效果圖片
占地:99平方米
簡單實用新農村三層住宅房屋設計圖,時尚大氣,低調
占地:140平方米
110平方米新農村實用現代的二層建筑設計圖紙帶外觀圖11X10米
占地:110平方米
復式、旋轉樓梯三層別墅設計方案圖,戶型合理、實用
占地:138平方米
最漂亮的農村二層小樓房自建別墅設計圖紙及效果圖
占地:168平方米
帶小院子的鄉村一層別墅設計圖紙,120平方米
占地:多戶型
新農村全套四層別墅設計圖紙占地面積:190平方米造價預算:42萬
占地:190平方米
30萬以下的經典二層新農村別墅設計圖紙及效果圖,簡單大氣
占地:170平方米
廚房在前,簡約歐式二層農村自建別墅設計圖,戶型個性
占地:143.69平方米
私人自建三層別墅設計圖紙帶效果圖,歐式風格、外觀大氣
占地:209.44平方米
50萬以內的歐式三層房屋別墅施工設計圖紙及效果圖
占地:169平方米
推薦:10套新農村自建房設計圖,2026年最新設計
閱讀次數:4825737次
100套鄉村別墅圖片大全,2026年最新設計
閱讀次數:2492203次
6款農村蓋一層平房的設計圖,10萬元就能建起來
閱讀次數:1852637次
這11個一層農村自建房別墅火爆了朋友圈!我最喜歡戶型十!你呢
閱讀次數:750268次
農村6萬元建一層小別墅圖,你敢相信嗎
閱讀次數:567686次
農村5萬塊就能自建房,6套普通房子設計圖分享,你沒看錯!
閱讀次數:419410次
8套農村漂亮三間平房圖片,非常適合在農村修建!
閱讀次數:411197次
農村自建房化糞池怎么做?附方案及施工過程
閱讀次數:391783次
農村一層三間平房設計圖,告別土氣養老房,讓人忍不住點贊
閱讀次數:350581次
新農村二層樓房圖片造價12萬,挑一套回家建房吧!
閱讀次數:349126次
