
|
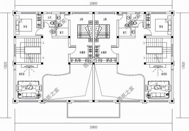
如今農村一家其實有好多兄弟姐妹,蓋一套別墅分配不均。容易引起家庭的不和諧,現在農村雙拼房也在農村十分時行的。一家變兩家,哥倆既能離得不遠又能有各自的房子,一家人整整齊齊的,一起孝順爸媽。家中宅基地大的朋友們快快隨我一起來看看吧。 別墅圖一介紹:三層雙拼別墅效果圖及戶型圖這款別墅占地150平米,單戶面積77平米左右,小宅基地戶主的福音。外觀淳樸大氣立面墻體多采用淡雅色調搭配讓整個住宅散發著樸實無華的氣氛,兩個鮮亮紅的門好像再給我門訴說著推開門后的生活紅紅火火。兩塊金黃色的浮雕裝飾提升住宅的高大上的檔次。住宅室內布局緊湊,頂樓設有露臺,方便生活使用。二三層設有套間,高端大氣,彰顯業主的品味。 占地面積:12.0m*13.0m,一層占地154平方米左右(含外門庭)單戶77平米左右; 建筑層高:三層; 建筑高度:13.1米(含屋頂);
正面效果圖
側面效果圖
鳥瞰效果圖 設計功能:
一層平面圖 一 層:客廳、廚房、餐廳、衛生間;
二層平面圖 二 層:臥室(帶書房、陽臺)、臥室×2、衛生間;
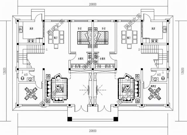
三層平面圖 三 層:臥室(帶書房)、臥室、衛生間、露臺; 別墅圖二介紹:農村三層兄弟雙拼別墅設計圖效果圖14X12米自建房戶型,別墅集清新、自然、美麗于一體。獨特的構思手法,以材料的質感、屋頂的色彩、構造的方式和立面的色彩變化,烘托出別墅動感清新的歸屬感。還有陽臺和露臺,空間利用率高,造型美觀。住宅整個為農村常見的歐式風格,墻立面多采用暖黃色的外墻磚,與亮紅色的坡屋頂相融合整體配色濃妝艷抹。在視覺上,使建筑十分恬靜。 占地面積:14m*12.2m,154平方米左右,單戶77平左右; 建筑層高:三層; 建筑高度:12米(含屋頂);
正面效果圖
側面效果圖
鳥瞰效果圖 設計功能:
一層戶型圖 一層:入口玄關、客廳、餐廳、廚房、臥室、衛生間;
二層戶型圖 二層:客廳、臥室x4、衛生間、露臺、陽臺;
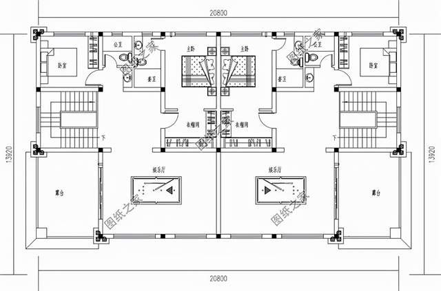
三層戶型圖 三層:臥室、衛生間、露臺; 別墅圖三介紹:兩戶250平方米農村豪華歐式三層兄弟雙拼別墅設計圖單戶125平方米左右,豪華型的三層雙拼戶型,外觀大氣經典,將獨棟豪宅的經典裝飾應用到雙拼戶型,門廳、雕花、立柱各種裝飾齊全,外墻用豪華的大理石和墻磚,效果就是不一樣,顏色選用一派富貴氣息,建筑整體完美。落地窗的設施最大的優勢是什么的話那就是采光這方面了,無論是客廳還是臥室選擇這種窗戶形式的話那么室內都是非常亮堂的,在白天無需開燈都顯得非常的光亮,一個成語來總結一下就是“金碧輝煌” 占地面積:20.8m*13.92m,251平方米左右,單戶125平左右; 建筑層高:三層; 建筑高度:13.45米(含屋頂);
正面效果圖
側面效果圖
鳥瞰效果圖 設計功能:
一層戶型圖 一層:客廳、廚房、餐廳、棋牌室、臥室(帶衣帽間)、衛生間;
二層戶型圖 二層:客廳上空、臥室(帶衣帽間衛生間)、臥室、衛生間、陽臺;
三層戶型圖 三層:臥室(帶衣帽間衛生間)、臥室、娛樂廳、衛生間、露臺 以上就是小編今天推薦給大家的全部內容了,感興趣的盆友們記得點贊收藏呦! 圖紙之家-專注農村別墅/自建房設計18年,集合國內200余位經驗豐富的設計師,被評為口碑最好的農村建筑設計公司! |

140平方米兩層別墅CAD設計圖紙及效果圖,13x11米
占地:138平方米
120平米三層別墅房屋設計圖,帶車庫,帶閣樓
占地:120平方米
新農村簡歐三層樓房圖片自建3層別墅施工設計圖及效果圖
占地:126平方米
農村中式四合院房屋圖片及設計圖,白墻黛瓦的江南風格
占地:337平方米
新款現代一層小別墅設計圖,農村自建平房推薦戶型
占地:多戶型可選
私人自建三層別墅設計圖紙帶效果圖,歐式風格、外觀大氣
占地:209.44平方米
140平米一層農村自建房設計圖,好看不貴簡約耐看
占地:141.12平方米
農村自建房10萬以下兩層別墅設計圖含外觀效果圖片
占地:105平方米
造價12萬一層簡單自建房設計戶型圖,占地面積140平方米左右
占地:137.76平方米
農村17萬元一層自建別墅設計圖,外觀簡潔,戶型方正
占地:163平方米
小型三層別墅cad建筑圖紙帶效果圖,帶屋頂露臺
占地:101平方米左右
最新140平米三層自建房屋設計圖紙,本戶型帶小院
占地:140平米
農村自建二層樓房設計圖及效果圖,二層房屋圖推薦
占地:105平方米
農村大戶型中式二層四合院別墅設計圖含外觀效果圖,戶型經典、
占地:464平方米
造價30萬的三層簡歐新農村別墅設計施工圖紙及效果圖
占地:133平方米
面寬8米也能建別墅,小面寬農村三層別墅設計圖
占地:93.83平方米
80-90平米自建樓房設計圖,農村小別墅經典戶型圖
占地:86平方米
面寬10米高品質二層別墅設計方案,造價不高顏值很高,非常適合
占地:137.63平方米
二層帶架空層的農村別墅設計圖,功能齊全,超越十里八村
占地:130平方米
面寬13米帶堂屋三層農村別墅圖,新中式大氣風格
占地:151.58平方米
推薦:10套新農村自建房設計圖,2026年最新設計
閱讀次數:4825737次
100套鄉村別墅圖片大全,2026年最新設計
閱讀次數:2492203次
6款農村蓋一層平房的設計圖,10萬元就能建起來
閱讀次數:1852637次
這11個一層農村自建房別墅火爆了朋友圈!我最喜歡戶型十!你呢
閱讀次數:750268次
農村6萬元建一層小別墅圖,你敢相信嗎
閱讀次數:567686次
農村5萬塊就能自建房,6套普通房子設計圖分享,你沒看錯!
閱讀次數:419410次
8套農村漂亮三間平房圖片,非常適合在農村修建!
閱讀次數:411197次
農村自建房化糞池怎么做?附方案及施工過程
閱讀次數:391783次
農村一層三間平房設計圖,告別土氣養老房,讓人忍不住點贊
閱讀次數:350581次
新農村二層樓房圖片造價12萬,挑一套回家建房吧!
閱讀次數:349126次
