
|
如今,一提到獨棟別墅,人們肯定會想到電視劇中那種寬敞明亮的別墅。事實上,現在一些農村宅基地不太好或者是面積太小,無能為力只能建小別墅。為保證建筑面積,只能再增加一些樓層。而有的地方高度有限,三層就是可以建造的最高層。今日小編就帶三個簡潔三層的別墅,只要設計好,照樣可以擁有屬于自己溫馨的獨棟小別墅。 別墅圖一介紹:農村簡潔干練三層現代風別墅設計圖造就一個舒服的農村新房子,外型簡約空氣,總體選用米白色外墻真石漆,仿木護欄原材料裝飾設計,多開窗通風設計方案,光照充足光亮。通道精致的入戶玄關能夠做為堂屋,寬闊的大客廳,透亮光亮;餐廳廚房能夠降低廚房油煙環境污染,出門就是餐廳,十分便捷。動靜分區,便捷日常生活。二樓三間臥房,主臥室有內衛。房頂大陽臺能不錯的達到日常晾干,和好朋友在陽臺上喝一杯下午茶時間,吃飯也是不錯的挑選,視線寬闊,自然環境怡人。城內有房,農村有房,美滿的生活就是那樣。 占地面積:8m*15m,115.1平方米左右; 建筑層高:三層; 建筑高度:13.5米(含屋頂);
別墅效果圖 設計功能:
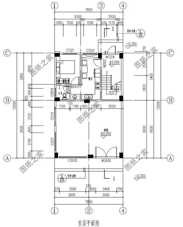
一層平面圖 一層戶型:客廳(可改套房)、餐廳、廚房、庭院、衛生間;
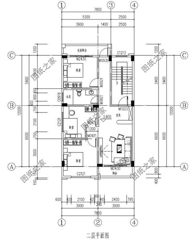
二層平面圖 二層戶型:天井、起居室、臥室(帶衛生間)、臥室x2、衛生間、陽臺;
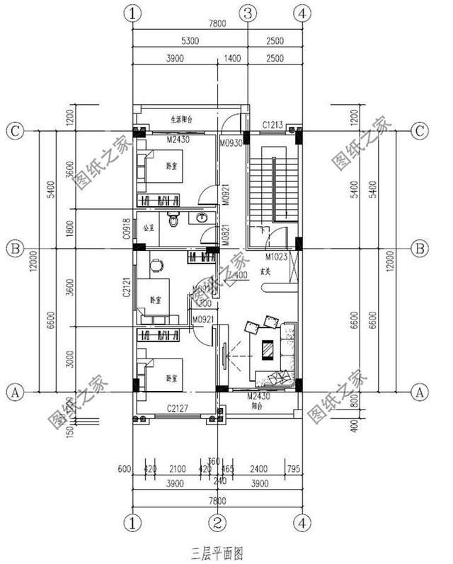
三層平面圖 三層戶型:起居室、臥室(帶衛生間)、天井、臥室(帶書房)、衛生間、露臺;
屋頂層平面圖 別墅圖二介紹:60多平米三層現代風格別墅設計圖全部工程建筑全是現代簡約,正臉以深褐色為首要主旋律,并以簡單的輪廓刻畫出行為主體輪廊。本地白褐灰鍍層豐富多彩了建筑立面的色調,材質轉變使得造型更加完整,作為一間新房,十分清靜定居。餐廳廚房等公共室內空間十分寬闊,便捷日常接待客人家庭聚餐。二層設計方案三室,朝南陽臺,有利于主臥室休閑娛樂欣賞和晾曬衣服,提升房間內光照。此外三層設計方案了開放式的大陽臺室內空間,做空中花園也是非常好的提議。住宅簡潔而不缺華麗,讓居家情調提高一些級別。 占地面積:6.82m*9.82m,66.4平方米左右; 建筑層高:三層; 建筑高度:10.5米(含屋頂);
別墅效果圖 設計功能:
一層戶型圖 一層戶型:客廳、餐廳、廚房、臥室、衛生間;
二層戶型圖 二層戶型:臥室(帶衛生間)、臥室x2、衛生間、陽臺;
三層戶型圖 三層戶型:茶室、臥室、衛生間、露臺; 別墅圖三介紹:兩開間三層帶商鋪平屋頂自建房設計圖及效果圖這棟別墅的底層可以改造成商鋪,現在在農村也有不少開店的,自己掙錢還方便鄉下鄉親的購物。外觀簡潔大氣,整體運用淺色調搭配,給人一種看上去非常干練的感覺。實用方面,這座別墅最大限度地采用了兩開三層的設計格局,一樓做了商鋪,二樓還可作為家人居住的場所。在村子里開了一家小商店,讓全村人羨慕。 占地面積:7.8m*12m,93.6平方米左右;
正面效果圖
側面效果圖
鳥瞰效果圖
一層戶型圖
二層戶型圖 二層戶型:玄關、客廳、臥室x3、衛生間、陽臺;
三層戶型圖 三層戶型:玄關、客廳、臥室x3、衛生間、陽臺; 以上就是小編帶給大家的全部內容了,希望大家能夠喜歡,想繼續看到我分享的蓋房小知識關注小編不迷路! 圖紙之家-專注農村別墅/自建房設計18年,集合國內200余位經驗豐富的設計師,被評為口碑最好的農村建筑設計公司! |

現代三層農村民房設計圖及圖片,外觀高端、大氣
占地:196平方米
150平二層別墅房屋設計圖,現代風格,造型精致
占地:150平方米
占地105平實用三層樓房別墅設計圖紙,造型方正簡單大氣
占地:105平方米
小戶型農村三層房屋設計圖,占地120平米,布局非常合理,外表典
占地:120平方米
一層中式三合院別墅設計圖,白墻黛瓦引領潮流
占地:177.94平方米
省錢美觀一層自建房子設計圖,父母養老住很適合
占地:117平方米
110平方米新農村三層房屋設計圖,含外觀效果圖
占地:110平方米
150平左右新農村自建房設計圖,含外觀效果圖
占地:150平方米
自建小樓二層農村別墅設計圖,大氣好看,13米乘14米
占地:181.62
小戶型二層四合院別墅設計圖,含外觀效果圖,小宅基地選擇
占地:134平方米
農村小戶型三層別墅設計圖,平屋頂,造價20萬左右
占地:80平方米
兄弟雙拼三層小戶型別墅設計圖紙,160平方米(單戶80平)
占地:163平方米
帶車庫的新中式風格一層別墅設計圖,鳥語花香回家建房
占地:184平方米
二層復式雙拼別墅設計圖(客廳中空),含外觀效果圖
占地:195平方米
簡歐式三層半(4層)農村自建房別墅設計圖效果圖,帶車庫戶型
占地:127平方米
2026年新款一層住宅別墅設計圖紙,中式風格漂亮極了
占地:207平方米
2026年新款別墅外觀圖,新中式風格,比簡歐大氣,時尚
占地:135平方米
200平米二層自建房別墅設計圖,外觀漂亮布局實用
占地:207.09平方米
帶配房的二層農村小別墅設計圖,大方適用,耐看經濟
占地:152.28平方米
經典四合院別墅設計圖,復式挑空客廳讓四合院更高端
占地:175平方米左右
推薦:10套新農村自建房設計圖,2026年最新設計
閱讀次數:4825737次
100套鄉村別墅圖片大全,2026年最新設計
閱讀次數:2492203次
6款農村蓋一層平房的設計圖,10萬元就能建起來
閱讀次數:1852637次
這11個一層農村自建房別墅火爆了朋友圈!我最喜歡戶型十!你呢
閱讀次數:750268次
農村6萬元建一層小別墅圖,你敢相信嗎
閱讀次數:567686次
農村5萬塊就能自建房,6套普通房子設計圖分享,你沒看錯!
閱讀次數:419410次
8套農村漂亮三間平房圖片,非常適合在農村修建!
閱讀次數:411197次
農村自建房化糞池怎么做?附方案及施工過程
閱讀次數:391783次
農村一層三間平房設計圖,告別土氣養老房,讓人忍不住點贊
閱讀次數:350581次
新農村二層樓房圖片造價12萬,挑一套回家建房吧!
閱讀次數:349126次
