
|
現在我們國家正逐漸步入老齡化社會,長年在外打拼的我們或許早已成為自己想要成為的人,在城里成家。希望將父母接到城市里,卻無法適應城市的喧鬧。操勞了半輩子了不想給子女添麻煩,在老家建別墅提升了年邁父母生活品質的節假也可以帶孩子回來度假,特別適合在農村建造。 別墅圖一介紹:農村建房三層小洋樓此款別墅有兩大閃光點,客廳挑空設計,還有現在自建房常見的露臺,可以改成露臺花園,既可美化環境,又是很好的休閑娛樂場所。現在流行的飄窗和多角窗使建筑正面具有立體感。紅琉璃瓦鋪成的屋頂錯落有致,像山頂一樣一層一層地凸現出來。本款別墅還配備電梯,現已在高層別墅中常見,它的存在不僅讓上下樓更加方便,也提升了我們的生活質量。 占地面積:10.5m*11.5m,一層占地110平方米左右; 建筑層高:三層; 建筑高度:13.01米(含屋頂);
正面效果圖
鳥瞰效果圖
側面效果圖 設計功能:
一層戶型圖 一 層:客廳、餐廳、父母房(帶衛生間)、衛生間、健身房;
二層戶型圖 二 層:客廳上空、起居室、臥室(帶衛生間)、臥室、公衛;
三層戶型圖 三 層:起居室、臥室(帶衛生間)、臥室、公衛、露臺; 別墅圖二紙介紹:120平方米新農村三層別墅房屋設計圖這款歐式古典極簡風格的鄉村小別墅,顏色輕快簡潔,造型設計唯美。正方形房型再加上不張揚沉穩的設計風格,是農村建房子朋友們的喜愛,淡雅清爽,淡黃的外墻真石漆基本上遮蓋了這個房屋,住宅莊重大氣,細節處理也是非常漂亮,仿佛是眾多自建房中一股清風吹動著大家的心弦,令人神清氣爽。二樓和三樓均配有陽臺,是當下常規的配置之一,作為室外的交匯處,在周圍風景的映照下,緊緊圍繞著與房間內徹底不一樣的氣氛,裝飾好露臺能夠將生活品質提升。 占地面積:10.9m*10.7m,121平方米左右; 建筑層高:三層; 建筑高度:12.95米(含屋頂);
正面效果圖
側面效果圖
鳥瞰效果圖 設計功能:
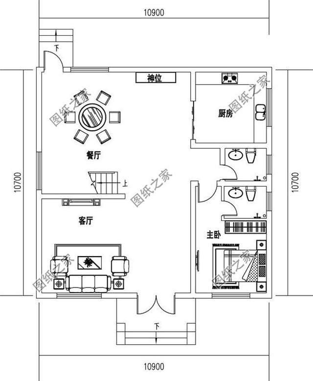
一層平面圖 一層戶型:神位、客廳、餐廳、廚房、臥室(帶衛生間)、衛生間;
二層平面圖 二層戶型:起居室、休閑區、書房、臥室(帶衛生間)、臥室x2、衛生間、陽臺;
三層平面圖 三層戶型:休閑區、書房、洗衣房、臥室x2、衛生間、露臺; 別墅圖三介紹:最受歡迎的三層農村小別墅設計圖紙占地155平方米,外觀大氣磅礴,這樣的設計再過20年都不會過時。海藍色的屋頂,看上去就像一片汪洋一樣。通體的黃色真石漆鋪設了整棟別墅,簡約的色調搭配加上左右對稱性的設計使得住宅充斥著肅穆的氣場。鮮紅色的大門好像象征著門后的日子紅紅火火,一層兩間臥室位于西側用客廳分了餐廳與廚房實現了動靜區域分離。有人會說了這個梯井是干什么的呀?其實梯井是用于消防需要,著火時消防水管從梯井通到需要滅火的樓層保證了我們戶主生活安全的保障。 占地面積:16.5m*9.5m,一層占地155平方米左右; 建筑層高:三層; 建筑高度:12.2米(含屋頂);
正面效果圖
鳥瞰效果圖
側面效果圖 設計功能:
一層戶型圖 一 層:客廳、廚房、餐廳、臥室×2、衛生間×2;
二層戶型圖 二 層:起居室、臥室(帶衣帽間,衛生間)、臥室×2、書房、衛生間;
三層平面圖 三 層:起居室、臥室(帶衛生間)×2、露臺×2; 以上就是小編今天分享給大家的全部內容了,感興趣的家人們里面有沒有你喜愛的哪一款呢? 圖紙之家-專注農村別墅/自建房設計18年,集合國內200余位經驗豐富的設計師,被評為口碑最好的農村建筑設計公司! |

185平米自建三層別墅房屋施工設計圖紙及效果圖
占地:187平方米
高端歐式四層別墅房屋施工圖紙及效果圖,圓弧大窗
占地:170平方米
新農村小洋樓三層別墅戶型設計圖,開間9米,造價25萬
占地:94平方米
農村一層平房別墅設計圖,18米乘9米,實實在在的好戶型
占地:162平方米
140平四層復式別墅房屋設計圖,帶外觀效果圖
占地:140平方米
140平中式徽派一層別墅設計圖,一層照樣建這樣漂亮
占地:140平方米
一層農村三合院別墅設計方案圖,秀氣優美,大氣又實用
占地:191.18平方米
簡單實用農村自建房五間一層別墅設計圖,多款戶型
占地:多戶型可選
豪華農村帶露臺三層樓房別墅設計圖紙,占地200平方米左右
占地:200平方米
經典小戶型二層新農村房屋設計圖紙,客廳中空,造價20萬
占地:94平方米
新中式農村三層樓房設計圖,帶地下室,主體建筑面積110平米
占地:110平方米
現代一層(帶悶頂)別墅住宅設計圖,外觀現代時尚
占地:160平方米
經濟、不張揚!簡單二層別墅設計圖,農村建房直接抄作業
占地:198.58平方米
巴洛克風格別墅設計圖紙及效果圖,農村建一棟想低調都難
占地:256平方米左右
小型中式一層三合院別墅設計圖,小宅基地照樣建合院
占地:119.73平方米
農村一層四開間養老別墅設計圖,造型美布局佳
占地:164.27平方米
共堂屋雙拼兩層小別墅設計圖,倆兄弟農村自建房首選
占地:198平方米
獨棟兩層歐式別墅設計圖紙(效果圖+建筑施工圖)
占地:125平方米
簡約大氣農村自建三層別墅設計圖,布局合理,很適合農村人自建
占地:139.471平方米
12.8乘10米一層平房別墅設計圖,四室二廳南北通透
占地:128.85平方米
推薦:10套新農村自建房設計圖,2026年最新設計
閱讀次數:4825737次
100套鄉村別墅圖片大全,2026年最新設計
閱讀次數:2492203次
6款農村蓋一層平房的設計圖,10萬元就能建起來
閱讀次數:1852637次
這11個一層農村自建房別墅火爆了朋友圈!我最喜歡戶型十!你呢
閱讀次數:750268次
農村6萬元建一層小別墅圖,你敢相信嗎
閱讀次數:567686次
農村5萬塊就能自建房,6套普通房子設計圖分享,你沒看錯!
閱讀次數:419410次
8套農村漂亮三間平房圖片,非常適合在農村修建!
閱讀次數:411197次
農村自建房化糞池怎么做?附方案及施工過程
閱讀次數:391783次
農村一層三間平房設計圖,告別土氣養老房,讓人忍不住點贊
閱讀次數:350581次
新農村二層樓房圖片造價12萬,挑一套回家建房吧!
閱讀次數:349126次
