
|
在眾多的現代派中,突然出現的復古風驅使整個中國人對傳統中式建筑有一種喜愛,它融合了莊重和優雅的雙重氣質,并將傳統的結構形式重新組合起來,最終成為富有民族特色的符號。與此同時,定框跳出布局與色彩,內化為內斂的奢華空間肌理,令其華麗奪目,頗具新意。 別墅圖一介紹:2021年中式一層住宅別墅設計圖紙這款別墅外觀效果不要太好看了吧,外觀造型上采用了傳統中式設計方案,簡潔大氣,帶給人們高端、大氣、上檔次的感受。白墻黛瓦的色彩搭配非常經典,十分耐看。再配以木制工藝的門窗拉高了整體建筑的氣場。入門戶前的走廊設定可達到陽臺的效果,滿足戶主的晾曬功能,也可以方便家里老人在此曬太陽。進入屋內,每一塊的功能區域分布非常均勻,共設有5間臥室,每間房間都非常寬敞明亮,住在里面甚是愜意! 占地面積:17.76m*11.26m,207平方米左右; 建筑層高:一層; 建筑高度:6.612米(含屋頂);
別墅效果圖
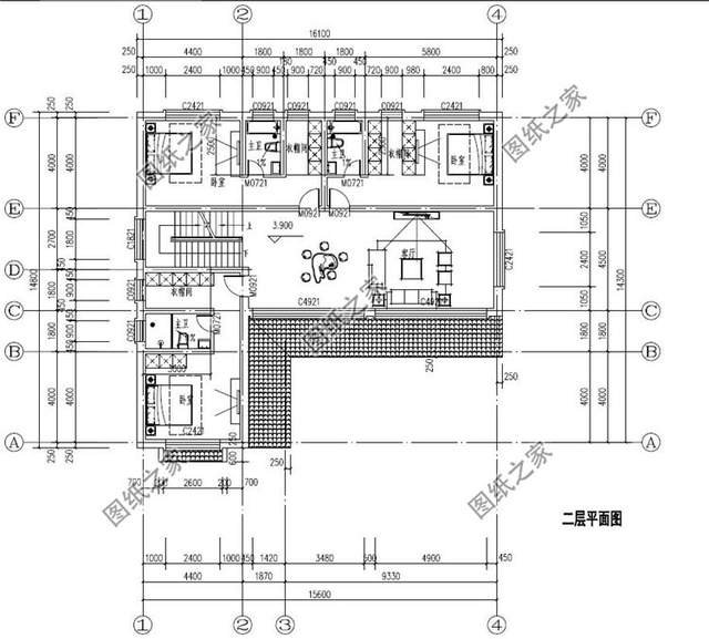
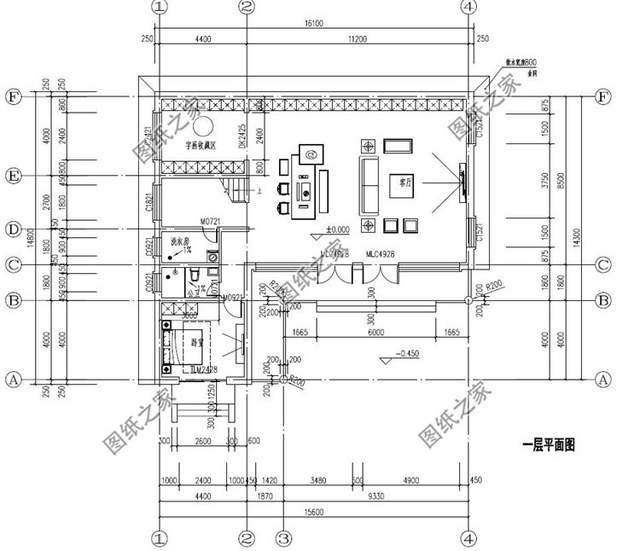
一層戶型圖 設計功能: 一層戶型:客廳、廚房、餐廳、臥室x5、鍋爐房(可自由安排)、衛生間; 別墅圖二介紹:中式L型二層別墅自建房設計圖,外觀非常漂亮這款別墅戶型為7字型,整體外觀頗有江南水鄉的韻味。白墻結合向外延伸的屋檐彰顯著與生俱來的古典大氣。我們常見的古建筑便是各種電視劇中所出現的,感覺這款外觀效果圖雖然沒有實景帶給我們的震撼感但也能顛覆我們對中式建筑的傳統認知。木質元素搭配白墻黛瓦使得建筑本身有了古色古香的味道。進入屋內,洗衣間、衣帽間字畫收藏區應有盡有豐富您的業余時間的快樂時光! 占地面積:16.1m*14.8m,173.32平方米左右;
正面效果圖
側面效果圖
鳥瞰效果圖
一層平面圖
二層平面圖 二層戶型:客廳、臥室(帶衣帽間、衛生間)x3、
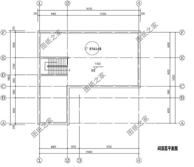
悶頂層平面圖 別墅是圖三介紹:農村三層四合院別墅設計圖紙回老家自建房建這棟別墅,臉上非常有面子,豪華古典別墅外觀效果圖!外觀采用四合院獨特的新中式風格,簡約個性,素雅大方。院落方正,左右對稱,符合中國人對房屋的外形追求。外觀主體為白色真石漆,底部為灰色外墻磚,屋頂為灰色琉璃瓦。一樓入戶就是方方正正的庭院,冬暖夏涼,四面為長廊,可種植花草樹木,朝氣蓬勃。后面是生活區,客廳寬大,活動區域廣闊,二層有六間房,臥室較多,其中三間帶有衛生間,起居方便舒適。三層茶室豐富了家庭的業余時間,也可以作為接待室邀請朋友來做客。室內空間大,雙露臺的設計開闊戶主的視野 占地面積:18m*15m,227.49平方米左右; 建筑層高:三層; 建筑高度:12.713米(含屋頂);
別墅效果圖 設計功能:
一層平面圖 一層戶型:客廳、茶座、廚房、餐廳、棋牌室、儲物間、臥室(帶衛生間)x2、衛生間;
二層平面圖 二層戶型:客廳、臥室x3、臥室(帶衛生間)x3、衛生間;
三層平面圖 三層戶型:茶室、書房、臥室(帶衛生間)x2、臥室、臥室(帶衣帽間)、衛生間、露臺x2; 以上就是小編今天帶給大家的全部內容了,感興趣的朋友們記得點贊關注呦! 圖紙之家-專注農村別墅/自建房設計18年,集合國內200余位經驗豐富的設計師,被評為口碑最好的農村建筑設計公司! |

四層自建別墅設計圖,有車庫帶露臺,時尚大氣給你一個五星級的
占地:152.51平方米
美式田園二層別墅設計方案圖,全套設計圖+效果圖
占地:235平方米
占地170平米2026新款三層別墅設計圖片及設計方案
占地:170平方米
簡單的二層樓房圖片及設計方案,自建樓房必看
占地:140平方米
新款漂亮農村三層別墅建筑設計圖紙帶效果圖片,3種戶型
占地:125平方米
2026最新款50萬左右農村三層別墅設計圖,客廳中空
占地:160平方米
帶車庫的農村四合院別墅設計圖,富貴人家的象征,日子越過越興
占地:219.24平方米
小戶型經濟農村雙拼自建房別墅設計圖紙,二層簡約造價低
占地:138平方米
歐式復式型三層別墅施工設計圖紙及效果圖大全
占地:164平方米
一層農村自建房設計,背面不開窗,15乘10米,內部布局實用
占地:多戶型可選
豪華大氣農村三層別墅圖紙,帶車庫、露臺,占地200平方米左右
占地:207平方米
140平二層帶閣樓別墅設計方案圖,外觀圖片色彩明快
占地:140平方米
現代風平屋頂三層半農村小別墅設計圖,面寬僅7米
占地:90平方米
高端農村三層歐式房屋設計圖紙,帶車庫,帶露臺
占地:163平方米
12x10米農村建房圖紙,客廳中空,讓你后半輩子在稱贊聲中度過
占地:120平方米
農村簡單雙拼小戶型,總面積190平方米,合理的利用了每一個空間
占地:190平方米
經典三層別墅設計圖紙(全套施工圖+效果圖),新農村自建推薦
占地:123平方米
四層別墅豪宅外觀效果圖及全套施工圖,高端歐式風格
占地:176.97平方米
帶車庫新農村二層四間別墅設計效果圖帶全套建筑施工圖,217平方
占地:217.21平方米
新農村三層豪華歐式別墅,復式高端自建房設計圖紙及效果圖
占地:多種戶型
推薦:10套新農村自建房設計圖,2026年最新設計
閱讀次數:4825737次
100套鄉村別墅圖片大全,2026年最新設計
閱讀次數:2492203次
6款農村蓋一層平房的設計圖,10萬元就能建起來
閱讀次數:1852637次
這11個一層農村自建房別墅火爆了朋友圈!我最喜歡戶型十!你呢
閱讀次數:750268次
農村6萬元建一層小別墅圖,你敢相信嗎
閱讀次數:567686次
農村5萬塊就能自建房,6套普通房子設計圖分享,你沒看錯!
閱讀次數:419410次
8套農村漂亮三間平房圖片,非常適合在農村修建!
閱讀次數:411197次
農村自建房化糞池怎么做?附方案及施工過程
閱讀次數:391783次
農村一層三間平房設計圖,告別土氣養老房,讓人忍不住點贊
閱讀次數:350581次
新農村二層樓房圖片造價12萬,挑一套回家建房吧!
閱讀次數:349126次
